$339,999
10235 Madrid WY #114
Spring Valley, CA, 91977
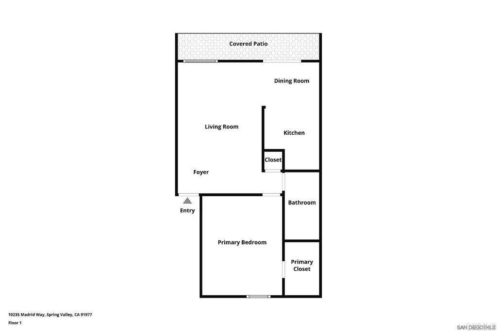
Beautifully second-floor 1BD/1BA condo with unbeatable location! This light-filled unit features granite countertops, energy-efficient windows throughout. The spacious bedroom includes a generous walk-in closet, while the dining area opens to a private balcony—perfect for morning coffee or relaxing outdoors. Enjoy the convenience of being walking distance to shopping and Casadel Ouro Elementary School right across the street. The well-maintained community offers a refreshing pool, with water and trash included in the HOA fees. Home comes with one covered parking space plus plenty of off-street parking for guests. Move-in ready comfort, great amenities, and a prime location—this one checks all the boxes!
Property Details
Price:
$339,999
MLS #:
PTP2602612
Status:
Active
Beds:
1
Baths:
1
Type:
Condo
Subtype:
Condominium
Neighborhood:
91977springvalley
Listed Date:
Apr 8, 2026
Finished Sq Ft:
500
Lot Size:
96,268 sqft / 2.21 acres (approx)
Year Built:
1985
Schools
School District:
Grossmont Union
Interior
Bathrooms
1 Full Bathroom
Cooling
WW
Laundry Features
CM
Levels
A
Exterior
Common Walls
_2CW
Community Features
SDW
Parking Spots
1
Parking Total
1
View
NO
Financial
HOA Fee
$275
HOA Fee Frequency
MO
Get Out There, A Simply Outgoing Approach to Life. James Outland Jr. is one of those rare people who simply has an outgoing approach to life. No matter the activity… from dune buggy riding to skydiving to motorcycling to riding the local Pismo Beach waves… James Outland Jr. approaches life with a “just get out there and do it” kind of attitude. A zest for Life. James’ zest for life is obviously apparent in his many exciting hobbies. In his spare time, he loves riding dune buggies or hi…
More About JamesMortgage Calculator
Map
Current real estate data for Condo in Spring Valley as of Apr 14, 2026
23
Condo Listed
59
Avg DOM
505
Avg $ / SqFt
$444,700
Avg List Price
Community
- Address10235 Madrid WY #114 Spring Valley CA
- CitySpring Valley
- CountySan Diego
- Zip Code91977
Similar Listings Nearby
Property Summary
- 10235 Madrid WY #114 Spring Valley CA is a Condo for sale in Spring Valley, CA, 91977. It is listed for $339,999 and features 1 beds, 1 baths, and has approximately 500 square feet of living space, and was originally constructed in 1985. The current price per square foot is $680. The average price per square foot for Condo listings in Spring Valley is $505. The average listing price for Condo in Spring Valley is $444,700. To schedule a showing of MLS#ptp2602612 at 10235 Madrid WY #114 in Spring Valley, CA, contact your James Outland agent at 8057482262.
Courtesy of San Diego Homes Realty. Disclaimer: All data relating to real estate for sale on this page comes from the Broker Reciprocity (BR) of the California Regional Multiple Listing Service. Detailed information about real estate listings held by brokerage firms other than James Outland include the name of the listing broker. Neither the listing company nor James Outland shall be responsible for any typographical errors, misinformation, misprints and shall be held totally harmless. The Broker providing this data believes it to be correct, but advises interested parties to confirm any item before relying on it in a purchase decision. Copyright 2026. California Regional Multiple Listing Service. All rights reserved. 10235 Madrid WY #114
Spring Valley, CA




























