$4,995
12486 Miranda Way
San Diego, CA, 92129
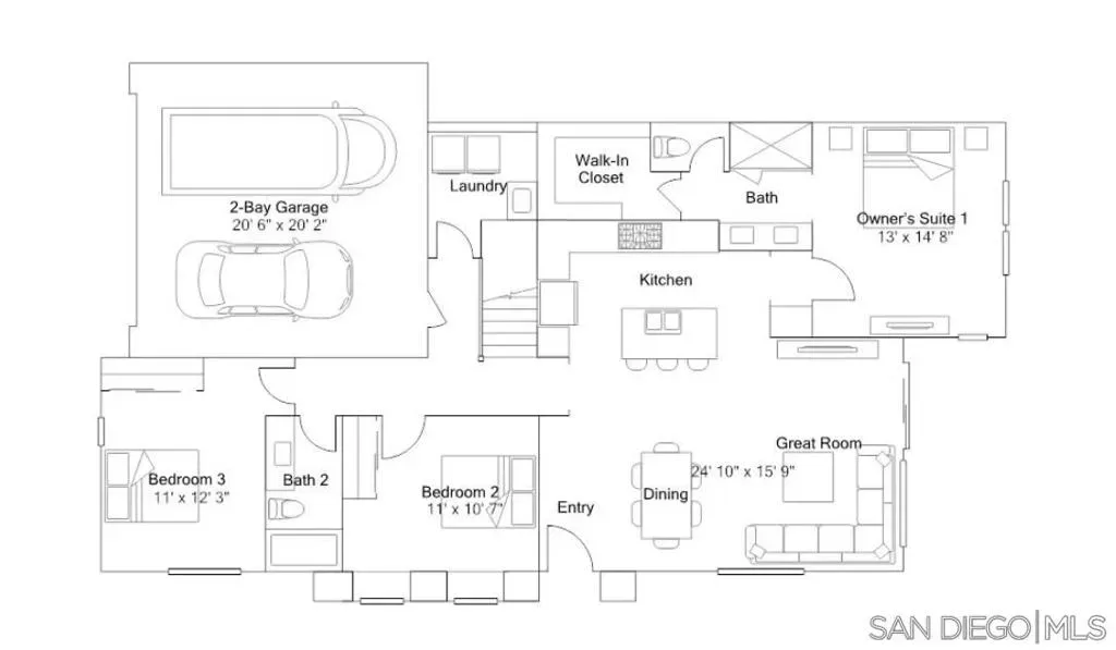
Available for immediate move-in, don’t miss your chance to be the first to live in this brand new, thoughtfully designed duet home in the highly desirable Lilac at Junipers 55+ Community (built in 2026)! Tucked away in this gated new development, you’ll find that this 4 Bedroom, 3 Bath, 1,990 sq. ft. home combines elegance with comfort & efficiency, and features an open floor plan with quartz countertops, Thermofoil cabinets, gas stove, high ceilings, luxury vinyl plank flooring, carpeted bedrooms, recessed LED lighting, LowE dual pane, high windows, window coverings, owned Solar to save on electric bills, a backup battery for added peace of mind, a whole house fan, tankless water heater, separate laundry room, and all new appliances, including a brand new washer and dryer. The Great Room, dining room and kitchen effortlessly flow into one another, while the sliding glass doors lead to the outdoor space which will be landscaped before you move-in. See Supplement Retreat to one of the two primary bedrooms with ensuite bathrooms that boast a sizeable shower and a large walk-in closet. The first primary suite is on the first level, and the second level is occupied by the second owner’s suite, offering flexibility and privacy to meet your family’s needs. Two secondary bedrooms provide additional space for household members and overnight guests. Conveniently located near freeway access and shopping, with everything you need all around you, Junipers offers the best of active adult living. Take advantage of the resort-style amenities at the recreation center and enjoy activities available for a diverse background of interests which include a swimming pool, spa, fitness room, pickleball, bocce ball, walking trails, and so much more! Tenant to pay for electric (anything not covered by Solar, billed annually), gas, water, trash, and any other elected utilities such as cable and internet. No pets and No smoking. One year lease.
Property Details
Price:
$4,995
MLS #:
260004699SD
Status:
Active
Beds:
4
Baths:
3
Type:
Single Family
Subtype:
Single Family Residence
Subdivision:
Rancho Penasquitos
Neighborhood:
92129ranchopenasquitos
Listed Date:
Feb 27, 2026
Finished Sq Ft:
1,990
Year Built:
2026
Schools
Interior
Appliances
DW, GD, MW, RF, GWH, TW
Bathrooms
3 Full Bathrooms
Cooling
CA
Flooring
TILE, CARP
Heating
FA, GAS
Laundry Features
GAS, IR
Levels
U
Exterior
Attached Garage YN
1
Community
55+
Garage Spaces
2
Parking Spots
3
Parking Total
3
Roof
CON
Security Features
GC
Senior Community YN
1
Spa Features
COM
View
NO
Financial
Get Out There, A Simply Outgoing Approach to Life. James Outland Jr. is one of those rare people who simply has an outgoing approach to life. No matter the activity… from dune buggy riding to skydiving to motorcycling to riding the local Pismo Beach waves… James Outland Jr. approaches life with a “just get out there and do it” kind of attitude. A zest for Life. James’ zest for life is obviously apparent in his many exciting hobbies. In his spare time, he loves riding dune buggies or hi…
More About JamesMortgage Calculator
Map
Current real estate data for Single Family in San Diego as of Apr 14, 2026
2,138
Single Family Listed
68
Avg DOM
562
Avg $ / SqFt
$1,217,460
Avg List Price
Community
- Address12486 Miranda Way San Diego CA
- SubdivisionRancho Penasquitos
- CitySan Diego
- CountySan Diego
- Zip Code92129
Similar Listings Nearby
Property Summary
- Located in the Rancho Penasquitos subdivision, 12486 Miranda Way San Diego CA is a Single Family for sale in San Diego, CA, 92129. It is listed for $4,995 and features 4 beds, 3 baths, and has approximately 1,990 square feet of living space, and was originally constructed in 2026. The current price per square foot is $3. The average price per square foot for Single Family listings in San Diego is $562. The average listing price for Single Family in San Diego is $1,217,460. To schedule a showing of MLS#260004699sd at 12486 Miranda Way in San Diego, CA, contact your James Outland agent at 8057482262.
Courtesy of Keller Williams Realty. Disclaimer: All data relating to real estate for sale on this page comes from the Broker Reciprocity (BR) of the California Regional Multiple Listing Service. Detailed information about real estate listings held by brokerage firms other than James Outland include the name of the listing broker. Neither the listing company nor James Outland shall be responsible for any typographical errors, misinformation, misprints and shall be held totally harmless. The Broker providing this data believes it to be correct, but advises interested parties to confirm any item before relying on it in a purchase decision. Copyright 2026. California Regional Multiple Listing Service. All rights reserved. 12486 Miranda Way
San Diego, CA





















































