$199,000
350 Gilmore RD #16
Red Bluff, CA, 96080
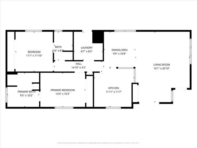
Well maintained 2-bedroom, 2-bath manufactured home located in a River Oaks senior park where you own your own land! Enjoy low monthly HOA dues of just $105, which include access to the community pool, water, sewer, and clubhouse. Inside, you’ll find a spacious great room perfect for comfortable living and entertaining, complete with blackout shades for added privacy and comfort. The kitchen offers a convenient breakfast bar, and there’s a dedicated laundry/mud room for storage and everyday functionality. The main bath features both a walk-in tub and separate shower, along with a dual-sink vanity. Covered carport, storage shed, inviting front deck, and a low-maintenance yard, ideal for easy, relaxed living.
Property Details
Price:
$199,000
MLS #:
SN26039470
Status:
Active
Beds:
2
Baths:
2
Type:
Single Family
Neighborhood:
pl01tehamacounty
Listed Date:
Mar 11, 2026
Finished Sq Ft:
1,440
Lot Size:
3,920 sqft / 0.09 acres (approx)
Year Built:
1981
Schools
School District:
Red Bluff Joint Union
Interior
Appliances
DW, GD, MW, RF, ES, HOD
Bathrooms
2 Full Bathrooms
Cooling
CA
Flooring
LAM, CARP
Heating
CF
Interior Features
CF, FORC
Laundry Features
IN
Levels
A
Exterior
Community
55+
Community Features
CW
Construction Materials
VNL
Exterior Features
AW
Fencing
NO
Garage Spaces
1
Other Structures
SH
Parking Spots
3
Parking Total
3
Patio And Porch Features
CO, DK
Roof
CMP
Senior Community YN
1
View
NE
Window Features
BLI, CWC, DPW
Financial
Lease Land Amount
$105
Lease Land Frequency
MO
Get Out There, A Simply Outgoing Approach to Life. James Outland Jr. is one of those rare people who simply has an outgoing approach to life. No matter the activity… from dune buggy riding to skydiving to motorcycling to riding the local Pismo Beach waves… James Outland Jr. approaches life with a “just get out there and do it” kind of attitude. A zest for Life. James’ zest for life is obviously apparent in his many exciting hobbies. In his spare time, he loves riding dune buggies or hi…
More About JamesMortgage Calculator
Map
Current real estate data for Single Family in Red Bluff as of Apr 19, 2026
40
Single Family Listed
92
Avg DOM
223
Avg $ / SqFt
$438,578
Avg List Price
Community
- Address350 Gilmore RD #16 Red Bluff CA
- CityRed Bluff
- CountyTehama
- Zip Code96080
Similar Listings Nearby
Property Summary
- 350 Gilmore RD #16 Red Bluff CA is a Single Family for sale in Red Bluff, CA, 96080. It is listed for $199,000 and features 2 beds, 2 baths, and has approximately 1,440 square feet of living space, and was originally constructed in 1981. The current price per square foot is $138. The average price per square foot for Single Family listings in Red Bluff is $223. The average listing price for Single Family in Red Bluff is $438,578. To schedule a showing of MLS#sn26039470 at 350 Gilmore RD #16 in Red Bluff, CA, contact your James Outland agent at 8057482262.
Courtesy of HIVE Real Estate Group, Inc. Disclaimer: All data relating to real estate for sale on this page comes from the Broker Reciprocity (BR) of the California Regional Multiple Listing Service. Detailed information about real estate listings held by brokerage firms other than James Outland include the name of the listing broker. Neither the listing company nor James Outland shall be responsible for any typographical errors, misinformation, misprints and shall be held totally harmless. The Broker providing this data believes it to be correct, but advises interested parties to confirm any item before relying on it in a purchase decision. Copyright 2026. California Regional Multiple Listing Service. All rights reserved. 350 Gilmore RD #16
Red Bluff, CA





































