$699,000
15125 N Kobbuntie N CT
Red Bluff, CA, 96080
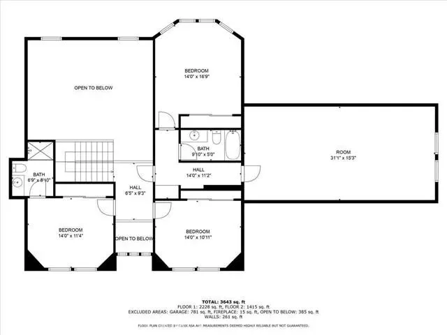
Welcome to this custom-built, one-owner home nestled on 7+ rolling acres of privacy and space. This nearly 3,200sqft two-story home offers 4 bedrooms plus an office (or use all 5 as bedrooms), 4 bathrooms, and primary suites on both levels. Downstairs primary suite includes a cozy fireplace, separate garden tub and shower, dual sinks, and a spacious walk-in closet for ultimate comfort. The spacious kitchen features a restaurant-style stove, formal dining room, and breakfast nook, perfect for the culinary enthusiasts. Enjoy the large laundry room with built-in desk, storage cabinets, and a fold-down ironing board—designed for convenience. Home is wired with CAT5for modern connectivity and includes a Transfer Switch kit for future generator backup power or off grid power capability. A 480+ sq ft bonus room offers potential for a future ADU or use as a hobby room, private gym, game room or guest space. Outside, enjoy the oversized 3-car garage, covered front and back porches, expansive 2-tier back deck for entertaining, garden area, and room for all your toys. Finished with durable Hardie board siding, this home blends luxury and functionality in a peaceful country setting.
Property Details
Price:
$699,000
MLS #:
SN26061149
Status:
Active
Beds:
5
Baths:
4
Type:
Single Family
Subtype:
Single Family Residence
Neighborhood:
pl01tehamacounty
Listed Date:
Mar 27, 2026
Finished Sq Ft:
3,677
Lot Size:
321,037 sqft / 7.37 acres (approx)
Year Built:
2005
Schools
School District:
Red Bluff Joint Union
Interior
Appliances
DW, GD, GO, GR, HOD
Bathrooms
3 Full Bathrooms, 1 Half Bathroom
Cooling
CA
Flooring
TILE, CARP
Heating
CF
Interior Features
CF, RECL, TILC
Laundry Features
IR
Levels
U
Main Level Bathrooms
2
Main Level Bedrooms
2
Exterior
Architectural Style
CNT
Attached Garage YN
1
Common Walls
NCW
Community Features
RUR
Construction Materials
HRD
Exterior Features
KNL
Fencing
NO
Garage Spaces
3
Other Structures
SH
Parking Spots
3
Parking Total
3
Patio And Porch Features
CO, SL, POF, POR
Roof
CMP
View
TW
Window Features
DPW
Financial
Get Out There, A Simply Outgoing Approach to Life. James Outland Jr. is one of those rare people who simply has an outgoing approach to life. No matter the activity… from dune buggy riding to skydiving to motorcycling to riding the local Pismo Beach waves… James Outland Jr. approaches life with a “just get out there and do it” kind of attitude. A zest for Life. James’ zest for life is obviously apparent in his many exciting hobbies. In his spare time, he loves riding dune buggies or hi…
More About JamesMortgage Calculator
Map
Current real estate data for Single Family in Red Bluff as of Apr 17, 2026
39
Single Family Listed
92
Avg DOM
223
Avg $ / SqFt
$444,438
Avg List Price
Community
- Address15125 N Kobbuntie N CT Red Bluff CA
- CityRed Bluff
- CountyTehama
- Zip Code96080
Similar Listings Nearby
Property Summary
- 15125 N Kobbuntie N CT Red Bluff CA is a Single Family for sale in Red Bluff, CA, 96080. It is listed for $699,000 and features 5 beds, 4 baths, and has approximately 3,677 square feet of living space, and was originally constructed in 2005. The current price per square foot is $190. The average price per square foot for Single Family listings in Red Bluff is $223. The average listing price for Single Family in Red Bluff is $444,438. To schedule a showing of MLS#sn26061149 at 15125 N Kobbuntie N CT in Red Bluff, CA, contact your James Outland agent at 8057482262.
Courtesy of HIVE Real Estate Group, Inc. Disclaimer: All data relating to real estate for sale on this page comes from the Broker Reciprocity (BR) of the California Regional Multiple Listing Service. Detailed information about real estate listings held by brokerage firms other than James Outland include the name of the listing broker. Neither the listing company nor James Outland shall be responsible for any typographical errors, misinformation, misprints and shall be held totally harmless. The Broker providing this data believes it to be correct, but advises interested parties to confirm any item before relying on it in a purchase decision. Copyright 2026. California Regional Multiple Listing Service. All rights reserved. 15125 N Kobbuntie N CT
Red Bluff, CA











































































