$399,000
3 Beverly DR
Oroville, CA, 95966
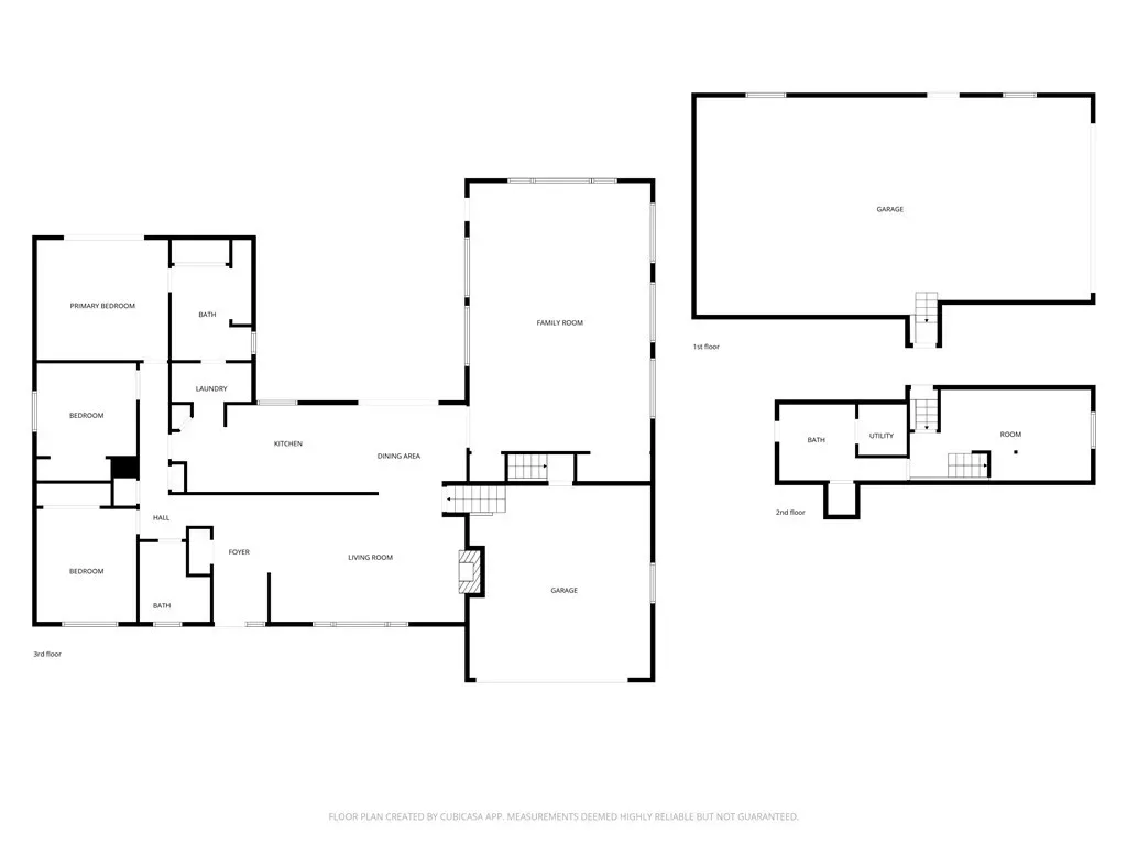
Charming 1960’s with solid bones and great potential, ready for your personal touch. Enjoy stunning views from the large back deck overlooking a small canyon and lush natural trees, creating a peaceful and scenic setting. Inside, the home features both a cozy living room and a spacious family room-the latter easily accommodating a pool table, with plenty of space for a sofa or second dining area. Large windows in the family room overlook the beautiful landscaping outside, bringing in plenty of natural light. Additional highlights include a two-car garage plus an attached expansive SHOP/additional garage space with high ceilings perfect for home projects, and a downstairs bathroom for convenience after working in the shop. The finished downstairs area offers a versatile bonus storage room, ideal for extra kitchen storage, a pantry, or kids’ art supplies. All three bedrooms are on the main floor, with the family room versatile enough to serve as a fourth bedroom or a home office. The neighborhood boasts vintage charm from the 60’s, with fruit property and plenty of room for pets. Recent upgrades include a brand-new Septic System. This home is a perfect opportunity for someone looking to create a personalized haven in a lovely, established neighborhood
Property Details
Price:
$399,000
MLS #:
SN26082149
Status:
Active
Beds:
3
Baths:
3
Type:
Single Family
Subtype:
Single Family Residence
Listed Date:
Apr 17, 2026
Finished Sq Ft:
2,328
Lot Size:
63,598 sqft / 1.46 acres (approx)
Year Built:
1964
Schools
School District:
Oroville City
Interior
Bathrooms
3 Full Bathrooms
Cooling
CA
Heating
FA, GAS
Interior Features
BI, BL
Laundry Features
IN
Levels
A
Main Level Bathrooms
2
Main Level Bedrooms
3
Exterior
Architectural Style
RAN
Attached Garage YN
1
Common Walls
NCW
Community Features
SUB
Fencing
CH
Garage Spaces
4
Parking Spots
4
Parking Total
4
Patio And Porch Features
DK
Roof
CMP
View
CN, TW
Financial
Get Out There, A Simply Outgoing Approach to Life. James Outland Jr. is one of those rare people who simply has an outgoing approach to life. No matter the activity… from dune buggy riding to skydiving to motorcycling to riding the local Pismo Beach waves… James Outland Jr. approaches life with a “just get out there and do it” kind of attitude. A zest for Life. James’ zest for life is obviously apparent in his many exciting hobbies. In his spare time, he loves riding dune buggies or hi…
More About JamesMortgage Calculator
Map
Current real estate data for Single Family in Oroville as of Apr 19, 2026
324
Single Family Listed
117
Avg DOM
214
Avg $ / SqFt
$336,299
Avg List Price
Community
- Address3 Beverly DR Oroville CA
- CityOroville
- CountyButte
- Zip Code95966
Similar Listings Nearby
Property Summary
- 3 Beverly DR Oroville CA is a Single Family for sale in Oroville, CA, 95966. It is listed for $399,000 and features 3 beds, 3 baths, and has approximately 2,328 square feet of living space, and was originally constructed in 1964. The current price per square foot is $171. The average price per square foot for Single Family listings in Oroville is $214. The average listing price for Single Family in Oroville is $336,299. To schedule a showing of MLS#sn26082149 at 3 Beverly DR in Oroville, CA, contact your James Outland agent at 8057482262.
Courtesy of Century 21 Select Real Estate, Inc.. Disclaimer: All data relating to real estate for sale on this page comes from the Broker Reciprocity (BR) of the California Regional Multiple Listing Service. Detailed information about real estate listings held by brokerage firms other than James Outland include the name of the listing broker. Neither the listing company nor James Outland shall be responsible for any typographical errors, misinformation, misprints and shall be held totally harmless. The Broker providing this data believes it to be correct, but advises interested parties to confirm any item before relying on it in a purchase decision. Copyright 2026. California Regional Multiple Listing Service. All rights reserved. 3 Beverly DR
Oroville, CA






































