$2,888,000
25 Howard
June Lake, CA, 93529
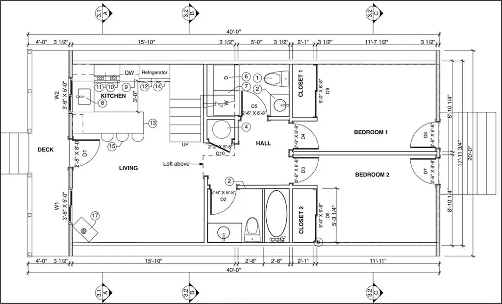
Brand-new 2024 five-unit multifamily property in the heart of June Lake. The Acorns features five identical 2BR + Loft / 1.5BA cabins, each approx. 1,050 sq.ft., offering modern design, high ceilings, open living spaces, and abundant natural light. All units were built new in 2024 and are fully leased, providing immediate, stabilized income with minimal maintenance requirements.
Each cabin includes a modern kitchen with stainless appliances, stone counters, pellet fireplace (plus electric heat), in-unit washer/dryer, private deck, and two dedicated parking spaces. Efficient construction throughout—dual-glazed windows, R-45 insulation, durable all-weather subfloors, Hardie siding, steel roofing, fire sprinkler systems, and a commercial-grade steel and concrete foundation—supports long-term reliability and low operating costs.
Five identical floorplans: 2 bedrooms on the main level plus a versatile loft that functions as an additional sleeping area, workspace, or flex room.
Situated only minutes from June Lake, Gull Lake, June Mountain Ski Area, and June Lake Village, the property benefits from consistent year-round rental demand. This property is not zoned for short-term rentals, making it ideal as long-term housing, workforce housing, or a stable cash-flow investment.
Condo map engineering is complete and awaiting county and state approvals, creating optionality for future individual unit sales (not guaranteed, buyer to verify).
A rare opportunity to own the only newly built, purpose-constructed multifamily asset of its kind in June Lake, located in a supply-constrained market with minimal new construction and strong long-term fundamentals.
Each cabin includes a modern kitchen with stainless appliances, stone counters, pellet fireplace (plus electric heat), in-unit washer/dryer, private deck, and two dedicated parking spaces. Efficient construction throughout—dual-glazed windows, R-45 insulation, durable all-weather subfloors, Hardie siding, steel roofing, fire sprinkler systems, and a commercial-grade steel and concrete foundation—supports long-term reliability and low operating costs.
Five identical floorplans: 2 bedrooms on the main level plus a versatile loft that functions as an additional sleeping area, workspace, or flex room.
Situated only minutes from June Lake, Gull Lake, June Mountain Ski Area, and June Lake Village, the property benefits from consistent year-round rental demand. This property is not zoned for short-term rentals, making it ideal as long-term housing, workforce housing, or a stable cash-flow investment.
Condo map engineering is complete and awaiting county and state approvals, creating optionality for future individual unit sales (not guaranteed, buyer to verify).
A rare opportunity to own the only newly built, purpose-constructed multifamily asset of its kind in June Lake, located in a supply-constrained market with minimal new construction and strong long-term fundamentals.
Property Details
Price:
$2,888,000
MLS #:
OC25269599
Status:
Active
Beds:
0
Baths:
0
Type:
Single Family
Subtype:
Commercial/Residential
Listed Date:
Dec 10, 2025
Total Sq Ft:
5,500
Lot Size:
18,731 sqft / 0.43 acres (approx)
Year Built:
2024
Schools
Interior
Appliances
DW, GD, MW, RF, ESA, ES, EO, ER, HEWH, ESWH, SEF, WHU
Cooling
NO
Flooring
VINY
Heating
ELC, PEL, ES
Interior Features
CF, ST, STNC, HCEL
Laundry Features
ELC, DINC, WH, WINC
Levels
U
Exterior
Accessibility Features
DSI, _2AE, _32W, _48W
Common Walls
NCW
Community Features
STM, SUB, BLM, MTN, PSV, LAKE, PARK, FISH, WATE, HIKI, BIKI, DGP
Construction Materials
STL, HAR
Fencing
CH, WD
Parking Spots
10
Parking Total
10
Roof
MTL
Security Features
EXL, SD, COD, FSDS, FRDW, FS, MGR
Spa Features
NO
View
LA, MT, TW
Waterfront Features
ARLO, FSH
Window Features
BLI, SCR, INSW, ESW
Financial
Get Out There, A Simply Outgoing Approach to Life. James Outland Jr. is one of those rare people who simply has an outgoing approach to life. No matter the activity… from dune buggy riding to skydiving to motorcycling to riding the local Pismo Beach waves… James Outland Jr. approaches life with a “just get out there and do it” kind of attitude. A zest for Life. James’ zest for life is obviously apparent in his many exciting hobbies. In his spare time, he loves riding dune buggies or hi…
More About JamesMortgage Calculator
Map
Current real estate data for Single Family in June Lake as of Apr 28, 2026
1
Single Family Listed
139
Avg DOM
$2,888,000
Avg List Price
Community
- Address25 Howard June Lake CA
- CityJune Lake
- CountyMono
- Zip Code93529
Similar Listings Nearby
Property Summary
- 25 Howard June Lake CA is a Single Family for sale in June Lake, CA, 93529. It is listed for $2,888,000 and features 0 beds, 0 baths, and has approximately 0 square feet of living space, and was originally constructed in 2024. The average listing price for Single Family in June Lake is $2,888,000. To schedule a showing of MLS#oc25269599 at 25 Howard in June Lake, CA, contact your James Outland agent at 8057482262.
Courtesy of Balboa Real Estate, Inc. Disclaimer: All data relating to real estate for sale on this page comes from the Broker Reciprocity (BR) of the California Regional Multiple Listing Service. Detailed information about real estate listings held by brokerage firms other than James Outland include the name of the listing broker. Neither the listing company nor James Outland shall be responsible for any typographical errors, misinformation, misprints and shall be held totally harmless. The Broker providing this data believes it to be correct, but advises interested parties to confirm any item before relying on it in a purchase decision. Copyright 2026. California Regional Multiple Listing Service. All rights reserved. 25 Howard
June Lake, CA





























