$385,000
1608 Broadway
Chico, CA, 95928
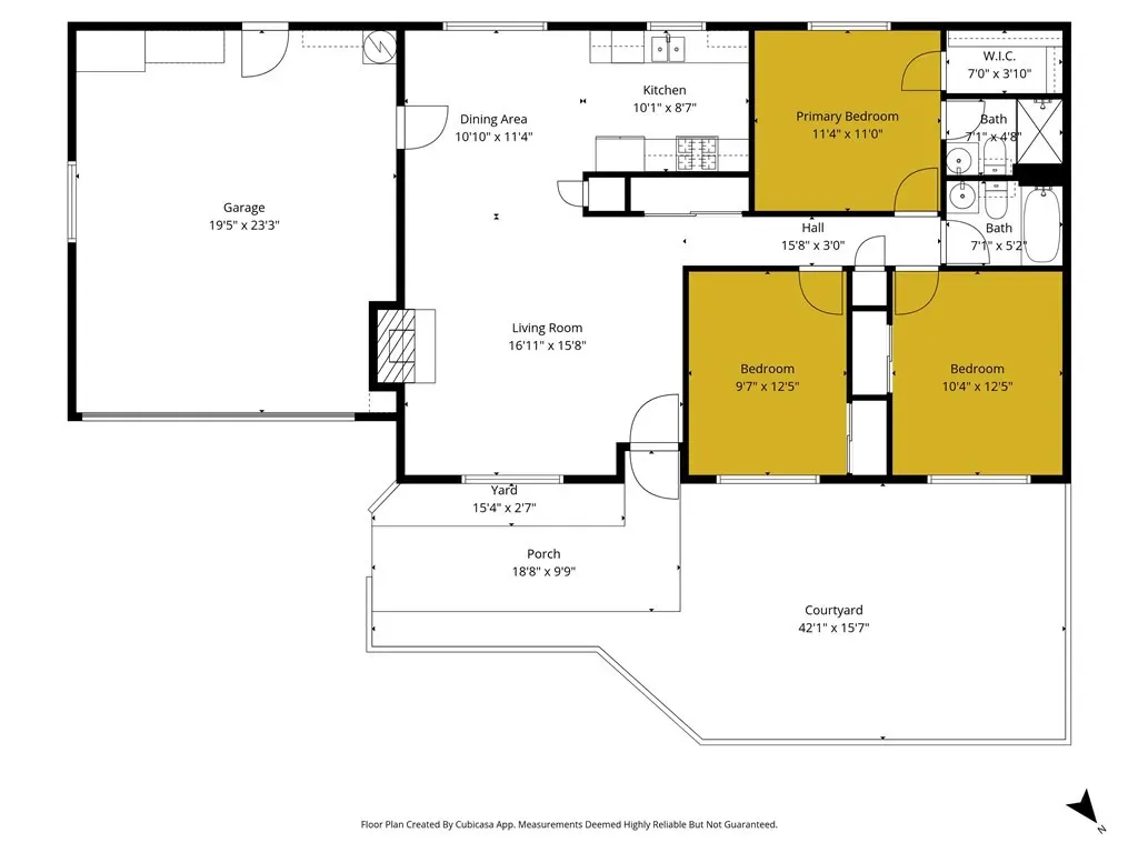
Charming Barber Neighborhood home featuring 3 bedrooms, 2 bathrooms and a 2 car garage. This home is overflowing with character! Situated on a corner lot, you are just a short walk or bike ride away from the energy of Downtown Chico and Chico State University campus. The 1,141 sq. ft. floor plan is both functional and inviting, featuring an upgraded kitchen with a gas stove, butcher block counters, luxury vinyl plank floors, a cozy fireplace, and central heat & air. Enjoy two separate outdoor areas, a wonderful enclosed front patio and a private side yard—ideal spaces for outdoor dining, entertaining, or simply enjoying the beautiful Chico weather. This property is equipped with an 18-panel solar system and updated windows and doors for energy efficiency and enhanced comfort.
Property Details
Price:
$385,000
MLS #:
SN26061262
Status:
Active
Beds:
3
Baths:
2
Type:
Single Family
Subtype:
Single Family Residence
Listed Date:
Mar 23, 2026
Finished Sq Ft:
1,141
Lot Size:
4,792 sqft / 0.11 acres (approx)
Year Built:
1981
Schools
School District:
Chico Unified
Interior
Appliances
DW, MW, RF, GR
Bathrooms
2 Full Bathrooms
Cooling
CA
Flooring
VINY
Heating
CF
Interior Features
CF
Laundry Features
IG
Levels
A
Main Level Bathrooms
2
Main Level Bedrooms
3
Exterior
Attached Garage YN
1
Common Walls
NCW
Community Features
BIKI
Construction Materials
STC, DWAL
Exterior Features
RG
Fencing
WD
Garage Spaces
2
Parking Spots
2
Parking Total
2
Patio And Porch Features
EN
Roof
CMP
Spa Features
NO
View
NE
Window Features
DPW
Financial
Get Out There, A Simply Outgoing Approach to Life. James Outland Jr. is one of those rare people who simply has an outgoing approach to life. No matter the activity… from dune buggy riding to skydiving to motorcycling to riding the local Pismo Beach waves… James Outland Jr. approaches life with a “just get out there and do it” kind of attitude. A zest for Life. James’ zest for life is obviously apparent in his many exciting hobbies. In his spare time, he loves riding dune buggies or hi…
More About JamesMortgage Calculator
Map
Current real estate data for Single Family in Chico as of Apr 16, 2026
441
Single Family Listed
86
Avg DOM
284
Avg $ / SqFt
$411,616
Avg List Price
Community
- Address1608 Broadway Chico CA
- CityChico
- CountyButte
- Zip Code95928
Similar Listings Nearby
Property Summary
- 1608 Broadway Chico CA is a Single Family for sale in Chico, CA, 95928. It is listed for $385,000 and features 3 beds, 2 baths, and has approximately 1,141 square feet of living space, and was originally constructed in 1981. The current price per square foot is $337. The average price per square foot for Single Family listings in Chico is $284. The average listing price for Single Family in Chico is $411,616. To schedule a showing of MLS#sn26061262 at 1608 Broadway in Chico, CA, contact your James Outland agent at 8057482262.
Courtesy of Keller Williams Realty Chico Area. Disclaimer: All data relating to real estate for sale on this page comes from the Broker Reciprocity (BR) of the California Regional Multiple Listing Service. Detailed information about real estate listings held by brokerage firms other than James Outland include the name of the listing broker. Neither the listing company nor James Outland shall be responsible for any typographical errors, misinformation, misprints and shall be held totally harmless. The Broker providing this data believes it to be correct, but advises interested parties to confirm any item before relying on it in a purchase decision. Copyright 2026. California Regional Multiple Listing Service. All rights reserved. 1608 Broadway
Chico, CA



























































