$519,000
173 N Sequoia RD
Boulder Creek, CA, 95006
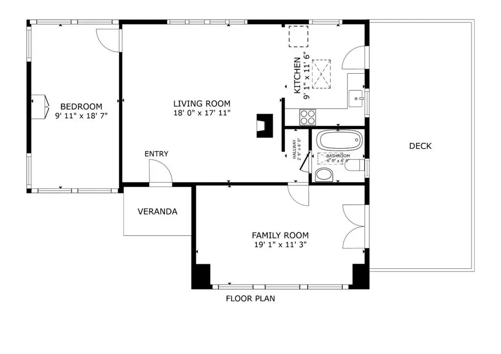
Welcome to this charming 1,000 sq ft mountain retreat, where character, tranquility, and opportunity come together seamlessly. Take in peaceful river views right from your backdoor, creating a serene backdrop that feels like your own private escape. Set on an expansive 11,500 sq ft, two-parcel lot, this home offers exceptional versatility and room to grow. Whether you’re hosting intimate dinner gatherings on the expansive deck or simply enjoying a quiet morning coffee surrounded by nature, this property truly has it all.
Property Details
Price:
$519,000
MLS #:
ML82043284
Status:
Active
Beds:
2
Baths:
1
Type:
Single Family
Subtype:
Single Family Residence
Neighborhood:
699notdefined
Listed Date:
Apr 16, 2026
Finished Sq Ft:
1,000
Lot Size:
11,500 sqft / 0.26 acres (approx)
Year Built:
1922
Schools
School District:
Other
Interior
Bathrooms
1 Full Bathroom
Cooling
NO
Heating
PRO, WL
Exterior
Common Walls
NCW
Parking Spots
2
Parking Total
2
Roof
CMP
Financial
Get Out There, A Simply Outgoing Approach to Life. James Outland Jr. is one of those rare people who simply has an outgoing approach to life. No matter the activity… from dune buggy riding to skydiving to motorcycling to riding the local Pismo Beach waves… James Outland Jr. approaches life with a “just get out there and do it” kind of attitude. A zest for Life. James’ zest for life is obviously apparent in his many exciting hobbies. In his spare time, he loves riding dune buggies or hi…
More About JamesMortgage Calculator
Map
Current real estate data for Single Family in Boulder Creek as of Apr 18, 2026
45
Single Family Listed
63
Avg DOM
545
Avg $ / SqFt
$838,701
Avg List Price
Community
- Address173 N Sequoia RD Boulder Creek CA
- CityBoulder Creek
- CountySanta Cruz
- Zip Code95006
Similar Listings Nearby
Property Summary
- 173 N Sequoia RD Boulder Creek CA is a Single Family for sale in Boulder Creek, CA, 95006. It is listed for $519,000 and features 2 beds, 1 baths, and has approximately 1,000 square feet of living space, and was originally constructed in 1922. The current price per square foot is $519. The average price per square foot for Single Family listings in Boulder Creek is $545. The average listing price for Single Family in Boulder Creek is $838,701. To schedule a showing of MLS#ml82043284 at 173 N Sequoia RD in Boulder Creek, CA, contact your James Outland agent at 8057482262.
Courtesy of Rinu Real Estate. Disclaimer: All data relating to real estate for sale on this page comes from the Broker Reciprocity (BR) of the California Regional Multiple Listing Service. Detailed information about real estate listings held by brokerage firms other than James Outland include the name of the listing broker. Neither the listing company nor James Outland shall be responsible for any typographical errors, misinformation, misprints and shall be held totally harmless. The Broker providing this data believes it to be correct, but advises interested parties to confirm any item before relying on it in a purchase decision. Copyright 2026. California Regional Multiple Listing Service. All rights reserved. 173 N Sequoia RD
Boulder Creek, CA













