$339,000
4260 N Canoga AV
Woodland Hills, CA, 91364
Vacant Lot with **Permits Pulled and Fees Paid** – 4260 Canoga Avenue (Lot No. 5255, Cut 1 & 2)
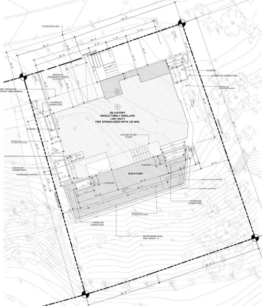
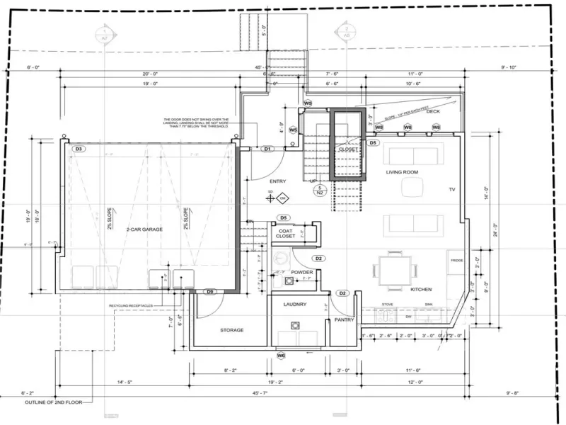
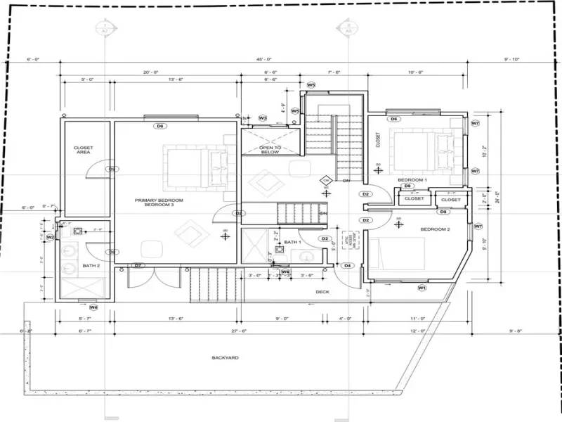
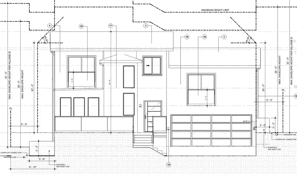
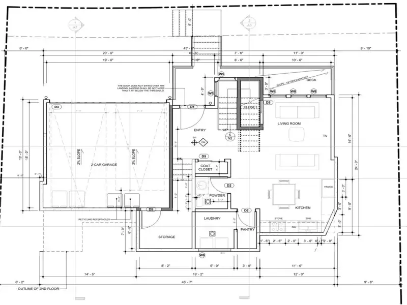
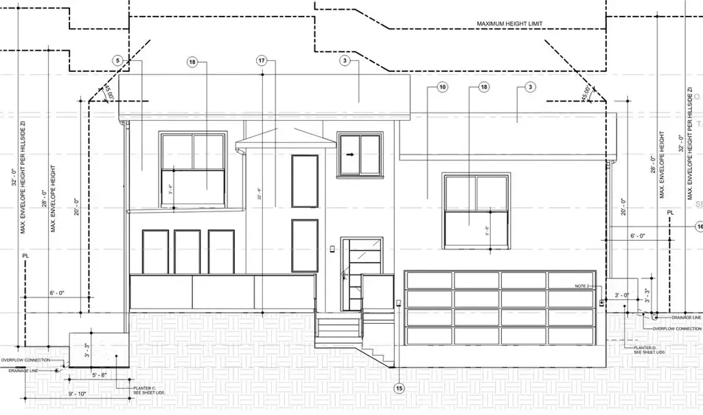
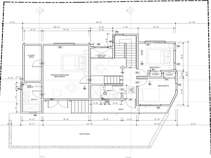
Excellent opportunity to build a beautifully designed single-family residence in a highly desirable Woodland Hills neighborhood. The property includes a full set of well-designed, approved plans for a stylish home with approximately 1,957 sq. ft. of building area (1,691 sq. ft. RFA), including an attached garage.
The lot is approximately 5,027 sq. ft. (per the tax assessor) and is situated on an uphill site — no costly caisson work required. All approvals have been secured through the **Mulholland Corridor Design Review Board**, and the **architectural, structural, grading, and landscape plans are included**. Construction can begin immediately.
This is a great opportunity to develop in a prime location surrounded by quality homes. The proposed design blends modern style with the natural hillside setting, creating a perfect balance of comfort and elegance.
**Note:** Buyer to verify all information independently. Also see the listings for 4254 and 4256 Canoga Avenue for nearby opportunities.
Excellent opportunity to build a beautifully designed single-family residence in a highly desirable Woodland Hills neighborhood. The property includes a full set of well-designed, approved plans for a stylish home with approximately 1,957 sq. ft. of building area (1,691 sq. ft. RFA), including an attached garage.
The lot is approximately 5,027 sq. ft. (per the tax assessor) and is situated on an uphill site — no costly caisson work required. All approvals have been secured through the **Mulholland Corridor Design Review Board**, and the **architectural, structural, grading, and landscape plans are included**. Construction can begin immediately.
This is a great opportunity to develop in a prime location surrounded by quality homes. The proposed design blends modern style with the natural hillside setting, creating a perfect balance of comfort and elegance.
**Note:** Buyer to verify all information independently. Also see the listings for 4254 and 4256 Canoga Avenue for nearby opportunities.
Property Details
Price:
$339,000
MLS #:
SR26050483
Status:
Active
Beds:
2
Baths:
3
Type:
Single Family
Subtype:
Single Family Residence
Neighborhood:
whllwoodlandhills
Listed Date:
Mar 7, 2026
Finished Sq Ft:
1,691
Lot Size:
5,028 sqft / 0.12 acres (approx)
Year Built:
2026
Schools
School District:
Los Angeles Unified
Interior
Bathrooms
2 Full Bathrooms, 1 Half Bathroom
Cooling
CA
Laundry Features
IN
Levels
U
Main Level Bathrooms
1
Exterior
Attached Garage YN
1
Common Walls
NCW
Community Features
VLY
Garage Spaces
380
Parking Spots
380
Parking Total
380
View
HI
Financial
Get Out There, A Simply Outgoing Approach to Life. James Outland Jr. is one of those rare people who simply has an outgoing approach to life. No matter the activity… from dune buggy riding to skydiving to motorcycling to riding the local Pismo Beach waves… James Outland Jr. approaches life with a “just get out there and do it” kind of attitude. A zest for Life. James’ zest for life is obviously apparent in his many exciting hobbies. In his spare time, he loves riding dune buggies or hi…
More About JamesMortgage Calculator
Map
Current real estate data for Single Family in Woodland Hills as of Apr 11, 2026
445
Single Family Listed
66
Avg DOM
395
Avg $ / SqFt
$1,091,798
Avg List Price
Community
- Address4260 N Canoga AV Woodland Hills CA
- CityWoodland Hills
- CountyLos Angeles
- Zip Code91364
Similar Listings Nearby
Property Summary
- 4260 N Canoga AV Woodland Hills CA is a Single Family for sale in Woodland Hills, CA, 91364. It is listed for $339,000 and features 2 beds, 3 baths, and has approximately 1,691 square feet of living space, and was originally constructed in 2026. The current price per square foot is $200. The average price per square foot for Single Family listings in Woodland Hills is $395. The average listing price for Single Family in Woodland Hills is $1,091,798. To schedule a showing of MLS#sr26050483 at 4260 N Canoga AV in Woodland Hills, CA, contact your James Outland agent at 8057482262.
Courtesy of Gold Star Realty. Disclaimer: All data relating to real estate for sale on this page comes from the Broker Reciprocity (BR) of the California Regional Multiple Listing Service. Detailed information about real estate listings held by brokerage firms other than James Outland include the name of the listing broker. Neither the listing company nor James Outland shall be responsible for any typographical errors, misinformation, misprints and shall be held totally harmless. The Broker providing this data believes it to be correct, but advises interested parties to confirm any item before relying on it in a purchase decision. Copyright 2026. California Regional Multiple Listing Service. All rights reserved. 4260 N Canoga AV
Woodland Hills, CA





















