$1,799,000
14004 Eastridge DR
Whittier, CA, 90602
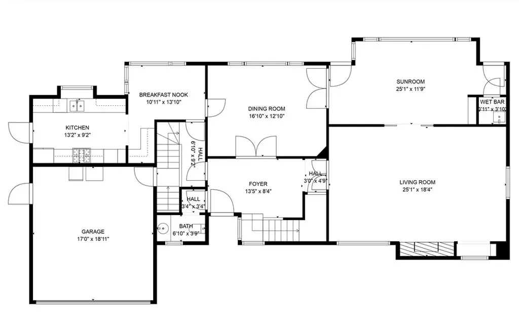
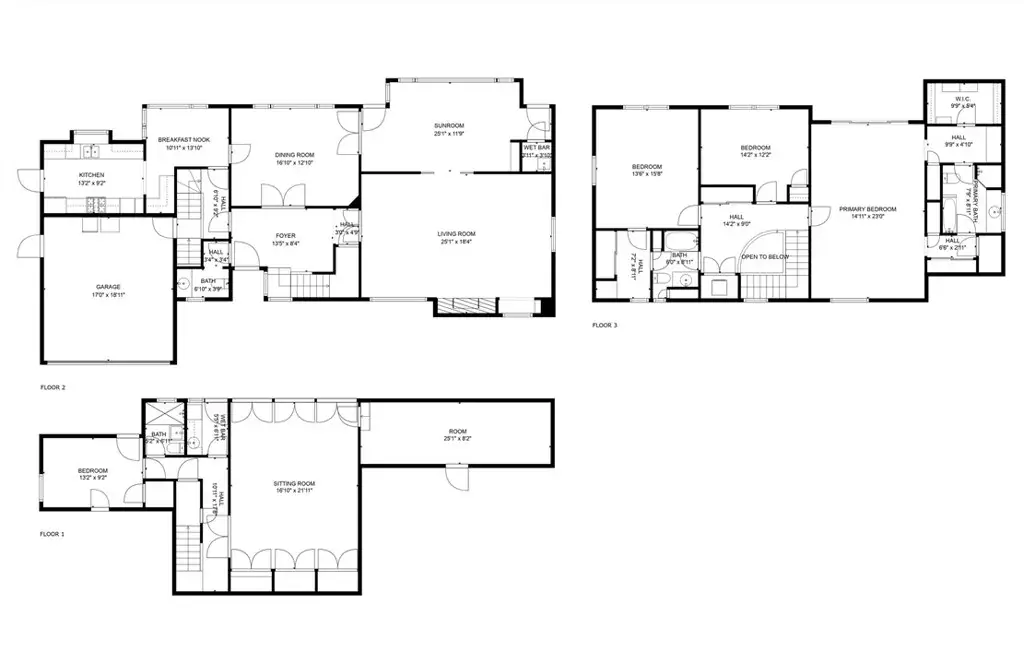
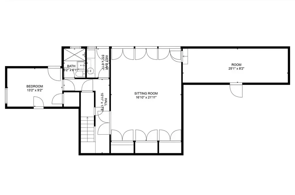
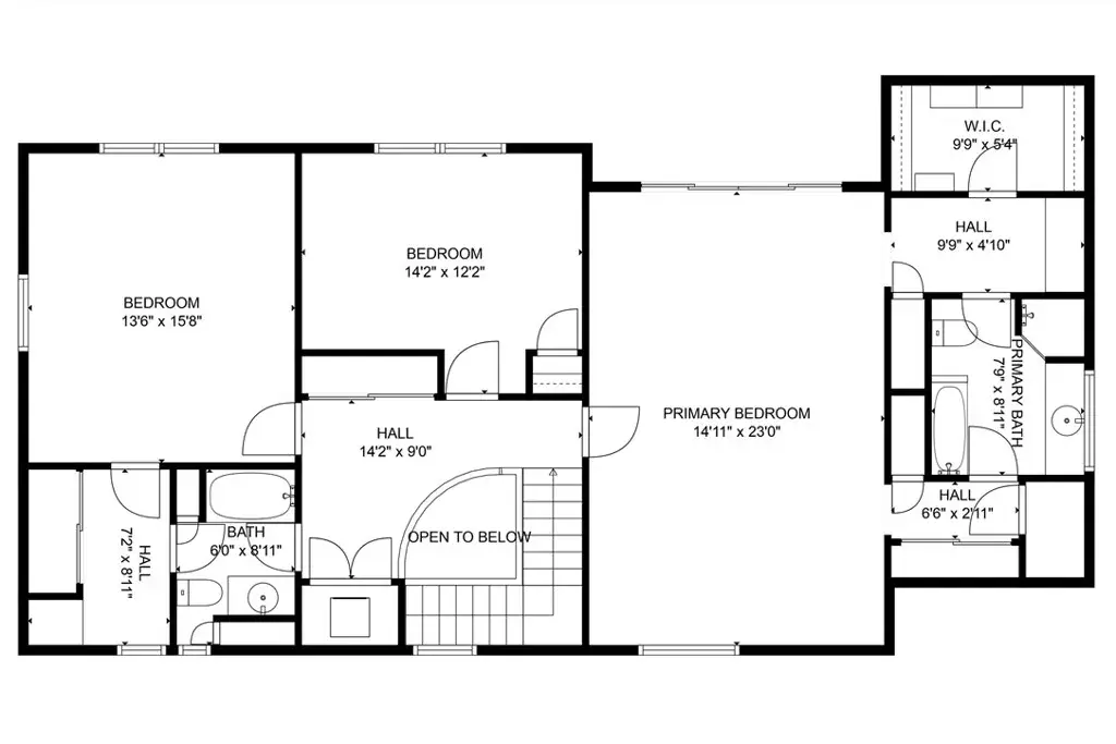
Step into timeless elegance with this beautifully preserved 1941 Cape Cod estate, nestled in the highly sought-after Mar Vista Heights neighborhood! This distinguished mansion offers 4 generously sized bedrooms, and 4 bathrooms, blending classic charm with thoughtful modern conveniences without compromising the original style and design. Primary suite features a viewing balcony and en-suite bath, equipped with soaking bathtub and separate shower. Rich original marble vanities grace the bathrooms, while gleaming hardwood floors flow seamlessly through the home, adding warmth and sophistication. The expansive formal dining room is ideal for hosting elegant dinners, and the large living room features a stunning fireplace, perfect for cozy evenings or stylish entertaining. Additional space with bar, wine tasting area adjacent to living room for larger gatherings. The chef’s kitchen has ample counter space and a casual dining nook for relaxed meals. Downstairs, a versatile bedroom includes its own butlers kitchen, making it ideal for guests, multi generational living, or elevated entertaining needs. Lower level also features a large family room area and a private and spacious office, studio, game or hobby room, may not be included in the square feet noted. Pool sized private backyard, city and neighborhood views. This is a rare opportunity to own a stately, character-rich home in one of Whittier’s prestigious enclaves.
Property Details
Price:
$1,799,000
MLS #:
PW25098419
Status:
Active Under Contract
Beds:
4
Baths:
4
Type:
Single Family
Subtype:
Single Family Residence
Neighborhood:
670whittier
Listed Date:
Aug 30, 2025
Finished Sq Ft:
3,778
Lot Size:
14,833 sqft / 0.34 acres (approx)
Year Built:
1941
Schools
School District:
Whittier Union High
Interior
Appliances
MW, GS
Bathrooms
2 Full Bathrooms, 1 Three Quarter Bathroom, 1 Half Bathroom
Cooling
CA
Flooring
TILE, WOOD, CARP
Heating
FA, CF
Laundry Features
ICL
Exterior
Architectural Style
CPC
Community Features
SDW, SL, SUB
Construction Materials
BRK, STC, WOD
Parking Spots
2
Roof
CMP
Security Features
SD, COD
Financial
Get Out There, A Simply Outgoing Approach to Life. James Outland Jr. is one of those rare people who simply has an outgoing approach to life. No matter the activity… from dune buggy riding to skydiving to motorcycling to riding the local Pismo Beach waves… James Outland Jr. approaches life with a “just get out there and do it” kind of attitude. A zest for Life. James’ zest for life is obviously apparent in his many exciting hobbies. In his spare time, he loves riding dune buggies or hi…
More About JamesMortgage Calculator
Map
Current real estate data for Single Family in Whittier as of Feb 13, 2026
207
Single Family Listed
69
Avg DOM
431
Avg $ / SqFt
$835,173
Avg List Price
Community
- Address14004 Eastridge DR Whittier CA
- CityWhittier
- CountyLos Angeles
- Zip Code90602
Similar Listings Nearby
Property Summary
- 14004 Eastridge DR Whittier CA is a Single Family for sale in Whittier, CA, 90602. It is listed for $1,799,000 and features 4 beds, 4 baths, and has approximately 3,778 square feet of living space, and was originally constructed in 1941. The current price per square foot is $476. The average price per square foot for Single Family listings in Whittier is $431. The average listing price for Single Family in Whittier is $835,173. To schedule a showing of MLS#pw25098419 at 14004 Eastridge DR in Whittier, CA, contact your James Outland agent at 8057482262.
Courtesy of Keller Williams Realty. Disclaimer: All data relating to real estate for sale on this page comes from the Broker Reciprocity (BR) of the California Regional Multiple Listing Service. Detailed information about real estate listings held by brokerage firms other than James Outland include the name of the listing broker. Neither the listing company nor James Outland shall be responsible for any typographical errors, misinformation, misprints and shall be held totally harmless. The Broker providing this data believes it to be correct, but advises interested parties to confirm any item before relying on it in a purchase decision. Copyright 2026. California Regional Multiple Listing Service. All rights reserved. 14004 Eastridge DR
Whittier, CA


























































