$1,349,000
1708 Royal St George DR
Westlake Village, CA, 91362
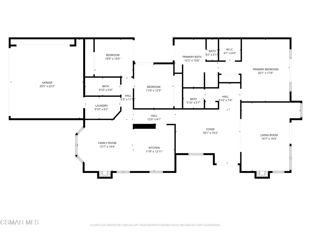
Beautiful single story 3 br townhome in highly desirable area of North Ranch in Westlake Village. Privately gated entrance, direct access 2-car garage, and convenient indoor laundry room are just a few of the features this home has to offer. As you enter the home through the front double door, you’re greeted on one side by a large living rm w/fireplace, vaulted ceiling and french doors opening to the peaceful and private backyard. There is a separate dining rm on the other side of the home’s entrance. With granite counters and stainless steel appliances, the kitchen opens to a nice sized family room or eating area with a fireplace and charming bay window. The primary bedroom ensuite is spacious, featuring vaulted ceilings, french doors leading to the backyard, two separate closets and the well-appointed bathroom with spa tub, separate shower and double vanity. Two additional bedrooms are located around the other side of the home, both having access to a lovely and tranquil garden atrium where you can enjoy morning coffee or a glass of wine before dinner. Other features include wood and polished limestone flooring, two fireplaces, and an enchanting woodland setting all around, including a creek behind the large entertainers’ backyard with an outdoor kitchen. The property offers several relaxing outdoor spaces and the Ben Johnson Fairway townhome community has so much to offer, situated around the golf course of North Ranch Country Club, with easy freeway access, nearby shops and restaurants and award-winning schools. It’s a lifestyle choice, so don’t miss out on this single story opportunity!
Property Details
Price:
$1,349,000
MLS #:
226000002
Status:
Pending
Beds:
3
Baths:
3
Type:
Townhouse
Subdivision:
Ben Johnson Fairway NR-745 – 745
Neighborhood:
wvwestlakevillage
Listed Date:
Jan 26, 2026
Finished Sq Ft:
2,196
Lot Size:
9,147 sqft / 0.21 acres (approx)
Year Built:
1979
Schools
School District:
Conejo Valley Unified
Interior
Appliances
DW, RF, WLR, GAS
Bathrooms
2 Full Bathrooms, 1 Half Bathroom
Cooling
CA
Flooring
STON, WOOD
Heating
FA, GAS
Laundry Features
GAS, IR
Exterior
Construction Materials
STC
Exterior Features
BQ
Parking Spots
2
Financial
HOA Fee
$220
HOA Frequency
QTR
Get Out There, A Simply Outgoing Approach to Life. James Outland Jr. is one of those rare people who simply has an outgoing approach to life. No matter the activity… from dune buggy riding to skydiving to motorcycling to riding the local Pismo Beach waves… James Outland Jr. approaches life with a “just get out there and do it” kind of attitude. A zest for Life. James’ zest for life is obviously apparent in his many exciting hobbies. In his spare time, he loves riding dune buggies or hi…
More About JamesMortgage Calculator
Map
Current real estate data for Townhouse in Westlake Village as of Feb 14, 2026
11
Townhouse Listed
38
Avg DOM
592
Avg $ / SqFt
$1,008,723
Avg List Price
Community
- Address1708 Royal St George DR Westlake Village CA
- SubdivisionBen Johnson Fairway NR-745 – 745
- CityWestlake Village
- CountyVentura
- Zip Code91362
Similar Listings Nearby
Property Summary
- Located in the Ben Johnson Fairway NR-745 – 745 subdivision, 1708 Royal St George DR Westlake Village CA is a Townhouse for sale in Westlake Village, CA, 91362. It is listed for $1,349,000 and features 3 beds, 3 baths, and has approximately 2,196 square feet of living space, and was originally constructed in 1979. The current price per square foot is $614. The average price per square foot for Townhouse listings in Westlake Village is $592. The average listing price for Townhouse in Westlake Village is $1,008,723. To schedule a showing of MLS#226000002 at 1708 Royal St George DR in Westlake Village, CA, contact your James Outland agent at 8057482262.
Courtesy of Equity Union Real Estate. Disclaimer: All data relating to real estate for sale on this page comes from the Broker Reciprocity (BR) of the California Regional Multiple Listing Service. Detailed information about real estate listings held by brokerage firms other than James Outland include the name of the listing broker. Neither the listing company nor James Outland shall be responsible for any typographical errors, misinformation, misprints and shall be held totally harmless. The Broker providing this data believes it to be correct, but advises interested parties to confirm any item before relying on it in a purchase decision. Copyright 2026. California Regional Multiple Listing Service. All rights reserved. 1708 Royal St George DR
Westlake Village, CA

























































