$1,049,000
8455 Fountain AV #414
West Hollywood, CA, 90069
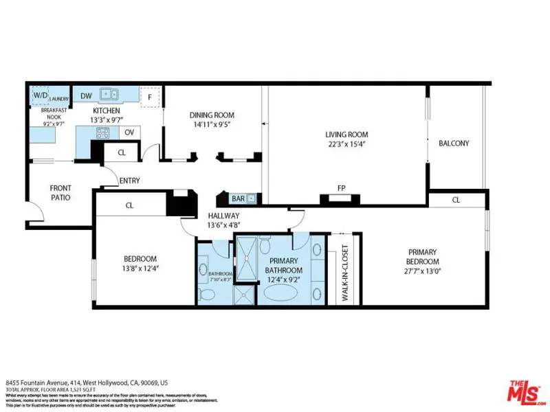
Remodeled and privately set just one block south of the Sunset Strip, this gated 2-bedroom, 2-bath residence offers approximately 1,570 sq. ft. of bright, open living space with a rare sense of calm in the heart of West Hollywood. Tucked behind mature trees within a serene courtyard setting, Residence 414 combines generous scale, thoughtful design, and resort-style amenities. A step-down living room with recessed lighting opens to a private balcony overlooking the tranquil interior grounds, while a gated front patio provides an uncommon sense of arrival and additional outdoor privacy. The kitchen features custom cabinetry and new stainless-steel appliances, complemented by a nearby wet bar with built-in storage ideal for entertaining. The spacious primary suite is a true retreat, complete with a walk-in closet and a spa-inspired bathroom featuring marble countertops, soaking tub, step-in shower, dual sinks, make-up station, custom lighting, and a dedicated vanity. The second bedroom is privately situated down the hall near a full bathroom, making it well-suited for guests or a home office. Additional highlights include hardwood flooring, designer fixtures, refined lighting, a full-size washer and dryer, and a secure location near the elevator and building amenities. The home includes two side-by-side parking spaces in the secure garage and a separate storage unit. Residents enjoy an exceptional suite of amenities, including a swimming pool, indoor and outdoor spas, gym, saunas, library, and clubhouse, offering a true resort-like lifestyle moments from world-class dining, shopping, and nightlife.
Property Details
Price:
$1,049,000
MLS #:
26634881
Status:
Active
Beds:
2
Baths:
2
Type:
Condo
Subtype:
Condominium
Neighborhood:
c10westhollywoodvicinity
Listed Date:
Jan 16, 2026
Finished Sq Ft:
1,570
Total Sq Ft:
1,570
Lot Size:
85,412 sqft / 1.96 acres (approx)
Year Built:
1975
Schools
Interior
Appliances
DW, MW, RF, BI
Bathrooms
2 Full Bathrooms
Cooling
CA
Heating
CF
Laundry Features
DINC, WINC
Exterior
Architectural Style
CNT
Parking Spots
2
Security Features
SD, AG, COD, CRD, GC
Financial
HOA Fee
$943
HOA Frequency
MO
Get Out There, A Simply Outgoing Approach to Life. James Outland Jr. is one of those rare people who simply has an outgoing approach to life. No matter the activity… from dune buggy riding to skydiving to motorcycling to riding the local Pismo Beach waves… James Outland Jr. approaches life with a “just get out there and do it” kind of attitude. A zest for Life. James’ zest for life is obviously apparent in his many exciting hobbies. In his spare time, he loves riding dune buggies or hi…
More About JamesMortgage Calculator
Map
Current real estate data for Condo in West Hollywood as of Feb 12, 2026
156
Condo Listed
66
Avg DOM
1,014
Avg $ / SqFt
$1,575,777
Avg List Price
Community
- Address8455 Fountain AV #414 West Hollywood CA
- CityWest Hollywood
- CountyLos Angeles
- Zip Code90069
Similar Listings Nearby
Property Summary
- 8455 Fountain AV #414 West Hollywood CA is a Condo for sale in West Hollywood, CA, 90069. It is listed for $1,049,000 and features 2 beds, 2 baths, and has approximately 1,570 square feet of living space, and was originally constructed in 1975. The current price per square foot is $668. The average price per square foot for Condo listings in West Hollywood is $1,014. The average listing price for Condo in West Hollywood is $1,575,777. To schedule a showing of MLS#26634881 at 8455 Fountain AV #414 in West Hollywood, CA, contact your James Outland agent at 8057482262.
Courtesy of Keller Williams Beverly Hills. Disclaimer: All data relating to real estate for sale on this page comes from the Broker Reciprocity (BR) of the California Regional Multiple Listing Service. Detailed information about real estate listings held by brokerage firms other than James Outland include the name of the listing broker. Neither the listing company nor James Outland shall be responsible for any typographical errors, misinformation, misprints and shall be held totally harmless. The Broker providing this data believes it to be correct, but advises interested parties to confirm any item before relying on it in a purchase decision. Copyright 2026. California Regional Multiple Listing Service. All rights reserved. 8455 Fountain AV #414
West Hollywood, CA













































