$1,685,000
3114 E Garvey Ave S
West Covina, CA, 91791
Excellent opportunity to own vacant land located at 3114 E Garvey Ave S, West Covina, CA 91791. Conveniently situated with easy access to major streets, shopping centers, dining, and local amenities. This parcel offers potential for future development or investment, subject to buyer’s due diligence and verification with the City of West Covina regarding zoning, land use, utilities, and building requirements.
Property is sold as-is. Buyer to conduct all investigations to satisfy themselves as to permitted uses, lot dimensions, availability of utilities, and any other conditions affecting the property. Great opportunity for investors or developers looking to secure land in an established area of West Covina.
High -Visibility location along freeway I-10 .Potential large electronic billboard for I-10 Visible .High-Visibility location along busy commercial corridor .Walking/Driving access to popular amenities -including McDonald’s / In-N-Out Burger/ Eastland Center / IKEA/ LA Fitness
Lot Size : 16,272 SQFT
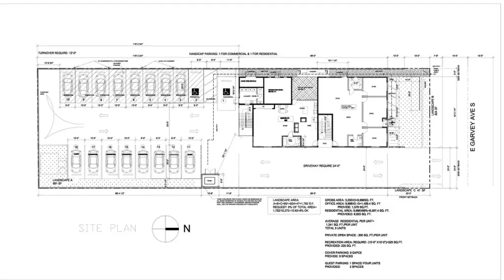
Zoning: City upgrade to NMU (Commercial or Mix-USE )
It offers flexibility for possible commercial, residential, or mixed-use development (buyer to verify)
All Civil Engineering report is ready
Summit to city planning department : 5 units Residential and 1 office (Mix-use project )
More information contact : 6268774134
Property is sold as-is. Buyer to conduct all investigations to satisfy themselves as to permitted uses, lot dimensions, availability of utilities, and any other conditions affecting the property. Great opportunity for investors or developers looking to secure land in an established area of West Covina.
High -Visibility location along freeway I-10 .Potential large electronic billboard for I-10 Visible .High-Visibility location along busy commercial corridor .Walking/Driving access to popular amenities -including McDonald’s / In-N-Out Burger/ Eastland Center / IKEA/ LA Fitness
Lot Size : 16,272 SQFT
Zoning: City upgrade to NMU (Commercial or Mix-USE )
It offers flexibility for possible commercial, residential, or mixed-use development (buyer to verify)
All Civil Engineering report is ready
Summit to city planning department : 5 units Residential and 1 office (Mix-use project )
More information contact : 6268774134
Property Details
Price:
$1,685,000
MLS #:
TR26005044
Status:
Active
Beds:
0
Baths:
0
Type:
Land
Neighborhood:
669westcovina
Listed Date:
Jan 9, 2026
Lot Size:
16,006 sqft / 0.37 acres (approx)
Schools
Interior
Exterior
Community Features
SUB
Fencing
BW
View
NO
Financial
Get Out There, A Simply Outgoing Approach to Life. James Outland Jr. is one of those rare people who simply has an outgoing approach to life. No matter the activity… from dune buggy riding to skydiving to motorcycling to riding the local Pismo Beach waves… James Outland Jr. approaches life with a “just get out there and do it” kind of attitude. A zest for Life. James’ zest for life is obviously apparent in his many exciting hobbies. In his spare time, he loves riding dune buggies or hi…
More About JamesMortgage Calculator
Map
Current real estate data for Land in West Covina as of Apr 08, 2026
10
Land Listed
97
Avg DOM
$926,100
Avg List Price
Community
- Address3114 E Garvey Ave S West Covina CA
- CityWest Covina
- CountyLos Angeles
- Zip Code91791
Similar Listings Nearby
Property Summary
- 3114 E Garvey Ave S West Covina CA is a Land for sale in West Covina, CA, 91791. It is listed for $1,685,000 and features 0 acres. To schedule a showing of MLS#tr26005044 at 3114 E Garvey Ave S in West Covina, CA, contact your James Outland agent at 8057482262.
Courtesy of Star Max Realty. Disclaimer: All data relating to real estate for sale on this page comes from the Broker Reciprocity (BR) of the California Regional Multiple Listing Service. Detailed information about real estate listings held by brokerage firms other than James Outland include the name of the listing broker. Neither the listing company nor James Outland shall be responsible for any typographical errors, misinformation, misprints and shall be held totally harmless. The Broker providing this data believes it to be correct, but advises interested parties to confirm any item before relying on it in a purchase decision. Copyright 2026. California Regional Multiple Listing Service. All rights reserved. 3114 E Garvey Ave S
West Covina, CA










