$669,000
1772 Promenade Cir
Vista, CA, 92083
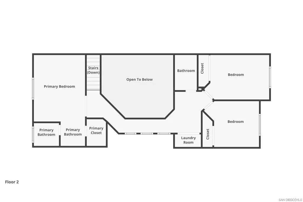
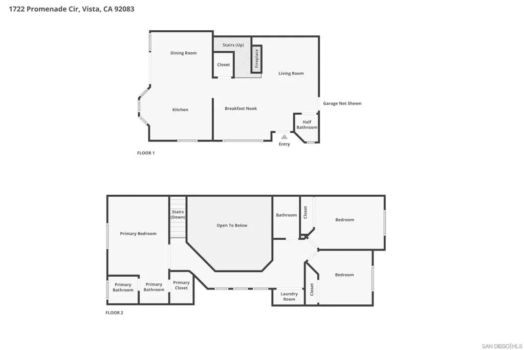
Located in the gated community of California Villas, this 3-bedroom, 2.5-bath townhome features vaulted ceilings, tall windows, and great natural light. The living area offers tile flooring, a fireplace, and an open layout that connects to a functional kitchen with plenty of storage. Upstairs, the primary bedroom includes a walk-in closet and a bathroom with dual sinks. All bedrooms have ceiling fans, and the home includes a new A/C unit and new water heater. An attached 2-car garage with direct access and a private patio offers extra storage and outdoor space. Community amenities include a large greenspace, tot-lot, and guest parking. HOA covers roof maintenance, plus water, sewer, and trash. Conveniently located near Hwy 78, Costco, dining, and everyday essentials, with easy access to nearby beaches just a short drive away.
Property Details
Price:
$669,000
MLS #:
260008376SD
Status:
Active
Beds:
3
Baths:
3
Type:
Single Family
Subtype:
Single Family Residence
Neighborhood:
92083vista
Listed Date:
Apr 9, 2026
Finished Sq Ft:
1,426
Lot Size:
2,321 sqft / 0.05 acres (approx)
Year Built:
1989
Schools
Interior
Bathrooms
2 Full Bathrooms, 1 Half Bathroom
Cooling
CA
Heating
ELC, FA
Interior Features
CC
Laundry Features
ELC
Levels
U
Exterior
Construction Materials
STC
Fencing
PTL
Garage Spaces
2
Parking Spots
3
Parking Total
3
Patio And Porch Features
PTO
Financial
HOA Fee
$420
HOA Fee Frequency
MO
Get Out There, A Simply Outgoing Approach to Life. James Outland Jr. is one of those rare people who simply has an outgoing approach to life. No matter the activity… from dune buggy riding to skydiving to motorcycling to riding the local Pismo Beach waves… James Outland Jr. approaches life with a “just get out there and do it” kind of attitude. A zest for Life. James’ zest for life is obviously apparent in his many exciting hobbies. In his spare time, he loves riding dune buggies or hi…
More About JamesMortgage Calculator
Map
Current real estate data for Single Family in Vista as of Apr 09, 2026
244
Single Family Listed
90
Avg DOM
437
Avg $ / SqFt
$998,386
Avg List Price
Community
- Address1772 Promenade Cir Vista CA
- CityVista
- CountySan Diego
- Zip Code92083
Similar Listings Nearby
Property Summary
- 1772 Promenade Cir Vista CA is a Single Family for sale in Vista, CA, 92083. It is listed for $669,000 and features 3 beds, 3 baths, and has approximately 1,426 square feet of living space, and was originally constructed in 1989. The current price per square foot is $469. The average price per square foot for Single Family listings in Vista is $437. The average listing price for Single Family in Vista is $998,386. To schedule a showing of MLS#260008376sd at 1772 Promenade Cir in Vista, CA, contact your James Outland agent at 8057482262.
Courtesy of eXp Realty of California, Inc.. Disclaimer: All data relating to real estate for sale on this page comes from the Broker Reciprocity (BR) of the California Regional Multiple Listing Service. Detailed information about real estate listings held by brokerage firms other than James Outland include the name of the listing broker. Neither the listing company nor James Outland shall be responsible for any typographical errors, misinformation, misprints and shall be held totally harmless. The Broker providing this data believes it to be correct, but advises interested parties to confirm any item before relying on it in a purchase decision. Copyright 2026. California Regional Multiple Listing Service. All rights reserved. 1772 Promenade Cir
Vista, CA
































