$495,000
15315 Tokay ST
Victorville, CA, 92395
HUGE PRICE REDUCTION !! Shovel-Ready 8-Unit Apartment Complex – Prime Investment Opportunity! Seller financing options available.
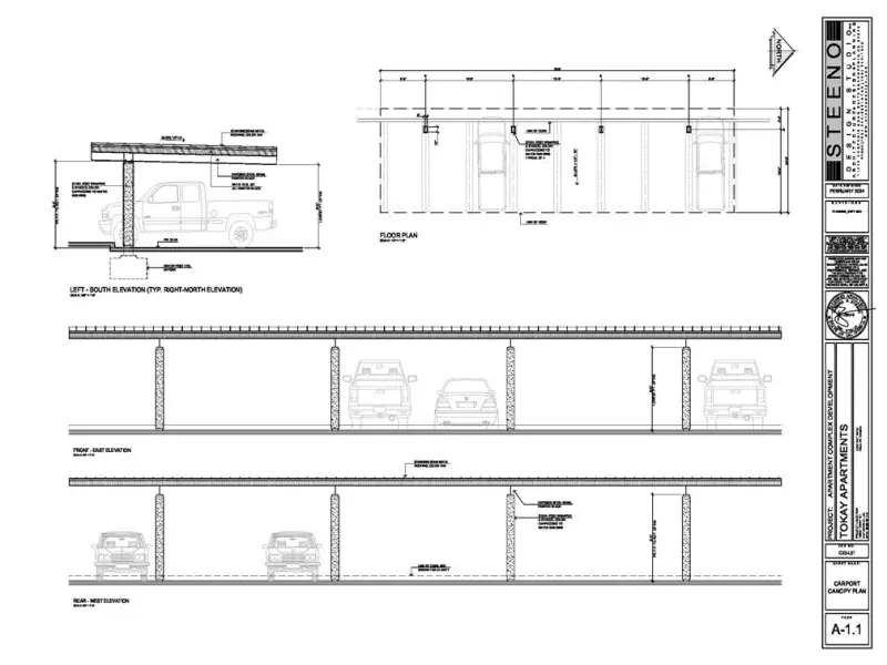
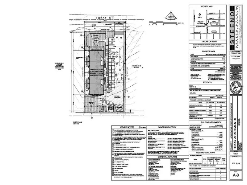
Skip the wait and start building ASAP with this fully approved 8-unit apartment complex! All plans approved and in place, saving you up to two years of work and ensuring a hassle-free development process.
Located in a high-demand area, this project is designed to maximize rental income and deliver strong returns. Each unit is projected to rent for $2,200 per month, generating a value at a 6% cap rate of $3,500,000—a perfect formula for long-term success.
Don’t miss this rare shovel-ready opportunity to secure a high-performing asset.
Plans and drawings are under the supplements tab. Act now—opportunities like this won’t last!
Contact us today for details! This is your chance to hit the ground running. and secure this shovel-ready opportunity!
Skip the wait and start building ASAP with this fully approved 8-unit apartment complex! All plans approved and in place, saving you up to two years of work and ensuring a hassle-free development process.
Located in a high-demand area, this project is designed to maximize rental income and deliver strong returns. Each unit is projected to rent for $2,200 per month, generating a value at a 6% cap rate of $3,500,000—a perfect formula for long-term success.
Don’t miss this rare shovel-ready opportunity to secure a high-performing asset.
Plans and drawings are under the supplements tab. Act now—opportunities like this won’t last!
Contact us today for details! This is your chance to hit the ground running. and secure this shovel-ready opportunity!
Property Details
Price:
$495,000
MLS #:
IV25036206
Status:
Active
Beds:
0
Baths:
0
Type:
Land
Neighborhood:
vicvictorville
Listed Date:
Feb 19, 2025
Lot Size:
25,200 sqft / 0.58 acres (approx)
Schools
Interior
Exterior
Community Features
FHL
Financial
Get Out There, A Simply Outgoing Approach to Life. James Outland Jr. is one of those rare people who simply has an outgoing approach to life. No matter the activity… from dune buggy riding to skydiving to motorcycling to riding the local Pismo Beach waves… James Outland Jr. approaches life with a “just get out there and do it” kind of attitude. A zest for Life. James’ zest for life is obviously apparent in his many exciting hobbies. In his spare time, he loves riding dune buggies or hi…
More About JamesMortgage Calculator
Map
Current real estate data for Land in Victorville as of Feb 13, 2026
278
Land Listed
168
Avg DOM
$491,294
Avg List Price
Community
- Address15315 Tokay ST Victorville CA
- CityVictorville
- CountySan Bernardino
- Zip Code92395
Similar Listings Nearby
Property Summary
- 15315 Tokay ST Victorville CA is a Land for sale in Victorville, CA, 92395. It is listed for $495,000 and features 1 acres. To schedule a showing of MLS#iv25036206 at 15315 Tokay ST in Victorville, CA, contact your James Outland agent at 8057482262.
Courtesy of KELLER WILLIAMS REALTY. Disclaimer: All data relating to real estate for sale on this page comes from the Broker Reciprocity (BR) of the California Regional Multiple Listing Service. Detailed information about real estate listings held by brokerage firms other than James Outland include the name of the listing broker. Neither the listing company nor James Outland shall be responsible for any typographical errors, misinformation, misprints and shall be held totally harmless. The Broker providing this data believes it to be correct, but advises interested parties to confirm any item before relying on it in a purchase decision. Copyright 2026. California Regional Multiple Listing Service. All rights reserved. 15315 Tokay ST
Victorville, CA









