$1,690,000
2302 E 38th ST
Vernon, CA, 90058
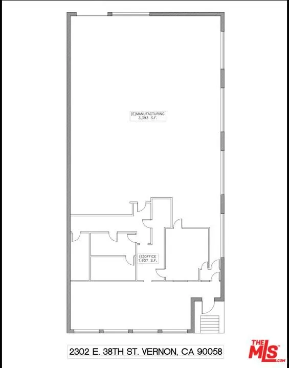
Proudly presenting 2302 E 38th St, a prime industrial asset in the heart of Vernon. Discover this 5,000 SF space that is absolutely perfect for manufacturing, assembly, warehousing, or logistics. Approximately 1,800 SF is dedicated to a showroom and office space, complete with two separate bathrooms. The property features a high ceiling and a 400-amp power capacity, supporting robust operations. Dock-high loading (rare for this size) ensures strategic efficiency in seamless logistics with smooth shipping and receiving, while a fully fenced, gated parking yard enhances convenience and safety. Additionally, the neighboring security outpost provides added peace of mind. Low-cost Vernon utilities are the cherry-on-top providing operational savings in the range of 20-30%. Seize this versatile space wonderfully suitable as both an investment and also an owner-use opportunity ideal for SBA 504 financing with 10% down payment.
Property Details
Price:
$1,690,000
MLS #:
26672933
Status:
Active
Beds:
0
Baths:
0
Type:
Commercial
Neighborhood:
t1vernonmaywoodhuntpkbellnofflorenc
Listed Date:
Apr 2, 2026
Total Sq Ft:
5,000
Lot Size:
7,079 sqft / 0.16 acres (approx)
Year Built:
1950
Schools
Interior
Exterior
Parking Spots
8
Parking Total
8
Financial
Get Out There, A Simply Outgoing Approach to Life. James Outland Jr. is one of those rare people who simply has an outgoing approach to life. No matter the activity… from dune buggy riding to skydiving to motorcycling to riding the local Pismo Beach waves… James Outland Jr. approaches life with a “just get out there and do it” kind of attitude. A zest for Life. James’ zest for life is obviously apparent in his many exciting hobbies. In his spare time, he loves riding dune buggies or hi…
More About JamesMortgage Calculator
Map
Current real estate data for Commercial in Vernon as of Apr 07, 2026
4
Commercial Listed
93
Avg DOM
$2,886,000
Avg List Price
Community
- Address2302 E 38th ST Vernon CA
- CityVernon
- CountyLos Angeles
- Zip Code90058
Similar Listings Nearby
Property Summary
- 2302 E 38th ST Vernon CA is a Commercial for sale in Vernon, CA, 90058. It is listed for $1,690,000 To schedule a showing of MLS#26672933 at 2302 E 38th ST in Vernon, CA, contact your James Outland agent at 8057482262.
Courtesy of Mi Jeong Kim. Disclaimer: All data relating to real estate for sale on this page comes from the Broker Reciprocity (BR) of the California Regional Multiple Listing Service. Detailed information about real estate listings held by brokerage firms other than James Outland include the name of the listing broker. Neither the listing company nor James Outland shall be responsible for any typographical errors, misinformation, misprints and shall be held totally harmless. The Broker providing this data believes it to be correct, but advises interested parties to confirm any item before relying on it in a purchase decision. Copyright 2026. California Regional Multiple Listing Service. All rights reserved. 2302 E 38th ST
Vernon, CA
























