$2,500,000
,67,71, College DR
Ventura, CA, 93003
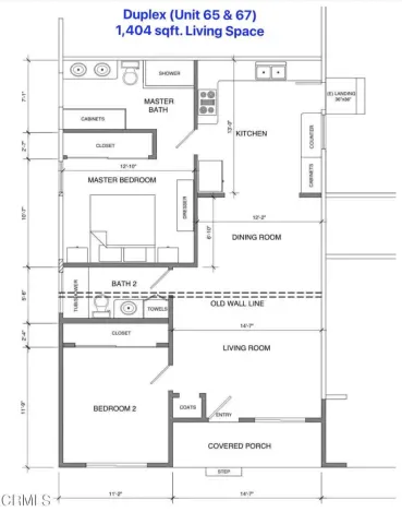
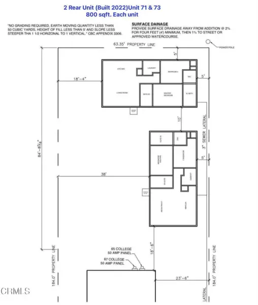
Amazing cash-flow investment in prime Midtown Ventura, just 10 minutes to the beach! Updated duplex plus 2 NEW units on a large lot. Front unit 1BD/1BA and rear unit 2BD/1BA, both currently rented. Two new (2022 built) back units each feature 2BD/2BA, private yards, and in-unit washer/dryer with appliances. Strong total rental income.2-car garage with laundry, and spacious driveway parking for up to 5 cars. New electrical panels, separate electric and water meters, updated plumbing, new fencing, and drought-tolerant landscaping. Close to shopping, schools, hospitals, mall, dining, and easy 101 access. Turn-key with strong income and future upside. Don’t miss this opportunity.(Photos were taken by the seller before tenants move in).
Property Details
Price:
$2,500,000
MLS #:
V1-34468
Status:
Active
Beds:
0
Baths:
0
Type:
Single Family
Subtype:
Quadruplex
Subdivision:
Ventura: Other
Listed Date:
Feb 4, 2026
Total Sq Ft:
3,004
Lot Size:
11,325 sqft / 0.26 acres (approx)
Year Built:
1954
Schools
Interior
Appliances
MW, RF, GO, GR, GWH, WHU
Cooling
NO
Flooring
LAM
Heating
CF
Laundry Features
GAS, IG, IN, DINC, WH, WINC
Levels
A
Exterior
Architectural Style
TRD
Common Walls
NOA, _1CW
Community Features
SDW, CRB
Construction Materials
STC, VNL, DWAL
Exterior Features
LIT, RG
Fencing
WD
Garage Spaces
2
Parking Spots
5
Parking Total
5
Roof
CMP
Security Features
SD, COD
Spa Features
NO
View
NO
Window Features
SCR
Financial
Get Out There, A Simply Outgoing Approach to Life. James Outland Jr. is one of those rare people who simply has an outgoing approach to life. No matter the activity… from dune buggy riding to skydiving to motorcycling to riding the local Pismo Beach waves… James Outland Jr. approaches life with a “just get out there and do it” kind of attitude. A zest for Life. James’ zest for life is obviously apparent in his many exciting hobbies. In his spare time, he loves riding dune buggies or hi…
More About JamesMortgage Calculator
Map
Current real estate data for Single Family in Ventura as of Apr 11, 2026
269
Single Family Listed
65
Avg DOM
538
Avg $ / SqFt
$1,184,142
Avg List Price
Community
- Address,67,71, College DR Ventura CA
- SubdivisionVentura: Other
- CityVentura
- CountyVentura
- Zip Code93003
Similar Listings Nearby
Property Summary
- Located in the Ventura: Other subdivision, ,67,71, College DR Ventura CA is a Single Family for sale in Ventura, CA, 93003. It is listed for $2,500,000 and features 0 beds, 0 baths, and has approximately 0 square feet of living space, and was originally constructed in 1954. The average price per square foot for Single Family listings in Ventura is $538. The average listing price for Single Family in Ventura is $1,184,142. To schedule a showing of MLS#v1-34468 at ,67,71, College DR in Ventura, CA, contact your James Outland agent at 8057482262.
Courtesy of Pinnacle Estate Properties, In. Disclaimer: All data relating to real estate for sale on this page comes from the Broker Reciprocity (BR) of the California Regional Multiple Listing Service. Detailed information about real estate listings held by brokerage firms other than James Outland include the name of the listing broker. Neither the listing company nor James Outland shall be responsible for any typographical errors, misinformation, misprints and shall be held totally harmless. The Broker providing this data believes it to be correct, but advises interested parties to confirm any item before relying on it in a purchase decision. Copyright 2026. California Regional Multiple Listing Service. All rights reserved. ,67,71, College DR
Ventura, CA



































