$1,299,000
650 Charleston PL
Ventura, CA, 93004
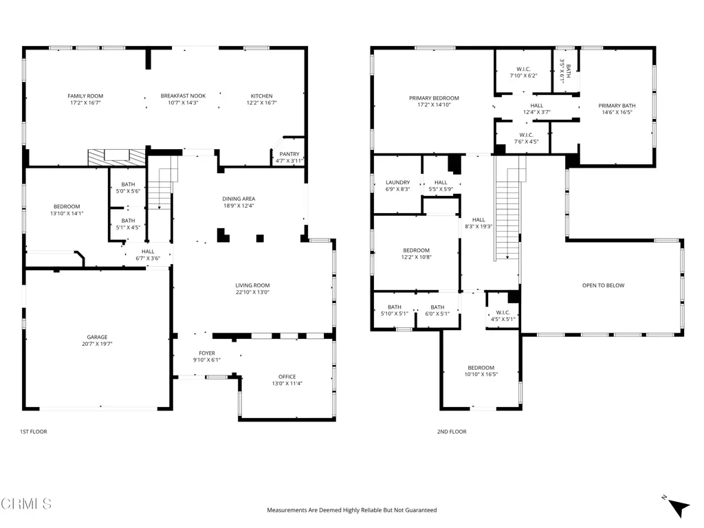
Reduced Price!!! Spacious Spanish Style Former Model Move-In Ready Home located in the desirable Santa Rosa Walk neighborhood. This gorgeous home has 3,181 square feet, 4 Bedrooms, 3 bathrooms. Downstairs has a 4th Bedroom and 3rd bathroom plus an office with built-ins. Roomy living room with 2-story soaring ceilings presents plenty of natural light. Formal dining room for hosting family and friends and direct access to a side patio with a sparkling fountain. Downstairs bedroom and bathroom with large shower is available on the main floor for guests and potential for multigenerational living. Open concept Family room with crackling fireplace and built-ins. Enjoy preparing meals in the Gourmet Kitchen featuring walk-in pantry, breakfast bar, new Stainless Steel Refrigerator and plenty of storage plus a view of the landscaped, private backyard. Dual Zone HVAC. Brand new carpet, new exterior paint and a recent Section 1 Termite Clearance. Upstairs features a Large Primary Suite with his and hers walk-in closets and primary bath with dual vanities, Soaking tub and large tiled shower. Two Upstairs Bedrooms with a Jack-n-Jill bath and an Upstairs laundry room with storage and utility sink. Three car garage-two car parking plus separate one-car garage to use as a workshop or storage. Flexible living areas with ADU potential! Brand new carpet, new exterior paint and a recent Section 1 Termite Clearance. No Mello-Roos and No HOA! Near schools, parks, shopping, and minutes to the popular Ventura Pier, beaches and marinas! *Buyer to verify ADU feasibility with local zoning/building departments. Some photos are virtually staged.
Property Details
Price:
$1,299,000
MLS #:
V1-33633
Status:
Active
Beds:
4
Baths:
3
Type:
Single Family
Subtype:
Single Family Residence
Neighborhood:
vc28wellsrdeasttocitylimit
Listed Date:
Dec 3, 2025
Finished Sq Ft:
3,181
Lot Size:
5,662 sqft / 0.13 acres (approx)
Year Built:
2004
Schools
Interior
Appliances
DW, MW, TC, GO, GS, WHU
Bathrooms
2 Full Bathrooms, 1 Three Quarter Bathroom
Cooling
CA
Flooring
TILE, CARP
Heating
FA
Interior Features
GRNC, HCEL
Laundry Features
IR, UL
Levels
U
Exterior
Architectural Style
MED
Attached Garage YN
1
Common Walls
NCW
Community Features
SDW, SL, CRB, GOLF, FISH, HIKI, BIKI
Fencing
BW
Garage Spaces
3
Parking Spots
3
Parking Total
3
Patio And Porch Features
CON
Roof
TLE
Security Features
SD, COD
Spa Features
NO
View
MT
Window Features
DPW
Financial
Get Out There, A Simply Outgoing Approach to Life. James Outland Jr. is one of those rare people who simply has an outgoing approach to life. No matter the activity… from dune buggy riding to skydiving to motorcycling to riding the local Pismo Beach waves… James Outland Jr. approaches life with a “just get out there and do it” kind of attitude. A zest for Life. James’ zest for life is obviously apparent in his many exciting hobbies. In his spare time, he loves riding dune buggies or hi…
More About JamesMortgage Calculator
Map
Current real estate data for Single Family in Ventura as of Apr 11, 2026
268
Single Family Listed
65
Avg DOM
537
Avg $ / SqFt
$1,185,109
Avg List Price
Community
- Address650 Charleston PL Ventura CA
- CityVentura
- CountyVentura
- Zip Code93004
Similar Listings Nearby
Property Summary
- 650 Charleston PL Ventura CA is a Single Family for sale in Ventura, CA, 93004. It is listed for $1,299,000 and features 4 beds, 3 baths, and has approximately 3,181 square feet of living space, and was originally constructed in 2004. The current price per square foot is $408. The average price per square foot for Single Family listings in Ventura is $537. The average listing price for Single Family in Ventura is $1,185,109. To schedule a showing of MLS#v1-33633 at 650 Charleston PL in Ventura, CA, contact your James Outland agent at 8057482262.
Courtesy of RE/MAX Gold Coast REALTORS. Disclaimer: All data relating to real estate for sale on this page comes from the Broker Reciprocity (BR) of the California Regional Multiple Listing Service. Detailed information about real estate listings held by brokerage firms other than James Outland include the name of the listing broker. Neither the listing company nor James Outland shall be responsible for any typographical errors, misinformation, misprints and shall be held totally harmless. The Broker providing this data believes it to be correct, but advises interested parties to confirm any item before relying on it in a purchase decision. Copyright 2026. California Regional Multiple Listing Service. All rights reserved. 650 Charleston PL
Ventura, CA
















































































