$1,339,000
4797 Loma Vista RD
Ventura, CA, 93003
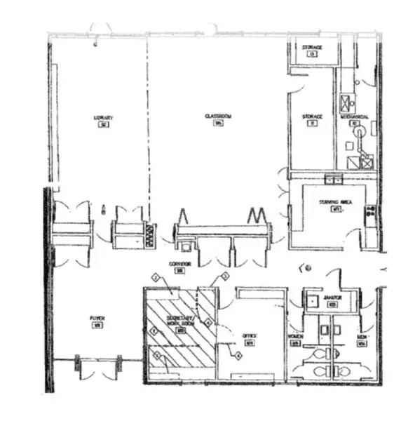
Make this a home or business, zoned R-3,Multi-family units OK, 3,230 Sf Freestanding well maintained Building, LARGE 15,943 sqft lot,17 car parking lot or make the ultimate backyard or tear down and build condos. Upscale location Across from Ventura College.3 miles to beach. Corner lot.
Three rooms ,two restrooms, Kitchen, storage room. Central A/C systems.
ALLOWED USE: SFR, Multi-Family, commercial daycare, Group home,-assisted living Care, Education, Telecom Facility, Auto car Parking lot, Plants Nursery & more. Consult City Planning. Conditional use permit list or rezone to fit your needs.
Three rooms ,two restrooms, Kitchen, storage room. Central A/C systems.
ALLOWED USE: SFR, Multi-Family, commercial daycare, Group home,-assisted living Care, Education, Telecom Facility, Auto car Parking lot, Plants Nursery & more. Consult City Planning. Conditional use permit list or rezone to fit your needs.
Property Details
Price:
$1,339,000
MLS #:
TR24211600
Status:
Active
Beds:
3
Baths:
2
Type:
Single Family
Subtype:
Single Family Residence
Neighborhood:
vtuventura
Listed Date:
Oct 13, 2025
Finished Sq Ft:
3,230
Lot Size:
15,943 sqft / 0.37 acres (approx)
Year Built:
1970
Schools
School District:
Ventura Unified
Interior
Appliances
GD, SCO
Bathrooms
2 Full Bathrooms
Cooling
CA
Flooring
TILE, CARP
Heating
BB, CF
Interior Features
BRKW, UFRN
Laundry Features
NO
Levels
A
Main Level Bathrooms
2
Main Level Bedrooms
3
Exterior
Accessibility Features
LPC, NIS, _2AE, _32W, _36W, PK, RML
Common Walls
NCW
Community Features
SDW, SL
Construction Materials
BLK, BRK
Exterior Features
LIT
Fencing
BW
Parking Spots
17
Parking Total
17
Patio And Porch Features
SL
View
NO
Window Features
DPC
Financial
Get Out There, A Simply Outgoing Approach to Life. James Outland Jr. is one of those rare people who simply has an outgoing approach to life. No matter the activity… from dune buggy riding to skydiving to motorcycling to riding the local Pismo Beach waves… James Outland Jr. approaches life with a “just get out there and do it” kind of attitude. A zest for Life. James’ zest for life is obviously apparent in his many exciting hobbies. In his spare time, he loves riding dune buggies or hi…
More About JamesMortgage Calculator
Map
Current real estate data for Single Family in Ventura as of Apr 07, 2026
241
Single Family Listed
65
Avg DOM
532
Avg $ / SqFt
$1,202,356
Avg List Price
Community
- Address4797 Loma Vista RD Ventura CA
- CityVentura
- CountyVentura
- Zip Code93003
Similar Listings Nearby
Property Summary
- 4797 Loma Vista RD Ventura CA is a Single Family for sale in Ventura, CA, 93003. It is listed for $1,339,000 and features 3 beds, 2 baths, and has approximately 3,230 square feet of living space, and was originally constructed in 1970. The current price per square foot is $415. The average price per square foot for Single Family listings in Ventura is $532. The average listing price for Single Family in Ventura is $1,202,356. To schedule a showing of MLS#tr24211600 at 4797 Loma Vista RD in Ventura, CA, contact your James Outland agent at 8057482262.
Courtesy of Homecoin.com. Disclaimer: All data relating to real estate for sale on this page comes from the Broker Reciprocity (BR) of the California Regional Multiple Listing Service. Detailed information about real estate listings held by brokerage firms other than James Outland include the name of the listing broker. Neither the listing company nor James Outland shall be responsible for any typographical errors, misinformation, misprints and shall be held totally harmless. The Broker providing this data believes it to be correct, but advises interested parties to confirm any item before relying on it in a purchase decision. Copyright 2026. California Regional Multiple Listing Service. All rights reserved. 4797 Loma Vista RD
Ventura, CA

































