$3,825,000
18 Breeze AV
Venice, CA, 90291
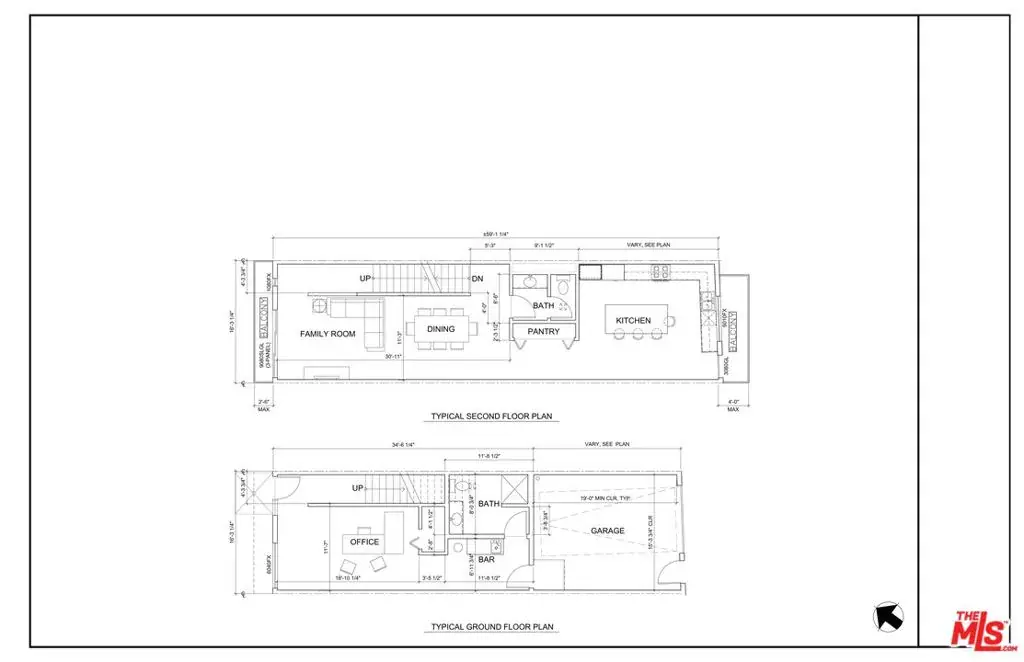
Price includes both properties APN #4226-003-009 and 4226-003-007 just 42 steps from the sand and the famous Venice Beach Boardwalk, this beautifully renovated apartment building is located in a desirable Venice Beach neighborhood adjacent to Marina del Rey and Santa Monica. Opportunity to acquire an income property with strong future upside, ideally located on a walk street. First time on the market since the 1970s some units have been renovated (floors, windows, kitchens…) Property must be sold in conjunction with the adjacent property located at 20-22 Breeze Ave (APN 4226-003-009) only; no separate sale.Price is for Both properties. Subject property to be delivered with one existing tenant. Adjacent four-unit property to be delivered with one existing tenant as well. Buyer to verify all information including square footage, unit count, zoning, development potential, permits, rent roll, and tenancy. Listing broker and seller make no representations or warranties regarding accuracy of information provided. great redevelopment opportunity on this double lot ( please see the renderings )
Property Details
Price:
$3,825,000
MLS #:
26645493
Status:
Active
Beds:
3
Baths:
3
Type:
Single Family
Neighborhood:
c11venice
Listed Date:
Feb 2, 2026
Finished Sq Ft:
2,592
Total Sq Ft:
2,592
Lot Size:
2,699 sqft / 0.06 acres (approx)
Year Built:
1910
Schools
Interior
Cooling
NO
Heating
GAS
Laundry Features
CM, IN
Levels
U
Exterior
Architectural Style
CNT
Garage Spaces
1
Parking Spots
5
Parking Total
5
Spa Features
NO
View
OC
Waterfront Features
BCH, ARLO
Financial
Get Out There, A Simply Outgoing Approach to Life. James Outland Jr. is one of those rare people who simply has an outgoing approach to life. No matter the activity… from dune buggy riding to skydiving to motorcycling to riding the local Pismo Beach waves… James Outland Jr. approaches life with a “just get out there and do it” kind of attitude. A zest for Life. James’ zest for life is obviously apparent in his many exciting hobbies. In his spare time, he loves riding dune buggies or hi…
More About JamesMortgage Calculator
Map
Current real estate data for Single Family in Venice as of Apr 06, 2026
269
Single Family Listed
89
Avg DOM
719
Avg $ / SqFt
$1,723,673
Avg List Price
Community
- Address18 Breeze AV Venice CA
- CityVenice
- CountyLos Angeles
- Zip Code90291
Similar Listings Nearby
Property Summary
- 18 Breeze AV Venice CA is a Single Family for sale in Venice, CA, 90291. It is listed for $3,825,000 and features 3 beds, 3 baths, and has approximately 2,592 square feet of living space, and was originally constructed in 1910. The current price per square foot is $1,476. The average price per square foot for Single Family listings in Venice is $719. The average listing price for Single Family in Venice is $1,723,673. To schedule a showing of MLS#26645493 at 18 Breeze AV in Venice, CA, contact your James Outland agent at 8057482262.
Courtesy of Steve Manavi. Disclaimer: All data relating to real estate for sale on this page comes from the Broker Reciprocity (BR) of the California Regional Multiple Listing Service. Detailed information about real estate listings held by brokerage firms other than James Outland include the name of the listing broker. Neither the listing company nor James Outland shall be responsible for any typographical errors, misinformation, misprints and shall be held totally harmless. The Broker providing this data believes it to be correct, but advises interested parties to confirm any item before relying on it in a purchase decision. Copyright 2026. California Regional Multiple Listing Service. All rights reserved. 18 Breeze AV
Venice, CA








































