$214,000
929 E Foothill #53
Upland, CA, 91786
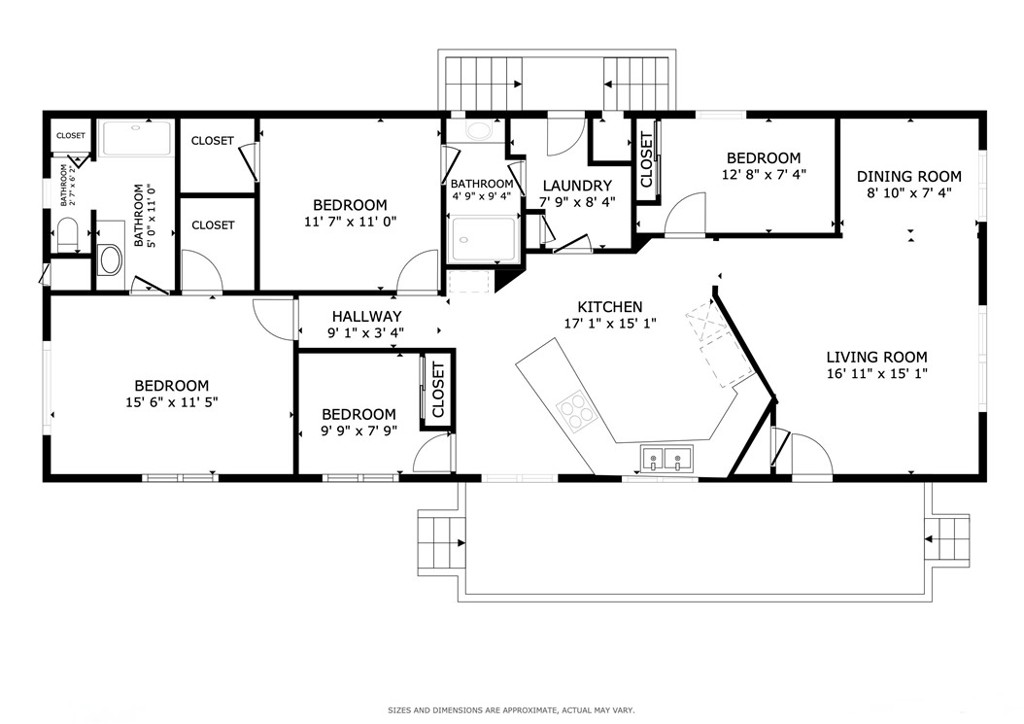
This is for the family who needs rooms! Welcome to this beautifully upgraded 4-bedroom, 2-bath home offering approximately 1,440 sq ft, located in the desirable gated family community, Upland Meadows. Built in 1978, this home has been thoughtfully updated and is situated directly on the greenbelt, providing a peaceful setting with added privacy.
The interior features a stunning upgraded kitchen with granite countertops, ample cabinetry, and an open flow into the dedicated dining area, perfect for everyday living and entertaining. Laminate flooring and shutters runs throughout the main living areas, complemented by custom interior paint that gives the home a modern, move-in-ready feel. The spacious primary bedroom offers plenty of storage and an on suite bathroom which includes a walk-in shower, and the home offers a separate indoor laundry area for convenience. Spacious covered carport parking which has room for three standard size vehicles.
Community amenities include a Fully equipped club house with three pool-tables, sparkling pool, community spa, and a playground, plenty of guest parking – making this an ideal location (it diagonally right across the street from pool) for families of all ages. The gated community provides an added sense of security and pride of ownership.
Located in the heart of Upland, residents enjoy easy access to shopping, dining, parks, top-rated schools, and nearby foothill views. Upland is known for its charming neighborhoods, strong community feel, and proximity to major freeways while still offering a quieter, suburban lifestyle.
This is a rare opportunity to own an upgraded home in a well-maintained, amenity-rich community—don’t miss it and make us an offer we can not refuse!
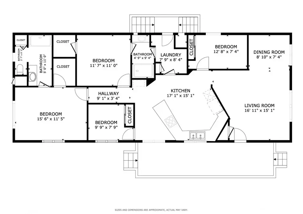
The interior features a stunning upgraded kitchen with granite countertops, ample cabinetry, and an open flow into the dedicated dining area, perfect for everyday living and entertaining. Laminate flooring and shutters runs throughout the main living areas, complemented by custom interior paint that gives the home a modern, move-in-ready feel. The spacious primary bedroom offers plenty of storage and an on suite bathroom which includes a walk-in shower, and the home offers a separate indoor laundry area for convenience. Spacious covered carport parking which has room for three standard size vehicles.
Community amenities include a Fully equipped club house with three pool-tables, sparkling pool, community spa, and a playground, plenty of guest parking – making this an ideal location (it diagonally right across the street from pool) for families of all ages. The gated community provides an added sense of security and pride of ownership.
Located in the heart of Upland, residents enjoy easy access to shopping, dining, parks, top-rated schools, and nearby foothill views. Upland is known for its charming neighborhoods, strong community feel, and proximity to major freeways while still offering a quieter, suburban lifestyle.
This is a rare opportunity to own an upgraded home in a well-maintained, amenity-rich community—don’t miss it and make us an offer we can not refuse!
Property Details
Price:
$214,000
MLS #:
CV25281318
Status:
Active
Beds:
4
Baths:
2
Type:
Single Family
Neighborhood:
690upland
Listed Date:
Mar 31, 2026
Finished Sq Ft:
1,440
Lot Size:
1,440 sqft / 0.03 acres (approx)
Year Built:
1978
Schools
School District:
Upland
Interior
Bathrooms
2 Full Bathrooms
Cooling
CA
Heating
CF
Interior Features
GRNC
Laundry Features
IN
Levels
A
Exterior
Community Features
SDW, SL, CRB
View
PK, PE, NE
Financial
Lease Land Amount
$1,371
Lease Land Frequency
MO
Get Out There, A Simply Outgoing Approach to Life. James Outland Jr. is one of those rare people who simply has an outgoing approach to life. No matter the activity… from dune buggy riding to skydiving to motorcycling to riding the local Pismo Beach waves… James Outland Jr. approaches life with a “just get out there and do it” kind of attitude. A zest for Life. James’ zest for life is obviously apparent in his many exciting hobbies. In his spare time, he loves riding dune buggies or hi…
More About JamesMortgage Calculator
Map
Current real estate data for Single Family in Upland as of Apr 10, 2026
199
Single Family Listed
72
Avg DOM
327
Avg $ / SqFt
$610,959
Avg List Price
Community
- Address929 E Foothill #53 Upland CA
- CityUpland
- CountySan Bernardino
- Zip Code91786
Similar Listings Nearby
Property Summary
- 929 E Foothill #53 Upland CA is a Single Family for sale in Upland, CA, 91786. It is listed for $214,000 and features 4 beds, 2 baths, and has approximately 1,440 square feet of living space, and was originally constructed in 1978. The current price per square foot is $149. The average price per square foot for Single Family listings in Upland is $327. The average listing price for Single Family in Upland is $610,959. To schedule a showing of MLS#cv25281318 at 929 E Foothill #53 in Upland, CA, contact your James Outland agent at 8057482262.
Courtesy of REAL ESTATE RESOLVED. Disclaimer: All data relating to real estate for sale on this page comes from the Broker Reciprocity (BR) of the California Regional Multiple Listing Service. Detailed information about real estate listings held by brokerage firms other than James Outland include the name of the listing broker. Neither the listing company nor James Outland shall be responsible for any typographical errors, misinformation, misprints and shall be held totally harmless. The Broker providing this data believes it to be correct, but advises interested parties to confirm any item before relying on it in a purchase decision. Copyright 2026. California Regional Multiple Listing Service. All rights reserved. 929 E Foothill #53
Upland, CA

























































































