$685,000
18861 Lookout DR
Twain Harte, CA, 95383
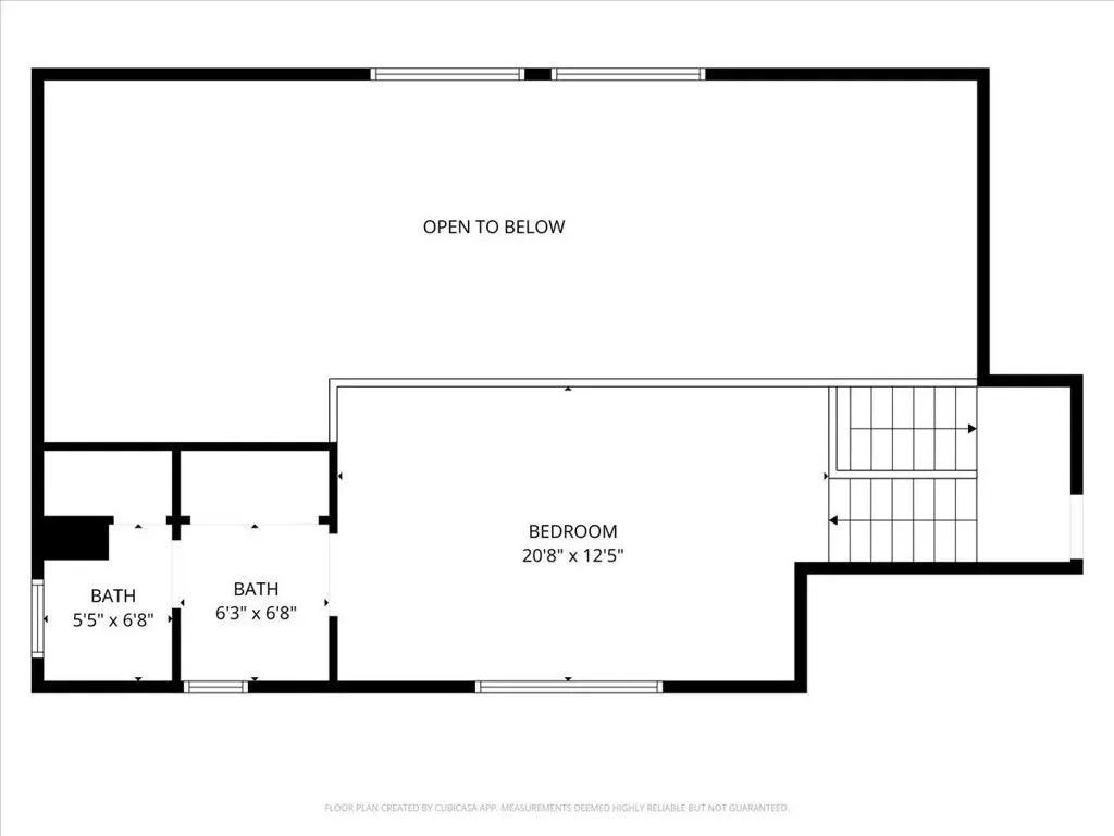
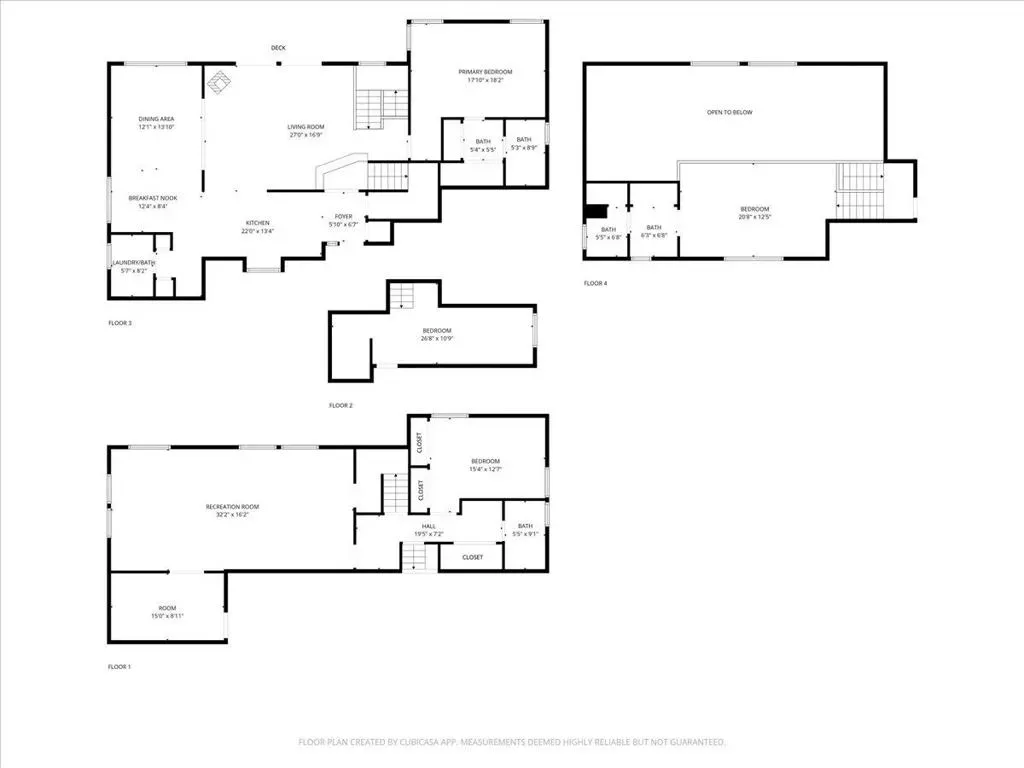
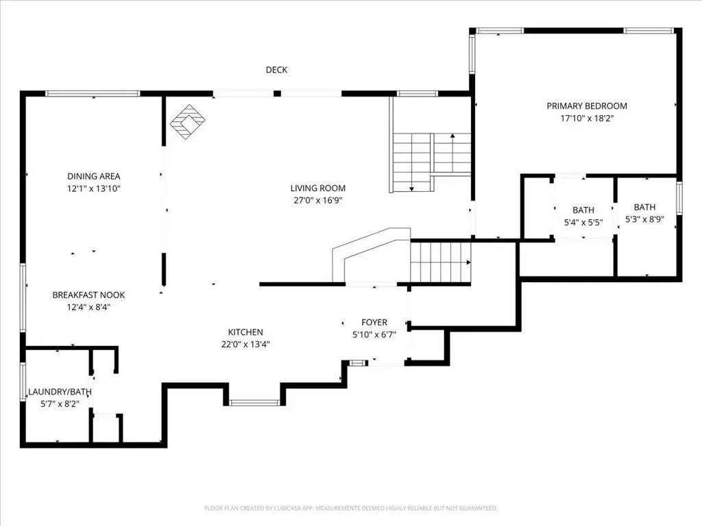
Twain Harte Lake Membership Home bring the whole crew! This multi-level large home comfortably sleeping up to 14, with bedrooms, sleeping areas and full bathrooms on each level. As a Twain Harte Lake member, enjoy exclusive lake access. Experience the community pool, public golf course, tennis courts, mini-golf & concerts in the park. Featuring high vaulted ceilings, a spacious loft on the first floor, main living area has primary room, kitchen, living area fireplace, large dinning area & a beautiful outdoor deck. Lower level boasts 3 bedrooms with one being a large bunk room for all of the kids. Lower level also has a full bathroom, large game/rec room w/ ping pong, sofas and dinning creating the potential for a separate living area. There is plenty of storage throughout the home. There are two mini-split systems for efficient heating and A/C. Set at the end of a quiet cul-de-sac across from the TUD ditch w/over 30 miles of walking trails meandering along a peaceful water way, great for fishing & hiking. Come enjoy the outdoors and tranquility of our Sierra Mountains.~2hrs from Bay Area locations, short drive to Yosemite National Park, Pinecrest Lake, Dodge Ridge & steps to downtown Twain Harte, close to lakes, boating & skiing. Its the perfect summer or winter getaway!
Property Details
Price:
$685,000
MLS #:
ML82023794
Status:
Active
Beds:
3
Baths:
3
Type:
Single Family
Subtype:
Single Family Residence
Neighborhood:
699notdefined
Listed Date:
Oct 3, 2025
Finished Sq Ft:
2,681
Lot Size:
6,495 sqft / 0.15 acres (approx)
Year Built:
1984
Schools
School District:
Other
Interior
Bathrooms
3 Full Bathrooms
Heating
FA, FIR
Exterior
Attached Garage YN
1
Common Walls
NCW
Garage Spaces
2
Parking Spots
2
Parking Total
2
Roof
CMP
Financial
Get Out There, A Simply Outgoing Approach to Life. James Outland Jr. is one of those rare people who simply has an outgoing approach to life. No matter the activity… from dune buggy riding to skydiving to motorcycling to riding the local Pismo Beach waves… James Outland Jr. approaches life with a “just get out there and do it” kind of attitude. A zest for Life. James’ zest for life is obviously apparent in his many exciting hobbies. In his spare time, he loves riding dune buggies or hi…
More About JamesMortgage Calculator
Map
Current real estate data for Single Family in Twain Harte as of Apr 11, 2026
4
Single Family Listed
62
Avg DOM
252
Avg $ / SqFt
$496,725
Avg List Price
Community
- Address18861 Lookout DR Twain Harte CA
- CityTwain Harte
- CountyTuolumne
- Zip Code95383
Similar Listings Nearby
Property Summary
- 18861 Lookout DR Twain Harte CA is a Single Family for sale in Twain Harte, CA, 95383. It is listed for $685,000 and features 3 beds, 3 baths, and has approximately 2,681 square feet of living space, and was originally constructed in 1984. The current price per square foot is $256. The average price per square foot for Single Family listings in Twain Harte is $252. The average listing price for Single Family in Twain Harte is $496,725. To schedule a showing of MLS#ml82023794 at 18861 Lookout DR in Twain Harte, CA, contact your James Outland agent at 8057482262.
Courtesy of Bailey Properties. Disclaimer: All data relating to real estate for sale on this page comes from the Broker Reciprocity (BR) of the California Regional Multiple Listing Service. Detailed information about real estate listings held by brokerage firms other than James Outland include the name of the listing broker. Neither the listing company nor James Outland shall be responsible for any typographical errors, misinformation, misprints and shall be held totally harmless. The Broker providing this data believes it to be correct, but advises interested parties to confirm any item before relying on it in a purchase decision. Copyright 2026. California Regional Multiple Listing Service. All rights reserved. 18861 Lookout DR
Twain Harte, CA
















































