$1,500,000
2566 Tuna Canyon RD
Topanga, CA, 90290
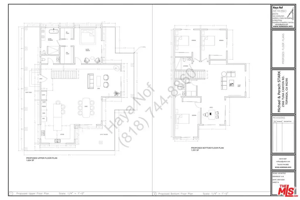
PANORAMIC OCEAN VIEW Palisades Fire Burn-out Lot in Topanga Canyon. Site Plan APPROVED in January 2026 (2875 sq ft 2-Story Residence, 4 Bedrooms and 3.5 Baths, 682 sq ft of Balcony Space with a 460 sq ft Detached Garage) by the Department of Regional Planning. Re-Build and Reconnect with Nature on over an Acre (1.2/53,231sq ft) of Rolling Hillsides with Flat Pads. Gated Private Driveway into your Motor Court of this fully Fenced, Secure & Private Estate Lot. Septic System still intact with lids in place. Seller will assist in the Re-Building Process. Assessor Parcel Number 4448-008-035. Malibu School District. Re-Build the Estate of Your Dreams.
Property Details
Price:
$1,500,000
MLS #:
26646767
Status:
Active
Beds:
0
Baths:
0
Type:
Land
Neighborhood:
toptopanga
Listed Date:
Feb 3, 2026
Lot Size:
53,231 sqft / 1.22 acres (approx)
Schools
School District:
Santa Monica-Malibu Unified
Interior
Exterior
Financial
Get Out There, A Simply Outgoing Approach to Life. James Outland Jr. is one of those rare people who simply has an outgoing approach to life. No matter the activity… from dune buggy riding to skydiving to motorcycling to riding the local Pismo Beach waves… James Outland Jr. approaches life with a “just get out there and do it” kind of attitude. A zest for Life. James’ zest for life is obviously apparent in his many exciting hobbies. In his spare time, he loves riding dune buggies or hi…
More About JamesMortgage Calculator
Map
Community
- Address2566 Tuna Canyon RD Topanga CA
- CityTopanga
- CountyLos Angeles
- Zip Code90290
Similar Listings Nearby
Property Summary
- 2566 Tuna Canyon RD Topanga CA is a Land for sale in Topanga, CA, 90290. It is listed for $1,500,000 and features 1 acres. To schedule a showing of MLS#26646767 at 2566 Tuna Canyon RD in Topanga, CA, contact your James Outland agent at 8057482262.
Courtesy of Sotheby’s International Realty. Disclaimer: All data relating to real estate for sale on this page comes from the Broker Reciprocity (BR) of the California Regional Multiple Listing Service. Detailed information about real estate listings held by brokerage firms other than James Outland include the name of the listing broker. Neither the listing company nor James Outland shall be responsible for any typographical errors, misinformation, misprints and shall be held totally harmless. The Broker providing this data believes it to be correct, but advises interested parties to confirm any item before relying on it in a purchase decision. Copyright 2026. California Regional Multiple Listing Service. All rights reserved. 2566 Tuna Canyon RD
Topanga, CA
































