$1,250,000
8141 Briarwood
Stanton, CA, 90680
Briarwood location • Near Beach Blvd, 405, 91 and 22 Freeways• Garden Grove • Brick courtyard • Two primary bedrooms • Multiple fireplaces • Custom oak cabinetry with leaded glass • Stained glass accents
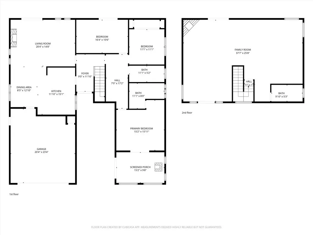
This Stanton home at 8141 Briarwood brings together space, character, and remarkable craftsmanship across more than 2,500 square feet. Custom oak cabinetry with leaded glass fronts anchors the living spaces and continues through the kitchen, hallways, and upstairs suite, creating a level of built-in storage rarely seen. Stained glass windows brighten the living room and the kitchen’s eating area, adding color and warmth. The layout includes two primary bedrooms, one on the main level and one upstairs, offering flexibility for multi-level living. The expansive upstairs suite features its own fireplace, while the living room fireplace includes a built-in woodbox and sits within a classic brick surround.
The kitchen offers pull-out cabinet drawers and a trash compactor, and the main-level primary bath includes dual shower-heads and generous vanity storage. Wood-plank ceilings and detailed trim work add texture and dimension. A hidden storage room under the stairs, extraordinary huge amount of garage storage, plus attic storage provide even more space to stay organized.
Outdoor areas extend the home’s livability with front and rear patios plus front and rear balconies. A brick courtyard creates a private outdoor entry space with distinctive character. The ADU, currently used as a jacuzzi room, offers potential as a flexible bonus area for storage, utility use, or additional room configuration.
Located near Beach Boulevard with quick access to the 405 and 22 & 91 freeways, the home also offers convenient proximity to shopping and coastal destinations including Newport & Hunington Beach. Served by Garden Grove Unified School District, with A rated schools this Briarwood residence blends custom details with a spacious, adaptable floor plan.
This Stanton home at 8141 Briarwood brings together space, character, and remarkable craftsmanship across more than 2,500 square feet. Custom oak cabinetry with leaded glass fronts anchors the living spaces and continues through the kitchen, hallways, and upstairs suite, creating a level of built-in storage rarely seen. Stained glass windows brighten the living room and the kitchen’s eating area, adding color and warmth. The layout includes two primary bedrooms, one on the main level and one upstairs, offering flexibility for multi-level living. The expansive upstairs suite features its own fireplace, while the living room fireplace includes a built-in woodbox and sits within a classic brick surround.
The kitchen offers pull-out cabinet drawers and a trash compactor, and the main-level primary bath includes dual shower-heads and generous vanity storage. Wood-plank ceilings and detailed trim work add texture and dimension. A hidden storage room under the stairs, extraordinary huge amount of garage storage, plus attic storage provide even more space to stay organized.
Outdoor areas extend the home’s livability with front and rear patios plus front and rear balconies. A brick courtyard creates a private outdoor entry space with distinctive character. The ADU, currently used as a jacuzzi room, offers potential as a flexible bonus area for storage, utility use, or additional room configuration.
Located near Beach Boulevard with quick access to the 405 and 22 & 91 freeways, the home also offers convenient proximity to shopping and coastal destinations including Newport & Hunington Beach. Served by Garden Grove Unified School District, with A rated schools this Briarwood residence blends custom details with a spacious, adaptable floor plan.
Property Details
Price:
$1,250,000
MLS #:
OC26069858
Status:
Pending
Beds:
4
Baths:
3
Type:
Single Family
Subtype:
Single Family Residence
Neighborhood:
11westside
Listed Date:
Apr 2, 2026
Finished Sq Ft:
2,570
Lot Size:
6,000 sqft / 0.14 acres (approx)
Year Built:
1966
Schools
School District:
Garden Grove Unified
Elementary School:
Lawrence
Middle School:
Alamitos
High School:
Rancho Alamitos
Interior
Appliances
DW, GD, MW, RF, TC, DO, HOD, WHU
Bathrooms
2 Full Bathrooms, 1 Three Quarter Bathroom
Cooling
CA
Flooring
WOOD
Heating
CF
Interior Features
CF, BLKW, OFP, BL, BC, CC, HCEL
Laundry Features
GAS, IG, DINC, WINC
Levels
U
Main Level Bathrooms
2
Main Level Bedrooms
3
Exterior
Architectural Style
TRD
Attached Garage YN
1
Common Walls
NCW
Community Features
SDW, SL, CRB, CW, BIKI
Construction Materials
FRM, PLS
Direction Faces
S
Exterior Features
RG
Fencing
BW
Garage Spaces
2
Other Structures
OB
Parking Spots
2
Parking Total
2
Patio And Porch Features
CON, PTO, PO, POF, POR
Roof
CMP
Spa Features
AG
View
NO
Window Features
BLI, SGW
Financial
Get Out There, A Simply Outgoing Approach to Life. James Outland Jr. is one of those rare people who simply has an outgoing approach to life. No matter the activity… from dune buggy riding to skydiving to motorcycling to riding the local Pismo Beach waves… James Outland Jr. approaches life with a “just get out there and do it” kind of attitude. A zest for Life. James’ zest for life is obviously apparent in his many exciting hobbies. In his spare time, he loves riding dune buggies or hi…
More About JamesMortgage Calculator
Map
Current real estate data for Single Family in Stanton as of Apr 09, 2026
29
Single Family Listed
70
Avg DOM
293
Avg $ / SqFt
$466,214
Avg List Price
Community
- Address8141 Briarwood Stanton CA
- CityStanton
- CountyOrange
- Zip Code90680
Similar Listings Nearby
Property Summary
- 8141 Briarwood Stanton CA is a Single Family for sale in Stanton, CA, 90680. It is listed for $1,250,000 and features 4 beds, 3 baths, and has approximately 2,570 square feet of living space, and was originally constructed in 1966. The current price per square foot is $486. The average price per square foot for Single Family listings in Stanton is $293. The average listing price for Single Family in Stanton is $466,214. To schedule a showing of MLS#oc26069858 at 8141 Briarwood in Stanton, CA, contact your James Outland agent at 8057482262.
Courtesy of Next Home First Choice Realty. Disclaimer: All data relating to real estate for sale on this page comes from the Broker Reciprocity (BR) of the California Regional Multiple Listing Service. Detailed information about real estate listings held by brokerage firms other than James Outland include the name of the listing broker. Neither the listing company nor James Outland shall be responsible for any typographical errors, misinformation, misprints and shall be held totally harmless. The Broker providing this data believes it to be correct, but advises interested parties to confirm any item before relying on it in a purchase decision. Copyright 2026. California Regional Multiple Listing Service. All rights reserved. 8141 Briarwood
Stanton, CA























































