$1,150,000
10872 Flower AV
Stanton, CA, 90680
A Rare Multigenerational & Income-Opportunity Home in the Heart of Stanton
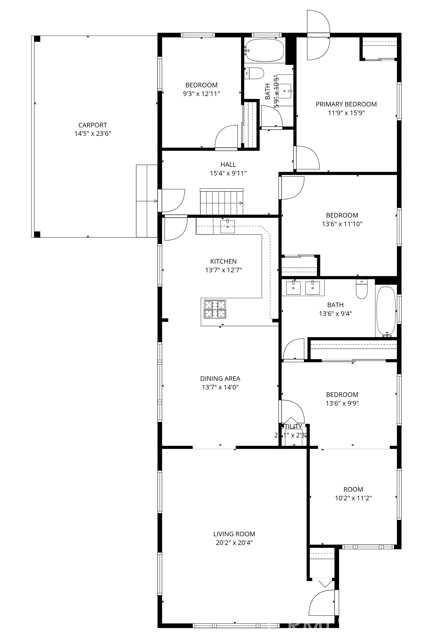
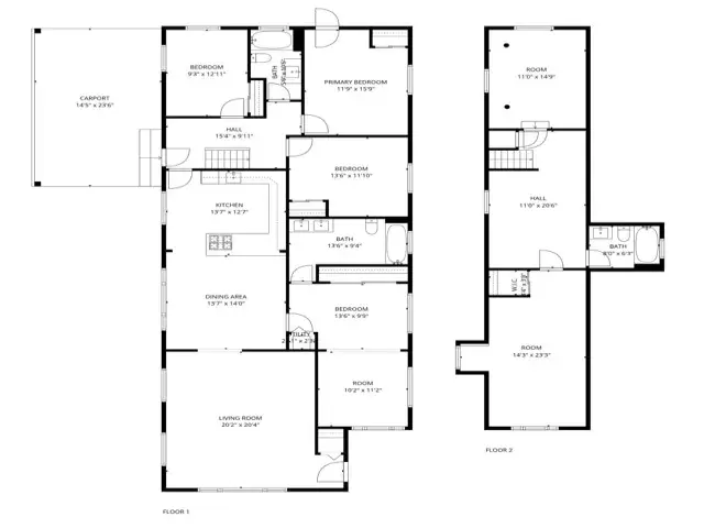
10872 Flower Ave is not just a home — it’s a strategic lifestyle and investment opportunity. Offering nearly 2,400 sq ft, 5 bedrooms, and 3 full baths, this two-story residence features a floor plan that is exceptionally adaptable for multigenerational living, extended family, guests, or future rental income.
The interior layout provides spacious living areas, a large open kitchen design, multiple bathrooms, and a configuration that supports comfortable daily living with excellent separation of space.
What truly sets this property apart is the expansive upstairs retreat, perfectly suited for a private primary suite, in-law quarters, executive office, gym, or media lounge — delivering a level of privacy rarely found in this price range.
Situated on a 6,600+ sq ft flat lot, the property offers outstanding ADU/JADU potential, generous parking, and flexibility to enhance outdoor living — unlocking long-term versatility and future value.
Located just minutes from Disneyland, Knott’s Berry Farm, major freeways, and a wide array of shopping, dining, and entertainment options, this home stands out as one of the most versatile opportunities in Stanton.
This is more than a place to live — it’s a smart long-term play for space, family, and future opportunity.
10872 Flower Ave is not just a home — it’s a strategic lifestyle and investment opportunity. Offering nearly 2,400 sq ft, 5 bedrooms, and 3 full baths, this two-story residence features a floor plan that is exceptionally adaptable for multigenerational living, extended family, guests, or future rental income.
The interior layout provides spacious living areas, a large open kitchen design, multiple bathrooms, and a configuration that supports comfortable daily living with excellent separation of space.
What truly sets this property apart is the expansive upstairs retreat, perfectly suited for a private primary suite, in-law quarters, executive office, gym, or media lounge — delivering a level of privacy rarely found in this price range.
Situated on a 6,600+ sq ft flat lot, the property offers outstanding ADU/JADU potential, generous parking, and flexibility to enhance outdoor living — unlocking long-term versatility and future value.
Located just minutes from Disneyland, Knott’s Berry Farm, major freeways, and a wide array of shopping, dining, and entertainment options, this home stands out as one of the most versatile opportunities in Stanton.
This is more than a place to live — it’s a smart long-term play for space, family, and future opportunity.
Property Details
Price:
$1,150,000
MLS #:
OC25257296
Status:
Active
Beds:
5
Baths:
3
Type:
Single Family
Subtype:
Single Family Residence
Neighborhood:
699notdefined
Listed Date:
Apr 2, 2026
Finished Sq Ft:
2,386
Lot Size:
6,615 sqft / 0.15 acres (approx)
Year Built:
1929
Schools
School District:
Anaheim Union High
Interior
Bathrooms
3 Full Bathrooms
Cooling
CA
Heating
FA
Laundry Features
IN
Levels
U
Main Level Bathrooms
2
Main Level Bedrooms
4
Exterior
Common Walls
NCW
Community Features
SDW, URB, PARK
View
NE
Financial
Get Out There, A Simply Outgoing Approach to Life. James Outland Jr. is one of those rare people who simply has an outgoing approach to life. No matter the activity… from dune buggy riding to skydiving to motorcycling to riding the local Pismo Beach waves… James Outland Jr. approaches life with a “just get out there and do it” kind of attitude. A zest for Life. James’ zest for life is obviously apparent in his many exciting hobbies. In his spare time, he loves riding dune buggies or hi…
More About JamesMortgage Calculator
Map
Current real estate data for Single Family in Stanton as of Apr 08, 2026
28
Single Family Listed
70
Avg DOM
302
Avg $ / SqFt
$477,685
Avg List Price
Community
- Address10872 Flower AV Stanton CA
- CityStanton
- CountyOrange
- Zip Code90680
Similar Listings Nearby
Property Summary
- 10872 Flower AV Stanton CA is a Single Family for sale in Stanton, CA, 90680. It is listed for $1,150,000 and features 5 beds, 3 baths, and has approximately 2,386 square feet of living space, and was originally constructed in 1929. The current price per square foot is $482. The average price per square foot for Single Family listings in Stanton is $302. The average listing price for Single Family in Stanton is $477,685. To schedule a showing of MLS#oc25257296 at 10872 Flower AV in Stanton, CA, contact your James Outland agent at 8057482262.
Courtesy of eXp Realty of Greater Los Angeles, Inc.. Disclaimer: All data relating to real estate for sale on this page comes from the Broker Reciprocity (BR) of the California Regional Multiple Listing Service. Detailed information about real estate listings held by brokerage firms other than James Outland include the name of the listing broker. Neither the listing company nor James Outland shall be responsible for any typographical errors, misinformation, misprints and shall be held totally harmless. The Broker providing this data believes it to be correct, but advises interested parties to confirm any item before relying on it in a purchase decision. Copyright 2026. California Regional Multiple Listing Service. All rights reserved. 10872 Flower AV
Stanton, CA











