$589,900
28751 Sycamore
Silverado, CA, 92676
28751 Sycamore Drive, Silverado, CA 92676 is a rustic canyon retreat in the heart of Silverado Canyon, just minutes from Irvine, Foothill Ranch and the 241 Toll Road. Surrounded by mature trees, a seasonal creek and terraced outdoor spaces, this home offers a rare blend of nature, privacy and access to Orange County job centers and amenities.
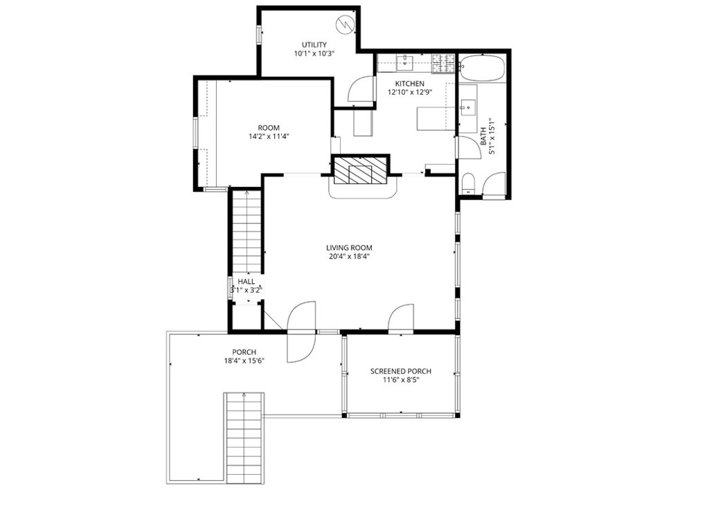
Per the assessor, 28751 Sycamore Drive is recorded as a 2 bedroom, 1 bathroom home. In addition to the two designated bedrooms, the property includes additional finished spaces that can function as a den, home office, studio or extra sleeping quarters, giving buyers flexible options for multi-use living, work-from-home needs or hosting guests.
A wood and iron entry gate leads to a welcoming courtyard and elevated front deck with canyon views, a producing orange tree and space for lounging, grilling and outdoor dining. Inside, the main level features a spacious living room with high ceilings, log-style walls, hardwood floors and a wood-burning fireplace that creates a true cabin ambiance. A separate dining area with built-in buffet and stone accent detail connects easily to the remodeled kitchen, which offers white cabinetry, granite counters, an industrial-style center island and an adjacent utility / pantry room with full-size laundry.
The main floor bedroom is wrapped in windows and includes a vintage built-in dresser, while the updated main-level bathroom has an exterior door for quick access to the side yard, pet area or garden. Upstairs, the additional finished areas provide multiple layout possibilities—ideal as a den, office, creative space or extra sleeping areas, depending on a buyer’s needs. These upper spaces give the home a “retreat level” feel without changing the assessor-recorded count of 2 bedrooms and 1 bath.
Outside, the rear yard climbs above the seasonal creek with several terraced levels under the trees—perfect for entertaining, gardening, play areas or quiet relaxation while listening to the water and wildlife. The Silverado Canyon community offers a small-town atmosphere with local events, hiking and outdoor recreation, all while keeping you approximately 15 minutes from shopping, dining and freeway access. Property may qualify for USDA program (buyer to verify).
Buyer to verify square footage, bedroom and bathroom count, permits, lot size, use, and all other information to buyer’s satisfaction with the appropriate professionals and authorities.
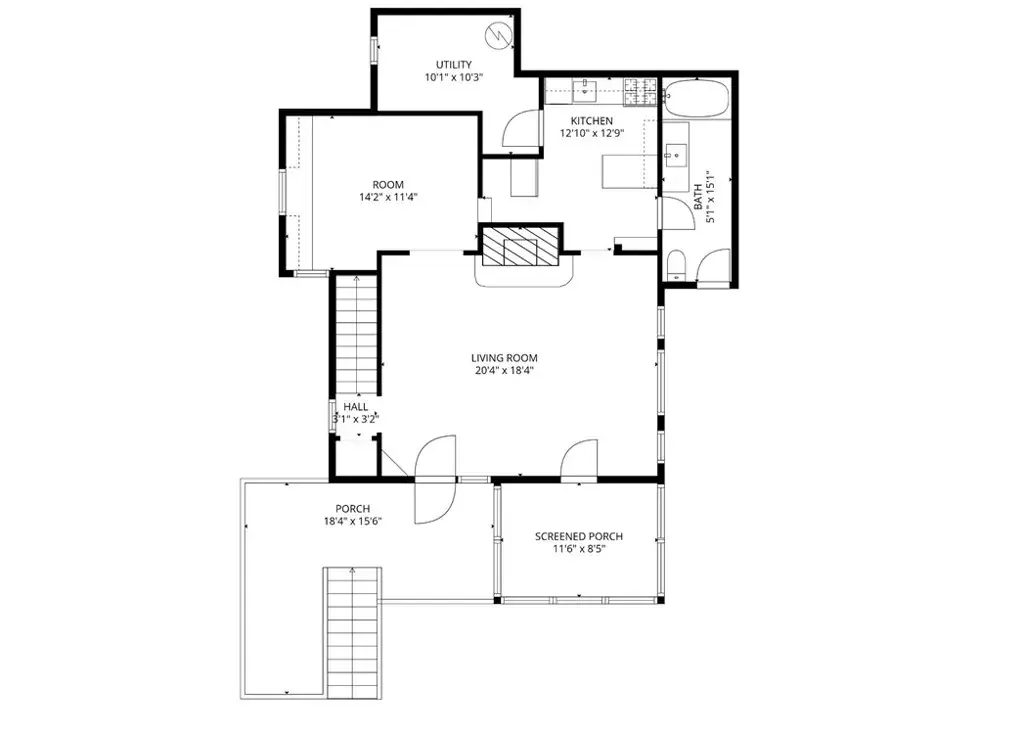
Per the assessor, 28751 Sycamore Drive is recorded as a 2 bedroom, 1 bathroom home. In addition to the two designated bedrooms, the property includes additional finished spaces that can function as a den, home office, studio or extra sleeping quarters, giving buyers flexible options for multi-use living, work-from-home needs or hosting guests.
A wood and iron entry gate leads to a welcoming courtyard and elevated front deck with canyon views, a producing orange tree and space for lounging, grilling and outdoor dining. Inside, the main level features a spacious living room with high ceilings, log-style walls, hardwood floors and a wood-burning fireplace that creates a true cabin ambiance. A separate dining area with built-in buffet and stone accent detail connects easily to the remodeled kitchen, which offers white cabinetry, granite counters, an industrial-style center island and an adjacent utility / pantry room with full-size laundry.
The main floor bedroom is wrapped in windows and includes a vintage built-in dresser, while the updated main-level bathroom has an exterior door for quick access to the side yard, pet area or garden. Upstairs, the additional finished areas provide multiple layout possibilities—ideal as a den, office, creative space or extra sleeping areas, depending on a buyer’s needs. These upper spaces give the home a “retreat level” feel without changing the assessor-recorded count of 2 bedrooms and 1 bath.
Outside, the rear yard climbs above the seasonal creek with several terraced levels under the trees—perfect for entertaining, gardening, play areas or quiet relaxation while listening to the water and wildlife. The Silverado Canyon community offers a small-town atmosphere with local events, hiking and outdoor recreation, all while keeping you approximately 15 minutes from shopping, dining and freeway access. Property may qualify for USDA program (buyer to verify).
Buyer to verify square footage, bedroom and bathroom count, permits, lot size, use, and all other information to buyer’s satisfaction with the appropriate professionals and authorities.
Property Details
Price:
$589,900
MLS #:
PW25266248
Status:
Active
Beds:
2
Baths:
1
Type:
Single Family
Subtype:
Single Family Residence
Neighborhood:
699notdefined
Listed Date:
Nov 25, 2025
Finished Sq Ft:
1,230
Lot Size:
4,752 sqft / 0.11 acres (approx)
Year Built:
1930
Schools
School District:
Saddleback Valley Unified
Interior
Appliances
RF, GR, GWH
Bathrooms
1 Full Bathroom
Cooling
WW
Flooring
WOOD, CARP
Heating
WL
Interior Features
_2STR
Laundry Features
IN
Levels
C
Main Level Bathrooms
1
Main Level Bedrooms
1
Exterior
Accessibility Features
NO
Architectural Style
BNG, COT, CRF, SEE
Attached Garage YN
1
Common Walls
NCW
Community Features
RUR, HIKI, BIKI
Construction Materials
STN, WOD, LOG
Fencing
CH
Garage Spaces
1
Parking Spots
1
Parking Total
1
Patio And Porch Features
DK
Roof
SHN
Security Features
SD, COD
Spa Features
NO
View
MT
Financial
Get Out There, A Simply Outgoing Approach to Life. James Outland Jr. is one of those rare people who simply has an outgoing approach to life. No matter the activity… from dune buggy riding to skydiving to motorcycling to riding the local Pismo Beach waves… James Outland Jr. approaches life with a “just get out there and do it” kind of attitude. A zest for Life. James’ zest for life is obviously apparent in his many exciting hobbies. In his spare time, he loves riding dune buggies or hi…
More About JamesMortgage Calculator
Map
Current real estate data for Single Family in Silverado as of Apr 07, 2026
7
Single Family Listed
65
Avg DOM
738
Avg $ / SqFt
$3,507,271
Avg List Price
Community
- Address28751 Sycamore Silverado CA
- CitySilverado
- CountyOrange
- Zip Code92676
Similar Listings Nearby
Property Summary
- 28751 Sycamore Silverado CA is a Single Family for sale in Silverado, CA, 92676. It is listed for $589,900 and features 2 beds, 1 baths, and has approximately 1,230 square feet of living space, and was originally constructed in 1930. The current price per square foot is $480. The average price per square foot for Single Family listings in Silverado is $738. The average listing price for Single Family in Silverado is $3,507,271. To schedule a showing of MLS#pw25266248 at 28751 Sycamore in Silverado, CA, contact your James Outland agent at 8057482262.
Courtesy of Bonaventure Realtors. Disclaimer: All data relating to real estate for sale on this page comes from the Broker Reciprocity (BR) of the California Regional Multiple Listing Service. Detailed information about real estate listings held by brokerage firms other than James Outland include the name of the listing broker. Neither the listing company nor James Outland shall be responsible for any typographical errors, misinformation, misprints and shall be held totally harmless. The Broker providing this data believes it to be correct, but advises interested parties to confirm any item before relying on it in a purchase decision. Copyright 2026. California Regional Multiple Listing Service. All rights reserved. 28751 Sycamore
Silverado, CA

























































































































