$1,648,000
51 Rancho RD
Sierra Madre, CA, 91024
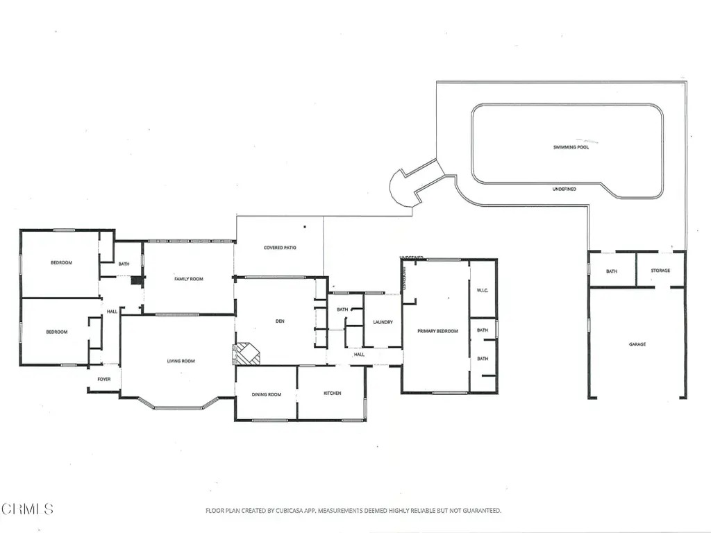
Offered for the first time since 1967, this classic Ranch-style home has been thoughtfully maintained over the years and presents a wonderful opportunity to update and reimagine the home of your dreams. A formal entry welcomes you into an oversized living room featuring a wall of windows and a cozy fireplace, creating a light-filled and inviting space. The formal dining room includes two built-in corner cabinets, ideal for showcasing family heirlooms and treasured decor.A warm, wood-paneled den offers a built-in bar and brick fireplace, perfect for relaxing or entertaining. The kitchen features a charming corner sink with picturesque mountain views. A spacious sunroom overlooks the backyard and offers endless possibilities, including a home office, workout room, or kids’ playroom.The thoughtfully designed floorplan places the primary bedroom on the north side of the home for added privacy, and two additional bedrooms located on the south side of the home. The generous primary suite includes a sitting area, two closets, new carpet and an en-suite bathroom.Situated on an expansive nearly 14,000-square-foot corner lot, the property is enhanced by mature trees, a sparkling pool, and serene mountain views. The fully fenced backyard offers an ideal setting for children and pets. A detached, oversized two-car garage features a convenient poolside bathroom, along with an additional room perfect for a changing area or storage for pool and patio essentials.Recent updates include new exterior paint (2024), a new roof (2022), professional tree trimming (2024) and partial waste plumbing replacement (2025).Ideally located just half a block from the Sierra Madre Recreation Center, this home offers easy access to the dog park, baseball fields, and public pool. It’s also perfectly positioned just blocks from beloved local cafes, boutique shops, wine bars, coffee houses, the Sierra Madre Library, the Playhouse, neighborhood parks, and Sierra Madre Nursery School, the highly regarded Sierra Madre Elementary and Sierra Mesa Middle School.Outdoor enthusiasts will appreciate the easy access to nearby hiking trails, including Mount Wilson Trail, Bailey Canyon, Eaton Canyon, and Chantry Flats. Opportunities like this are rare, don’t miss your chance to call this exceptional location home.
Property Details
Price:
$1,648,000
MLS #:
P1-25696
Status:
Active
Beds:
3
Baths:
4
Type:
Single Family
Subtype:
Single Family Residence
Neighborhood:
656sierramadre
Listed Date:
Feb 3, 2026
Finished Sq Ft:
2,221
Lot Size:
13,972 sqft / 0.32 acres (approx)
Year Built:
1948
Schools
Interior
Appliances
DW, RF, GR
Bathrooms
3 Full Bathrooms, 1 Half Bathroom
Cooling
CA
Heating
FA
Laundry Features
IR
Exterior
Architectural Style
RAN
Community Features
PARK, HIKI, BIKI, DGP
Parking Spots
4
Financial
Get Out There, A Simply Outgoing Approach to Life. James Outland Jr. is one of those rare people who simply has an outgoing approach to life. No matter the activity… from dune buggy riding to skydiving to motorcycling to riding the local Pismo Beach waves… James Outland Jr. approaches life with a “just get out there and do it” kind of attitude. A zest for Life. James’ zest for life is obviously apparent in his many exciting hobbies. In his spare time, he loves riding dune buggies or hi…
More About JamesMortgage Calculator
Map
Current real estate data for Single Family in Sierra Madre as of Feb 13, 2026
39
Single Family Listed
38
Avg DOM
523
Avg $ / SqFt
$1,550,366
Avg List Price
Community
- Address51 Rancho RD Sierra Madre CA
- CitySierra Madre
- CountyLos Angeles
- Zip Code91024
Similar Listings Nearby
Property Summary
- 51 Rancho RD Sierra Madre CA is a Single Family for sale in Sierra Madre, CA, 91024. It is listed for $1,648,000 and features 3 beds, 4 baths, and has approximately 2,221 square feet of living space, and was originally constructed in 1948. The current price per square foot is $742. The average price per square foot for Single Family listings in Sierra Madre is $523. The average listing price for Single Family in Sierra Madre is $1,550,366. To schedule a showing of MLS#p1-25696 at 51 Rancho RD in Sierra Madre, CA, contact your James Outland agent at 8057482262.
Courtesy of Berkshire Hathaway HomeServices California Properties. Disclaimer: All data relating to real estate for sale on this page comes from the Broker Reciprocity (BR) of the California Regional Multiple Listing Service. Detailed information about real estate listings held by brokerage firms other than James Outland include the name of the listing broker. Neither the listing company nor James Outland shall be responsible for any typographical errors, misinformation, misprints and shall be held totally harmless. The Broker providing this data believes it to be correct, but advises interested parties to confirm any item before relying on it in a purchase decision. Copyright 2026. California Regional Multiple Listing Service. All rights reserved. 51 Rancho RD
Sierra Madre, CA







































































