$1,249,000
215 Cayuga ST
Santa Cruz, CA, 95062
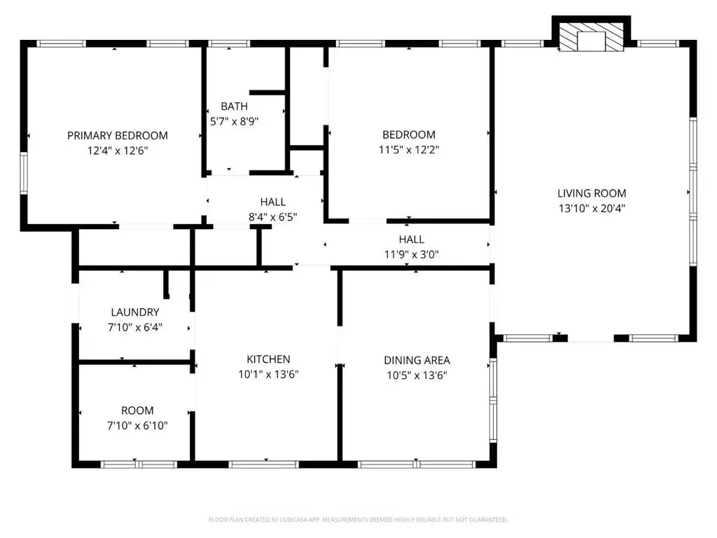
Welcome to coastal living in one of Santa Cruzs most sought after neighborhoods. This charming Spanish style stucco bungalow is ideally situated in the heart of Seabright, where the beach, harbor, Boardwalk, and beloved local spots are all just a stroll or bike ride away. The single level home offers a spacious and inviting layout with two bedrooms and one bath, filled with natural light and timeless character. A detached garage with a studio apartment adds exceptional versatility that is perfect for guests, a home office, or a creative retreat. Additional outbuildings provide ample storage, while convenient alley access enhances functionality for the garage and overall property. Fully enclosed by a classic stucco perimeter fence, the outdoor spaces feel both private and stylish. Come experience this special property and imagine the possibilities for its next hundred years.
Property Details
Price:
$1,249,000
MLS #:
ML82032175
Status:
Active Under Contract
Beds:
2
Baths:
1
Type:
Single Family
Subtype:
Single Family Residence
Neighborhood:
699notdefined
Listed Date:
Jan 22, 2026
Finished Sq Ft:
1,262
Lot Size:
4,530 sqft / 0.10 acres (approx)
Year Built:
1924
Schools
School District:
Other
Interior
Appliances
RF, GO
Bathrooms
1 Full Bathroom
Cooling
NO
Flooring
TILE, WOOD, CARP
Heating
WL
Exterior
Architectural Style
BNG, SPN
Construction Materials
STC
Parking Spots
2
Roof
TLE
Financial
Get Out There, A Simply Outgoing Approach to Life. James Outland Jr. is one of those rare people who simply has an outgoing approach to life. No matter the activity… from dune buggy riding to skydiving to motorcycling to riding the local Pismo Beach waves… James Outland Jr. approaches life with a “just get out there and do it” kind of attitude. A zest for Life. James’ zest for life is obviously apparent in his many exciting hobbies. In his spare time, he loves riding dune buggies or hi…
More About JamesMortgage Calculator
Map
Current real estate data for Single Family in Santa Cruz as of Feb 14, 2026
126
Single Family Listed
78
Avg DOM
950
Avg $ / SqFt
$1,857,851
Avg List Price
Community
- Address215 Cayuga ST Santa Cruz CA
- CitySanta Cruz
- CountySanta Cruz
- Zip Code95062
Similar Listings Nearby
Property Summary
- 215 Cayuga ST Santa Cruz CA is a Single Family for sale in Santa Cruz, CA, 95062. It is listed for $1,249,000 and features 2 beds, 1 baths, and has approximately 1,262 square feet of living space, and was originally constructed in 1924. The current price per square foot is $990. The average price per square foot for Single Family listings in Santa Cruz is $950. The average listing price for Single Family in Santa Cruz is $1,857,851. To schedule a showing of MLS#ml82032175 at 215 Cayuga ST in Santa Cruz, CA, contact your James Outland agent at 8057482262.
Courtesy of KW Thrive Santa Cruz. Disclaimer: All data relating to real estate for sale on this page comes from the Broker Reciprocity (BR) of the California Regional Multiple Listing Service. Detailed information about real estate listings held by brokerage firms other than James Outland include the name of the listing broker. Neither the listing company nor James Outland shall be responsible for any typographical errors, misinformation, misprints and shall be held totally harmless. The Broker providing this data believes it to be correct, but advises interested parties to confirm any item before relying on it in a purchase decision. Copyright 2026. California Regional Multiple Listing Service. All rights reserved. 215 Cayuga ST
Santa Cruz, CA











































