$2,200,000
709 S B ST
San Mateo, CA, 94401
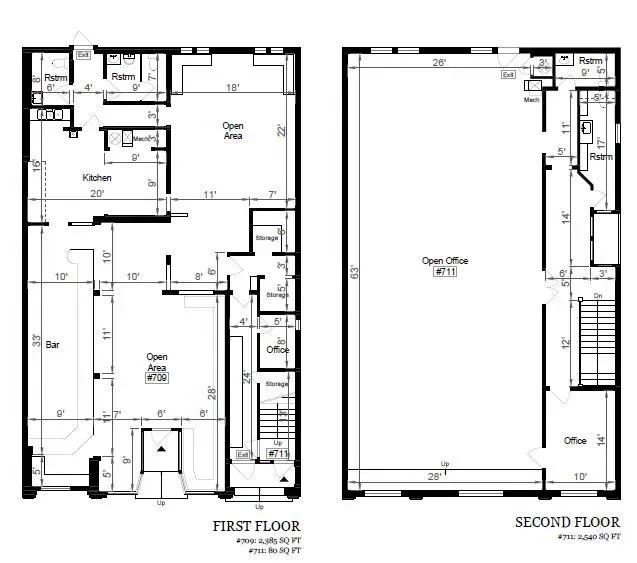
Unique mixed-use opportunity just steps from Downtown San Mateo. 709711 S B Street is a two-story standalone building totaling approximately 5,005 square feet on a 4,400 square foot lot, offering flexible options for owner-users, investors, or tenants seeking character space. The property is currently vacant and available for sale or lease, allowing a buyer or tenant to immediately reposition the space. The ground floor (approx. 2,385 SF) was formerly occupied by a bar/restaurant and includes an existing bar build-out and a fenced outdoor backyard/patio area, ideal for restaurant, bar, hospitality, or retail uses. The second floor (approx. 2,620 SF) features high ceilings, an open layout, and excellent natural light, making it well suited for creative office, studio, fitness, education, or collaborative workspace. Zoned C1-3/R5, the property offers potential for a variety of retail, office, and mixed-use uses in a highly desirable San Mateo location with strong street presence and easy access to Downtown amenities.
Property Details
Price:
$2,200,000
MLS #:
ML82038075
Status:
Active
Beds:
0
Baths:
0
Type:
Commercial
Neighborhood:
699notdefined
Listed Date:
Mar 11, 2026
Total Sq Ft:
5,005
Lot Size:
4,400 sqft / 0.10 acres (approx)
Year Built:
1920
Schools
Interior
Exterior
Roof
OTH
Financial
Get Out There, A Simply Outgoing Approach to Life. James Outland Jr. is one of those rare people who simply has an outgoing approach to life. No matter the activity… from dune buggy riding to skydiving to motorcycling to riding the local Pismo Beach waves… James Outland Jr. approaches life with a “just get out there and do it” kind of attitude. A zest for Life. James’ zest for life is obviously apparent in his many exciting hobbies. In his spare time, he loves riding dune buggies or hi…
More About JamesMortgage Calculator
Map
Current real estate data for Commercial in San Mateo as of Apr 07, 2026
13
Commercial Listed
105
Avg DOM
$3,284,308
Avg List Price
Community
- Address709 S B ST San Mateo CA
- CitySan Mateo
- CountySan Mateo
- Zip Code94401
Similar Listings Nearby
Property Summary
- 709 S B ST San Mateo CA is a Commercial for sale in San Mateo, CA, 94401. It is listed for $2,200,000 To schedule a showing of MLS#ml82038075 at 709 S B ST in San Mateo, CA, contact your James Outland agent at 8057482262.
Courtesy of SC Properties. Disclaimer: All data relating to real estate for sale on this page comes from the Broker Reciprocity (BR) of the California Regional Multiple Listing Service. Detailed information about real estate listings held by brokerage firms other than James Outland include the name of the listing broker. Neither the listing company nor James Outland shall be responsible for any typographical errors, misinformation, misprints and shall be held totally harmless. The Broker providing this data believes it to be correct, but advises interested parties to confirm any item before relying on it in a purchase decision. Copyright 2026. California Regional Multiple Listing Service. All rights reserved. 709 S B ST
San Mateo, CA




















