$1,249,000
Paradise Glen Way
San Marcos, CA, 92078
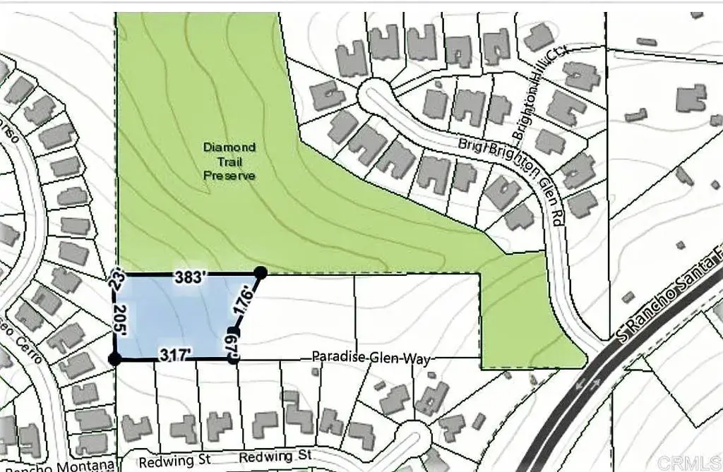
Three contiguous parcels totaling 5.63 acres in unincorporated San Diego County—ideal for a private compound or multi-home retreat. Verified sewer easement enters from the south, supporting direct tie-in across all parcels. Private road easement originates at Brighton Glen, San Marcos, traverses Diamond Trails Preserve, and terminates at Parcel 24’s southeast corner—providing legal and physical access to each parcel. Parcel 24 features a verified 43,000 sq ft buildable pad. Combined buildable area across all parcels exceeds 83,000 sq ft. No HOA. No entitlement delays. Technical overlays, plotted easements, and feasibility report available upon request. —
Property Details
Price:
$1,249,000
MLS #:
NDP2503423
Status:
Active
Beds:
0
Baths:
0
Type:
Land
Neighborhood:
92078sanmarcos
Listed Date:
Apr 9, 2025
Lot Size:
245,243 sqft / 5.63 acres (approx)
Schools
Interior
Exterior
Community Features
PSV, HIKI
View
HI
Financial
Get Out There, A Simply Outgoing Approach to Life. James Outland Jr. is one of those rare people who simply has an outgoing approach to life. No matter the activity… from dune buggy riding to skydiving to motorcycling to riding the local Pismo Beach waves… James Outland Jr. approaches life with a “just get out there and do it” kind of attitude. A zest for Life. James’ zest for life is obviously apparent in his many exciting hobbies. In his spare time, he loves riding dune buggies or hi…
More About JamesMortgage Calculator
Map
Current real estate data for Land in San Marcos as of Apr 09, 2026
22
Land Listed
165
Avg DOM
$1,119,795
Avg List Price
Community
- AddressParadise Glen Way San Marcos CA
- CitySan Marcos
- CountySan Diego
- Zip Code92078
Similar Listings Nearby
Property Summary
- Paradise Glen Way San Marcos CA is a Land for sale in San Marcos, CA, 92078. It is listed for $1,249,000 and features 6 acres. To schedule a showing of MLS#ndp2503423 at Paradise Glen Way in San Marcos, CA, contact your James Outland agent at 8057482262.
Courtesy of HomeSmart Realty West. Disclaimer: All data relating to real estate for sale on this page comes from the Broker Reciprocity (BR) of the California Regional Multiple Listing Service. Detailed information about real estate listings held by brokerage firms other than James Outland include the name of the listing broker. Neither the listing company nor James Outland shall be responsible for any typographical errors, misinformation, misprints and shall be held totally harmless. The Broker providing this data believes it to be correct, but advises interested parties to confirm any item before relying on it in a purchase decision. Copyright 2026. California Regional Multiple Listing Service. All rights reserved. Paradise Glen Way
San Marcos, CA




























