$1,175,000
1462 Laurel LN
San Luis Obispo, CA, 93401
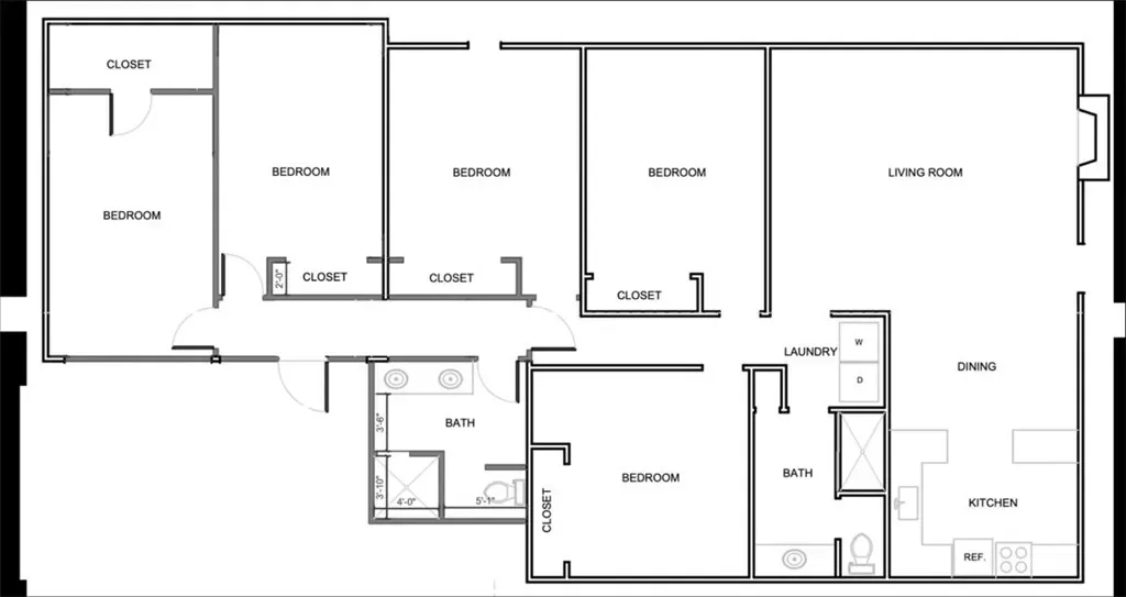
Welcome to 1462 Laurel Lane — a beautifully updated 5-bedroom, 2-bath home in one of San Luis Obispo’s most sought-after neighborhoods, just minutes from Cal Poly. This home has been thoughtfully upgraded from top to bottom. The fully remodeled kitchen features rich custom cabinetry, stainless appliances, and clean countertops. Fresh flooring flows throughout, and the updated bathrooms add a polished, move-in-ready feel. Stay comfortable year-round with a brand-new ductless split A/C and heating system, and enjoy peace of mind knowing the sewer lateral, plumbing, water softener, and reverse osmosis system have all been replaced. Even these big-ticket items are done — new driveway, new fencing, garage roof, and a serviced fireplace. The roof on the home was also serviced within the last few years which should add to its longevity. The layout is warm and functional, with generous living spaces, a bright dining area, and a private backyard retreat complete with a patio and detached garage. There is ample parking and space for you to park your vehicles, boat, RV, trailer, or other toys. Looking for additional rental income or flexibility in living spaces? You could potentially convert the garage into an ADU for even more versatility. Whether you’re looking for a primary residence, a Cal Poly rental, or both — this property checks every box.
Property Details
Price:
$1,175,000
MLS #:
SC26071214
Status:
Active
Beds:
5
Baths:
2
Type:
Single Family
Subtype:
Single Family Residence
Subdivision:
San Luis Obispo380
Neighborhood:
slosanluisobispo
Listed Date:
Apr 9, 2026
Finished Sq Ft:
1,841
Lot Size:
7,500 sqft / 0.17 acres (approx)
Year Built:
1959
Schools
School District:
San Luis Coastal Unified
Interior
Appliances
DW, RF, ER
Bathrooms
2 Full Bathrooms
Cooling
DUC
Flooring
TILE, VINY
Heating
DUC
Interior Features
CF, OFP
Laundry Features
ICL
Levels
A
Main Level Bathrooms
2
Main Level Bedrooms
5
Exterior
Common Walls
NCW
Community Features
SDW, STM, SL, CRB, CW
Fencing
WD, NEW
Garage Spaces
4
Parking Spots
4
Parking Total
4
Patio And Porch Features
PTO
Roof
TARGRV
Spa Features
NO
View
NO
Window Features
BLI
Financial
Get Out There, A Simply Outgoing Approach to Life. James Outland Jr. is one of those rare people who simply has an outgoing approach to life. No matter the activity… from dune buggy riding to skydiving to motorcycling to riding the local Pismo Beach waves… James Outland Jr. approaches life with a “just get out there and do it” kind of attitude. A zest for Life. James’ zest for life is obviously apparent in his many exciting hobbies. In his spare time, he loves riding dune buggies or hi…
More About JamesMortgage Calculator
Map
Current real estate data for Single Family in San Luis Obispo as of Apr 12, 2026
264
Single Family Listed
127
Avg DOM
618
Avg $ / SqFt
$900,362
Avg List Price
Community
- Address1462 Laurel LN San Luis Obispo CA
- SubdivisionSan Luis Obispo(380)
- CitySan Luis Obispo
- CountySan Luis Obispo
- Zip Code93401
Similar Listings Nearby
Property Summary
- Located in the San Luis Obispo(380) subdivision, 1462 Laurel LN San Luis Obispo CA is a Single Family for sale in San Luis Obispo, CA, 93401. It is listed for $1,175,000 and features 5 beds, 2 baths, and has approximately 1,841 square feet of living space, and was originally constructed in 1959. The current price per square foot is $638. The average price per square foot for Single Family listings in San Luis Obispo is $618. The average listing price for Single Family in San Luis Obispo is $900,362. To schedule a showing of MLS#sc26071214 at 1462 Laurel LN in San Luis Obispo, CA, contact your James Outland agent at 8057482262.
Courtesy of The Schwaegerle Team. Disclaimer: All data relating to real estate for sale on this page comes from the Broker Reciprocity (BR) of the California Regional Multiple Listing Service. Detailed information about real estate listings held by brokerage firms other than James Outland include the name of the listing broker. Neither the listing company nor James Outland shall be responsible for any typographical errors, misinformation, misprints and shall be held totally harmless. The Broker providing this data believes it to be correct, but advises interested parties to confirm any item before relying on it in a purchase decision. Copyright 2026. California Regional Multiple Listing Service. All rights reserved. 1462 Laurel LN
San Luis Obispo, CA


























































