$6,250
27442 Calle Arroyo
San Juan Capistrano, CA, 92675
Prime Ground Floor Suite, Ideal for Medical, Steps to Parking!
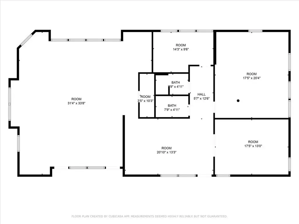
This Rare Opportunity to Lease a Spacious 2,086 Sq. Ft. Commercial Office in the Heart of San Juan Capistrano Offers Convenient Access to the I-5 Freeway and San Joaquin 73-Fwy Toll Road. Located Within the Ortega Planned Community, the Suite Features a Flexible Layout Perfect for Medical, Retail, or Office Use. It Can Be Divided Into Separate Suites With Individual Entrances, Providing Options for Business Growth or Rental Income. Zoned for Medical Use, It Is an Ideal Choice for Dental, GP, Pediatrics, Dermatology, Physical Therapy, Acupuncture, Counseling, and Wellness Practices, and Sits Next to Established Medical and Dental Practices, Which Supports Built-In Referral Potential Offering Modernized Facilities With Beautiful Spanish-Style Architecture, Vaulted Ceilings, Extensive Windows, and a Full Bathroom With a Shower for Added Convenience. The Location Offers Simple Patient Wayfinding With Easy Access to Ortega Highway and the I-5, and Signage Opportunities Are Available, Subject to Approvals. Ample Nearby Parking Makes for Easy In-and-Out Access for Patients and Staff. This Professional Setting Is Surrounded by High-End Dining Options Like Haven Craft Kitchen + Bar, Café Tu Tu Tango, and Bad to the Bone Barbecue, as Well as Several Retail Amenities, Providing Excellent Visibility and Accessibility. Whether You’re Looking to Establish a Medical Practice or a Professional Office, This Suite Offers a Prime Location in a Thriving Business District.
This Rare Opportunity to Lease a Spacious 2,086 Sq. Ft. Commercial Office in the Heart of San Juan Capistrano Offers Convenient Access to the I-5 Freeway and San Joaquin 73-Fwy Toll Road. Located Within the Ortega Planned Community, the Suite Features a Flexible Layout Perfect for Medical, Retail, or Office Use. It Can Be Divided Into Separate Suites With Individual Entrances, Providing Options for Business Growth or Rental Income. Zoned for Medical Use, It Is an Ideal Choice for Dental, GP, Pediatrics, Dermatology, Physical Therapy, Acupuncture, Counseling, and Wellness Practices, and Sits Next to Established Medical and Dental Practices, Which Supports Built-In Referral Potential Offering Modernized Facilities With Beautiful Spanish-Style Architecture, Vaulted Ceilings, Extensive Windows, and a Full Bathroom With a Shower for Added Convenience. The Location Offers Simple Patient Wayfinding With Easy Access to Ortega Highway and the I-5, and Signage Opportunities Are Available, Subject to Approvals. Ample Nearby Parking Makes for Easy In-and-Out Access for Patients and Staff. This Professional Setting Is Surrounded by High-End Dining Options Like Haven Craft Kitchen + Bar, Café Tu Tu Tango, and Bad to the Bone Barbecue, as Well as Several Retail Amenities, Providing Excellent Visibility and Accessibility. Whether You’re Looking to Establish a Medical Practice or a Professional Office, This Suite Offers a Prime Location in a Thriving Business District.
Property Details
Price:
$6,250
MLS #:
OC25198887
Status:
Active
Beds:
0
Baths:
0
Type:
Single Family
Subtype:
Business
Neighborhood:
jssanjuansouth
Listed Date:
Sep 7, 2025
Total Sq Ft:
2,086
Lot Size:
8,229 sqft / 0.19 acres (approx)
Year Built:
1981
Schools
Interior
Cooling
CA
Heating
CF
Exterior
Security Features
_24HR, PRKG, FSDS
Financial
Get Out There, A Simply Outgoing Approach to Life. James Outland Jr. is one of those rare people who simply has an outgoing approach to life. No matter the activity… from dune buggy riding to skydiving to motorcycling to riding the local Pismo Beach waves… James Outland Jr. approaches life with a “just get out there and do it” kind of attitude. A zest for Life. James’ zest for life is obviously apparent in his many exciting hobbies. In his spare time, he loves riding dune buggies or hi…
More About JamesMortgage Calculator
Map
Current real estate data for Single Family in San Juan Capistrano as of Feb 14, 2026
80
Single Family Listed
47
Avg DOM
514
Avg $ / SqFt
$1,667,932
Avg List Price
Community
- Address27442 Calle Arroyo San Juan Capistrano CA
- CitySan Juan Capistrano
- CountyOrange
- Zip Code92675
Similar Listings Nearby
Property Summary
- 27442 Calle Arroyo San Juan Capistrano CA is a Single Family for sale in San Juan Capistrano, CA, 92675. It is listed for $6,250 and features 0 beds, 0 baths, and has approximately 0 square feet of living space, and was originally constructed in 1981. The average price per square foot for Single Family listings in San Juan Capistrano is $514. The average listing price for Single Family in San Juan Capistrano is $1,667,932. To schedule a showing of MLS#oc25198887 at 27442 Calle Arroyo in San Juan Capistrano, CA, contact your James Outland agent at 8057482262.
Courtesy of eXp Realty of California Inc. Disclaimer: All data relating to real estate for sale on this page comes from the Broker Reciprocity (BR) of the California Regional Multiple Listing Service. Detailed information about real estate listings held by brokerage firms other than James Outland include the name of the listing broker. Neither the listing company nor James Outland shall be responsible for any typographical errors, misinformation, misprints and shall be held totally harmless. The Broker providing this data believes it to be correct, but advises interested parties to confirm any item before relying on it in a purchase decision. Copyright 2026. California Regional Multiple Listing Service. All rights reserved. 27442 Calle Arroyo
San Juan Capistrano, CA

































