$4,498,000
416 Ardis AV
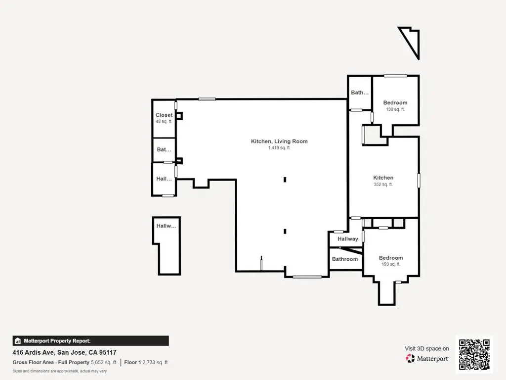
San Jose, CA, 95117
2026 New-construction masterpiece offers an unparalleled blend of luxury & strategic investment. This generational estate features a bright, open floor plan defined by floor-to-ceiling Marvin windows & curated lighting with alabaster & crystal accents throughout. The chefs kitchen is a showpiece, anchored by an impressive oversized quartzite island, custom Crystal cabinetry, a premium suite including a Miele induction cooktop plus Thermador double ovens, microwave drawer, & integrated refrigeration/wine columns. Designed for future-proof versatility, the main home layout allows for easy conversion into a 6th or 7th bedroom, office, or nursery. The primary suite is a sanctuary with resort-style baths & an expansive walk-in closet. The 971 sqft 2BR/2BA ADU provides exceptional flexibility for needs. 2bd 2ba can also be used as 1bd 1ba ADU while keeping the other bedroom as part of the main house. Per SJ/CA AB 1033 law, ADU may be ‘condo-ized’ & sold separately(future equity liquidation). Set on a 9,424 sqft lot near Santana Row, Valley Fair, & elite private schools (Harker, Stratford, Mitty, Bellarmine), this home is engineered for efficiency & wealth. Includes owned solar & a 10-year warranty. A rare opportunity for a high-yield, high-luxury Silicon Valley lifestyle.
Property Details
Price:
$4,498,000
MLS #:
ML82033975
Status:
Active
Beds:
6
Baths:
6
Type:
Single Family
Subtype:
Single Family Residence
Neighborhood:
699notdefined
Listed Date:
Feb 5, 2026
Finished Sq Ft:
5,211
Lot Size:
9,424 sqft / 0.22 acres (approx)
Year Built:
2026
Schools
School District:
Other
Interior
Appliances
MW, RF, ES, DO, WOD
Bathrooms
5 Full Bathrooms, 1 Half Bathroom
Cooling
CA
Flooring
WOOD
Heating
CF
Exterior
Architectural Style
CNT
Parking Spots
2
Roof
CMP
Financial
Get Out There, A Simply Outgoing Approach to Life. James Outland Jr. is one of those rare people who simply has an outgoing approach to life. No matter the activity… from dune buggy riding to skydiving to motorcycling to riding the local Pismo Beach waves… James Outland Jr. approaches life with a “just get out there and do it” kind of attitude. A zest for Life. James’ zest for life is obviously apparent in his many exciting hobbies. In his spare time, he loves riding dune buggies or hi…
More About JamesMortgage Calculator
Map
Current real estate data for Single Family in San Jose as of Feb 13, 2026
649
Single Family Listed
54
Avg DOM
880
Avg $ / SqFt
$1,447,436
Avg List Price
Community
- Address416 Ardis AV San Jose CA
- CitySan Jose
- CountySanta Clara
- Zip Code95117
Similar Listings Nearby
Property Summary
- 416 Ardis AV San Jose CA is a Single Family for sale in San Jose, CA, 95117. It is listed for $4,498,000 and features 6 beds, 6 baths, and has approximately 5,211 square feet of living space, and was originally constructed in 2026. The current price per square foot is $863. The average price per square foot for Single Family listings in San Jose is $880. The average listing price for Single Family in San Jose is $1,447,436. To schedule a showing of MLS#ml82033975 at 416 Ardis AV in San Jose, CA, contact your James Outland agent at 8057482262.
Courtesy of ContextRE Inc. Disclaimer: All data relating to real estate for sale on this page comes from the Broker Reciprocity (BR) of the California Regional Multiple Listing Service. Detailed information about real estate listings held by brokerage firms other than James Outland include the name of the listing broker. Neither the listing company nor James Outland shall be responsible for any typographical errors, misinformation, misprints and shall be held totally harmless. The Broker providing this data believes it to be correct, but advises interested parties to confirm any item before relying on it in a purchase decision. Copyright 2026. California Regional Multiple Listing Service. All rights reserved. 416 Ardis AV
San Jose, CA



















































