$1,900,000
1769 Gilda WY
San Jose, CA, 95124
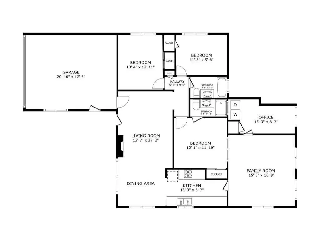
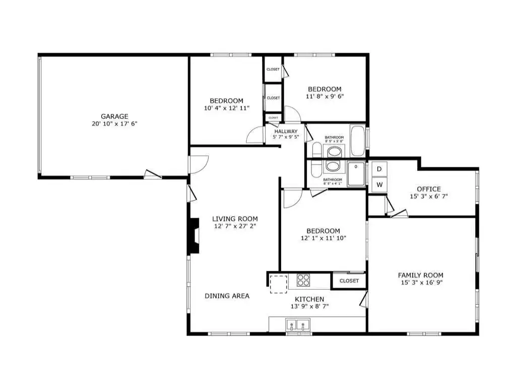
Welcome to 1769 Gilda Way in Cambrian, San Jose! This beautifully updated Cambrian home sits on a rare 8,820 sq ft corner lot, just steps from Noddin Elementary and Leigh High. Enjoy 3-bedrooms plus an office, 2-bath and 1,433 sq ft of renovated living space with excellent indoor-outdoor flow. Recent upgrades include fresh interior and exterior paint, New LVP flooring and baseboards, crown molding, dual-pane windows, skylights, recessed lighting, New roof and gutters (2019), 2019 installed NEM 2.0 Owned 19-panel Solar system (9.35 kW), New HVAC overhaul (2020), New attic insulation, and New fencing (2025). The light-filled living room features a wood-burning fireplace and opens to the dining area and kitchen. The kitchen offers granite countertops, custom tile backsplash, freshly painted cabinetry, stainless steel appliances, five-burner gas range, and reverse-osmosis drinking water system. Enjoy mature fruit trees, fresh landscaping, privacy fencing, and an auxiliary shed, this yard is ideal for entertaining or play. Prime location near Belgatos trails, shopping, dining, Highways 85/17, major tech employers, and minutes to Downtown Los Gatos. Award Winnings Schools! Noddin Elementary, Union Middle, and Leigh High!
Property Details
Price:
$1,900,000
MLS #:
ML82032379
Status:
Active
Beds:
3
Baths:
2
Type:
Single Family
Subtype:
Single Family Residence
Neighborhood:
699notdefined
Listed Date:
Jan 23, 2026
Finished Sq Ft:
1,433
Lot Size:
8,820 sqft / 0.20 acres (approx)
Year Built:
1959
Schools
School District:
Other
Elementary School:
Other
Middle School:
Union
High School:
Leigh
Interior
Bathrooms
2 Full Bathrooms
Cooling
CA, WHF
Flooring
TILE
Heating
FA
Exterior
Attached Garage YN
1
Common Walls
NCW
Garage Spaces
2
Parking Spots
2
Parking Total
2
Roof
CMP
Financial
Get Out There, A Simply Outgoing Approach to Life. James Outland Jr. is one of those rare people who simply has an outgoing approach to life. No matter the activity… from dune buggy riding to skydiving to motorcycling to riding the local Pismo Beach waves… James Outland Jr. approaches life with a “just get out there and do it” kind of attitude. A zest for Life. James’ zest for life is obviously apparent in his many exciting hobbies. In his spare time, he loves riding dune buggies or hi…
More About JamesMortgage Calculator
Map
Current real estate data for Single Family in San Jose as of Apr 08, 2026
916
Single Family Listed
46
Avg DOM
924
Avg $ / SqFt
$1,591,903
Avg List Price
Community
- Address1769 Gilda WY San Jose CA
- CitySan Jose
- CountySanta Clara
- Zip Code95124
Similar Listings Nearby
Property Summary
- 1769 Gilda WY San Jose CA is a Single Family for sale in San Jose, CA, 95124. It is listed for $1,900,000 and features 3 beds, 2 baths, and has approximately 1,433 square feet of living space, and was originally constructed in 1959. The current price per square foot is $1,326. The average price per square foot for Single Family listings in San Jose is $924. The average listing price for Single Family in San Jose is $1,591,903. To schedule a showing of MLS#ml82032379 at 1769 Gilda WY in San Jose, CA, contact your James Outland agent at 8057482262.
Courtesy of Intero Real Estate Services. Disclaimer: All data relating to real estate for sale on this page comes from the Broker Reciprocity (BR) of the California Regional Multiple Listing Service. Detailed information about real estate listings held by brokerage firms other than James Outland include the name of the listing broker. Neither the listing company nor James Outland shall be responsible for any typographical errors, misinformation, misprints and shall be held totally harmless. The Broker providing this data believes it to be correct, but advises interested parties to confirm any item before relying on it in a purchase decision. Copyright 2026. California Regional Multiple Listing Service. All rights reserved. 1769 Gilda WY
San Jose, CA

































