$2,599,000
1695 Grizilo DR
San Jose, CA, 95124
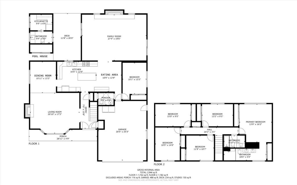
Step into this one-of-a-kind, fully remodeled home nestled in the sought-after Doerr Park neighborhood. Boasting 6 generously-sized bedrooms, 2.5 baths beautifully updated with contemporary fixtures, materials and finishes and an additional full bath in the permitted pool house, this home is designed for comfort, style and functionality. Set on an expansive 10,138 SF pie-shaped lot, this property offers plenty of room to stretch out and enjoy life both inside and out. Whether you’re hosting gatherings in the spacious living spaces, relaxing in the sun by the pool (which is separated from the rest of the backyard) or making memories in the beautifully landscaped yard, this home truly has it all! Move-in ready with a quartzite and stainless gourmet kitchen, separate living room and dining room for formal and informal dining and entertaining, oversized family room with cozy gas fireplace, downstairs bedroom for extended family, an au-pair or as an office, playroom or gym, wood and tile flooring, crown molding, dual-zone heating and A/C, recessed ligthing, 4-panel doors, dual pane windows, two private decks (one in the back yard and one in the pool area), barbeque island and amazing backyard retreat. Dont miss the chance to own one of the most exceptional homes in the neighborhood!
Property Details
Price:
$2,599,000
MLS #:
ML82038827
Status:
Active
Beds:
6
Baths:
4
Type:
Single Family
Subtype:
Single Family Residence
Neighborhood:
699notdefined
Listed Date:
Mar 18, 2026
Finished Sq Ft:
2,983
Lot Size:
10,138 sqft / 0.23 acres (approx)
Year Built:
1963
Schools
School District:
San Jose Unified
Interior
Appliances
DW, GD, IM, MW, RF, GS, EO, DO, HOD, SCO
Bathrooms
3 Full Bathrooms, 1 Half Bathroom
Cooling
CA, WHF
Flooring
TILE, WOOD, CARP
Laundry Features
IG
Exterior
Attached Garage YN
1
Common Walls
NCW
Fencing
WD
Garage Spaces
2
Parking Spots
2
Parking Total
2
Patio And Porch Features
DK
Roof
CMP
Spa Features
HT, IG
View
MT, NE
Window Features
BW
Financial
Get Out There, A Simply Outgoing Approach to Life. James Outland Jr. is one of those rare people who simply has an outgoing approach to life. No matter the activity… from dune buggy riding to skydiving to motorcycling to riding the local Pismo Beach waves… James Outland Jr. approaches life with a “just get out there and do it” kind of attitude. A zest for Life. James’ zest for life is obviously apparent in his many exciting hobbies. In his spare time, he loves riding dune buggies or hi…
More About JamesMortgage Calculator
Map
Current real estate data for Single Family in San Jose as of Apr 06, 2026
880
Single Family Listed
45
Avg DOM
927
Avg $ / SqFt
$1,599,222
Avg List Price
Community
- Address1695 Grizilo DR San Jose CA
- CitySan Jose
- CountySanta Clara
- Zip Code95124
Similar Listings Nearby
Property Summary
- 1695 Grizilo DR San Jose CA is a Single Family for sale in San Jose, CA, 95124. It is listed for $2,599,000 and features 6 beds, 4 baths, and has approximately 2,983 square feet of living space, and was originally constructed in 1963. The current price per square foot is $871. The average price per square foot for Single Family listings in San Jose is $927. The average listing price for Single Family in San Jose is $1,599,222. To schedule a showing of MLS#ml82038827 at 1695 Grizilo DR in San Jose, CA, contact your James Outland agent at 8057482262.
Courtesy of Compass. Disclaimer: All data relating to real estate for sale on this page comes from the Broker Reciprocity (BR) of the California Regional Multiple Listing Service. Detailed information about real estate listings held by brokerage firms other than James Outland include the name of the listing broker. Neither the listing company nor James Outland shall be responsible for any typographical errors, misinformation, misprints and shall be held totally harmless. The Broker providing this data believes it to be correct, but advises interested parties to confirm any item before relying on it in a purchase decision. Copyright 2026. California Regional Multiple Listing Service. All rights reserved. 1695 Grizilo DR
San Jose, CA























































































