$3,575,000
1512 Minnesota
San Jose, CA, 95125
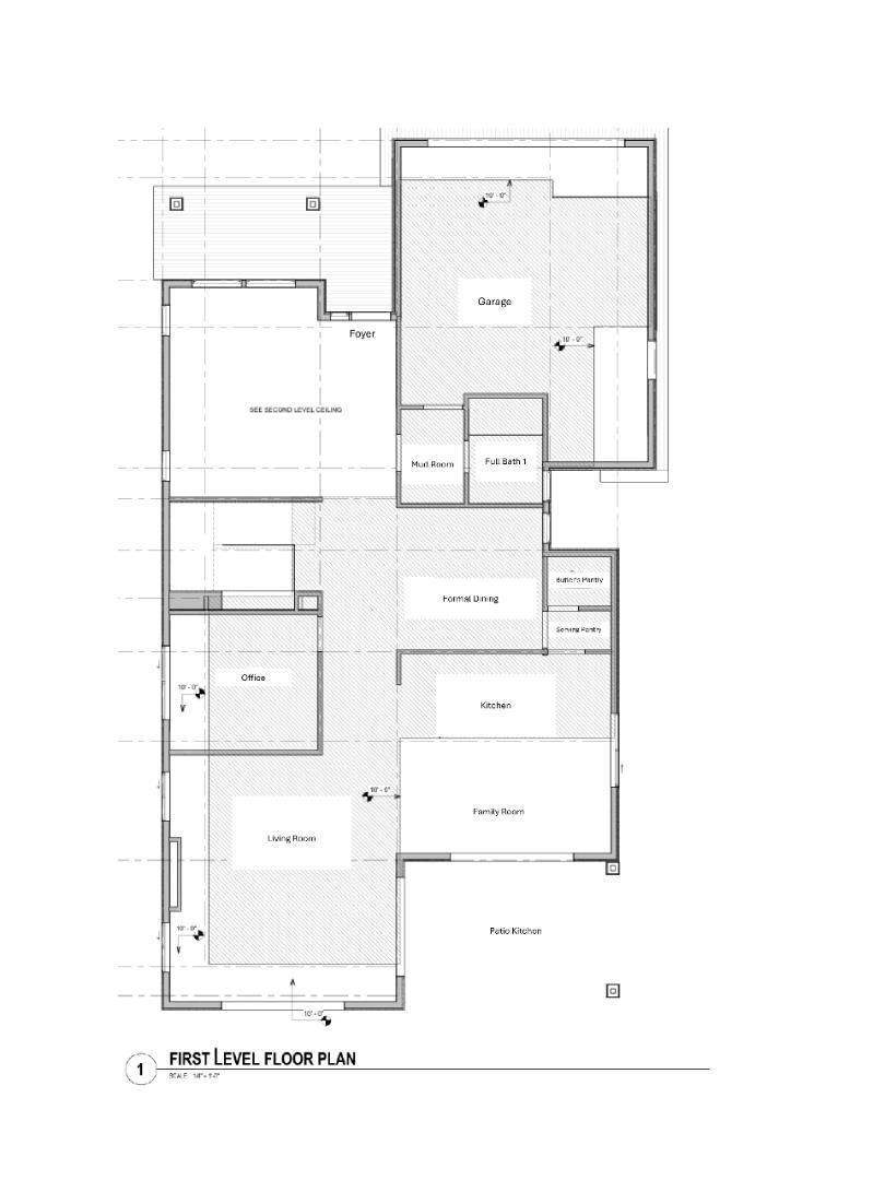
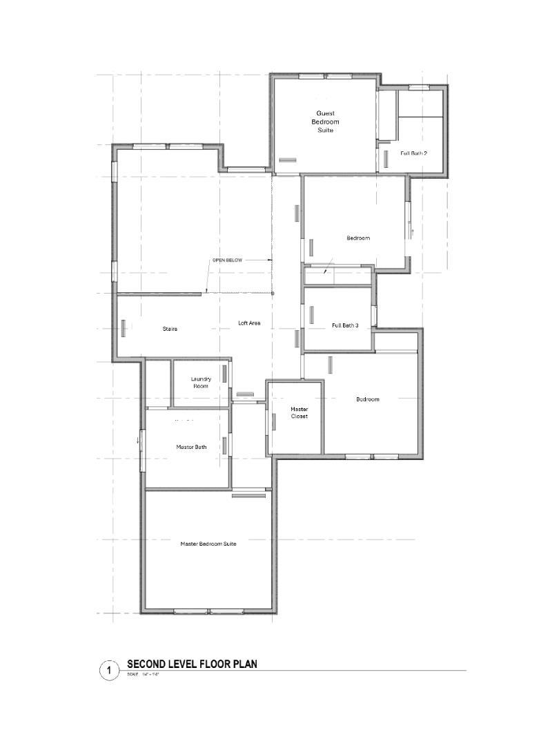
A Signature Luxury Residence by Grand Castle Properties An extraordinary opportunity to own a custom-designed luxury home in the prestigious Willow Glen downtown neighborhood. Secure your home during the presale phase and enjoy preferred pricing along with the opportunity to personalize select finishes. Approx. 3,140 sq ft featuring 5 bedrooms and 4 full bathrooms, including 2 en-suite bedrooms. Designed for elevated living, this residence offers 10-12 ft ceilings creating a bright, expansive atmosphere, a grand entry with oversized pivot front door, and a statement custom floating staircase. The designer chefs kitchen includes over-sized center island, premium appliances, panel-ready refrigerator, custom soft-close cabinetry, and a butlers pantry. A climate-controlled wine cellar enhances entertaining, while the luxurious primary suite features a spa-inspired bath with freestanding soaking tub. Indoor-outdoor living shines in the large private backyard with a covered patio featuring built-in outdoor BBQ kitchen and fire pit area. Additional highlights include owned solar and energy-efficient multi-zone HVAC. Just blocks from downtown Willow Glen with convenient access to Hwy 280, 87, and 85. Estimated completion Q2 2026. Features and renderings subject to final approvals.
Property Details
Price:
$3,575,000
MLS #:
ML82035551
Status:
Active
Beds:
5
Baths:
4
Type:
Single Family
Subtype:
Single Family Residence
Neighborhood:
699notdefined
Listed Date:
Feb 19, 2026
Finished Sq Ft:
3,140
Lot Size:
7,700 sqft / 0.18 acres (approx)
Year Built:
2026
Schools
School District:
Other
Interior
Appliances
DW, GD, MW, RF, ES, DO, HOD, VEF
Bathrooms
4 Full Bathrooms
Cooling
CA
Flooring
WOOD
Heating
HP, SO, CF, FIR
Exterior
Architectural Style
CNT, CRF, CB
Attached Garage YN
1
Common Walls
NCW
Construction Materials
STC
Direction Faces
N
Fencing
WD
Garage Spaces
2
Parking Spots
2
Parking Total
2
Roof
CMP, SHN
Financial
Get Out There, A Simply Outgoing Approach to Life. James Outland Jr. is one of those rare people who simply has an outgoing approach to life. No matter the activity… from dune buggy riding to skydiving to motorcycling to riding the local Pismo Beach waves… James Outland Jr. approaches life with a “just get out there and do it” kind of attitude. A zest for Life. James’ zest for life is obviously apparent in his many exciting hobbies. In his spare time, he loves riding dune buggies or hi…
More About JamesMortgage Calculator
Map
Current real estate data for Single Family in San Jose as of Apr 06, 2026
873
Single Family Listed
46
Avg DOM
929
Avg $ / SqFt
$1,601,426
Avg List Price
Community
- Address1512 Minnesota San Jose CA
- CitySan Jose
- CountySanta Clara
- Zip Code95125
Similar Listings Nearby
Property Summary
- 1512 Minnesota San Jose CA is a Single Family for sale in San Jose, CA, 95125. It is listed for $3,575,000 and features 5 beds, 4 baths, and has approximately 3,140 square feet of living space, and was originally constructed in 2026. The current price per square foot is $1,139. The average price per square foot for Single Family listings in San Jose is $929. The average listing price for Single Family in San Jose is $1,601,426. To schedule a showing of MLS#ml82035551 at 1512 Minnesota in San Jose, CA, contact your James Outland agent at 8057482262.
Courtesy of KW Bay Area Estates. Disclaimer: All data relating to real estate for sale on this page comes from the Broker Reciprocity (BR) of the California Regional Multiple Listing Service. Detailed information about real estate listings held by brokerage firms other than James Outland include the name of the listing broker. Neither the listing company nor James Outland shall be responsible for any typographical errors, misinformation, misprints and shall be held totally harmless. The Broker providing this data believes it to be correct, but advises interested parties to confirm any item before relying on it in a purchase decision. Copyright 2026. California Regional Multiple Listing Service. All rights reserved. 1512 Minnesota
San Jose, CA







