$532,000
1325 Joplin DR #2
San Jose, CA, 95118
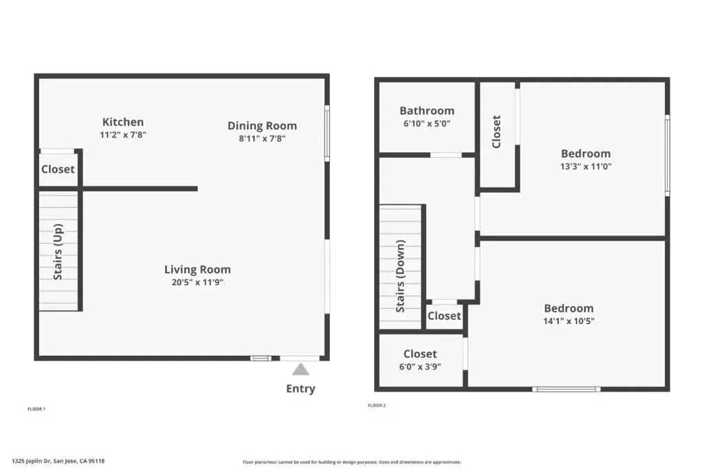
Exceptional value & upside potential in the desirable Cambrian neighborhood of San Jose! Explore this ground-floor, end-unit opportunity – an ideal entry into Silicon Valley real estate. This 2-bedroom, 1-bath condo features a functional two-story layout that lives like a townhouse, providing a clear sense of separation between living & sleeping quarters. The main level is designed for living and entertaining, featuring a bright living room where a sliding glass door opens to your own outdoor patio – a natural extension of the living space, perfect for a container garden, morning coffee, or al fresco dining. The kitchen offers a solid foundation for your vision, equipped with granite countertops, dishwasher, touchless faucet, & two pantry closets for ample storage. Upstairs, both bedrooms & the full bathroom are privately situated, creating a peaceful retreat. This prime location offers ultimate convenience, with top-rated schools & close proximity to Almaden Lake Park & Westfield Oakridge Mall. Residents are minutes from Costco, Whole Foods, Trader Joes, & Sprouts, with seamless access to Almaden Expwy & Hwys 85 & 87. Features include a pool for seasonal enjoyment & an attached carport with storage. With no rental caps, this is a premier choice for first-time buyers & investors!
Property Details
Price:
$532,000
MLS #:
ML82040693
Status:
Active
Beds:
2
Baths:
1
Type:
Condo
Subtype:
Condominium
Neighborhood:
699notdefined
Listed Date:
Mar 27, 2026
Finished Sq Ft:
903
Year Built:
1970
Schools
School District:
San Jose Unified
Interior
Appliances
DW, GD, RF, ES
Bathrooms
1 Full Bathroom
Cooling
WW
Flooring
LAM, WOOD
Exterior
Garage Spaces
1
Parking Spots
1
Parking Total
1
Roof
CMP
Spa Features
IG, COM
Financial
HOA Fee
$534
Get Out There, A Simply Outgoing Approach to Life. James Outland Jr. is one of those rare people who simply has an outgoing approach to life. No matter the activity… from dune buggy riding to skydiving to motorcycling to riding the local Pismo Beach waves… James Outland Jr. approaches life with a “just get out there and do it” kind of attitude. A zest for Life. James’ zest for life is obviously apparent in his many exciting hobbies. In his spare time, he loves riding dune buggies or hi…
More About JamesMortgage Calculator
Map
Community
- Address1325 Joplin DR #2 San Jose CA
- CitySan Jose
- CountySanta Clara
- Zip Code95118
Similar Listings Nearby
Property Summary
- 1325 Joplin DR #2 San Jose CA is a Condo for sale in San Jose, CA, 95118. It is listed for $532,000 and features 2 beds, 1 baths, and has approximately 903 square feet of living space, and was originally constructed in 1970. The current price per square foot is $589. The average price per square foot for Condo listings in San Jose is $643. The average listing price for Condo in San Jose is $732,300. To schedule a showing of MLS#ml82040693 at 1325 Joplin DR #2 in San Jose, CA, contact your James Outland agent at 8057482262.
Courtesy of Christie’s International Real Estate Sereno. Disclaimer: All data relating to real estate for sale on this page comes from the Broker Reciprocity (BR) of the California Regional Multiple Listing Service. Detailed information about real estate listings held by brokerage firms other than James Outland include the name of the listing broker. Neither the listing company nor James Outland shall be responsible for any typographical errors, misinformation, misprints and shall be held totally harmless. The Broker providing this data believes it to be correct, but advises interested parties to confirm any item before relying on it in a purchase decision. Copyright 2026. California Regional Multiple Listing Service. All rights reserved. 1325 Joplin DR #2
San Jose, CA

















