$2,488,800
417 W Norwood PL
San Gabriel, CA, 91776
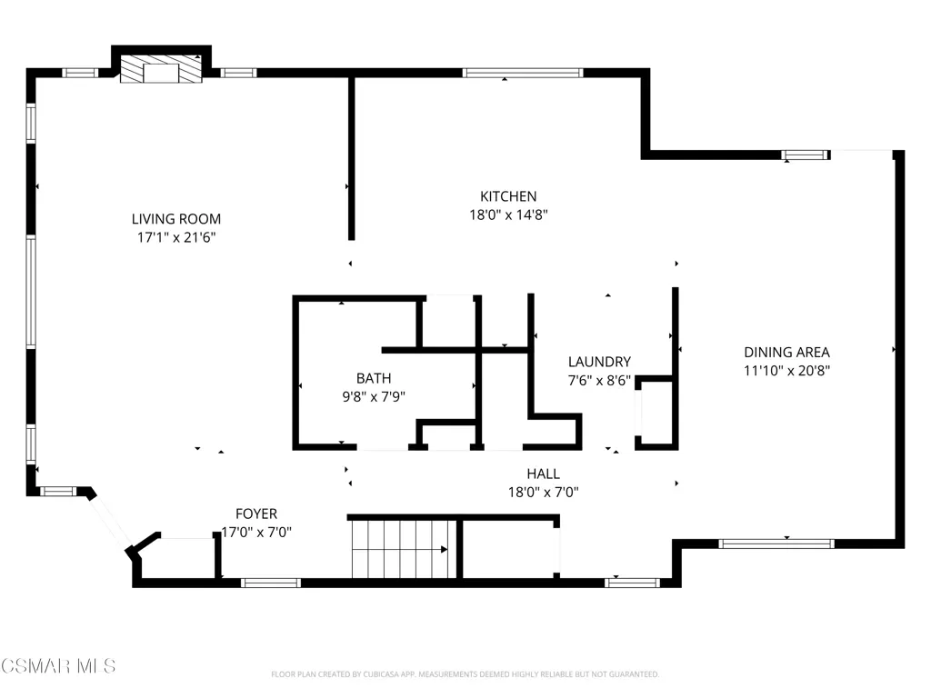
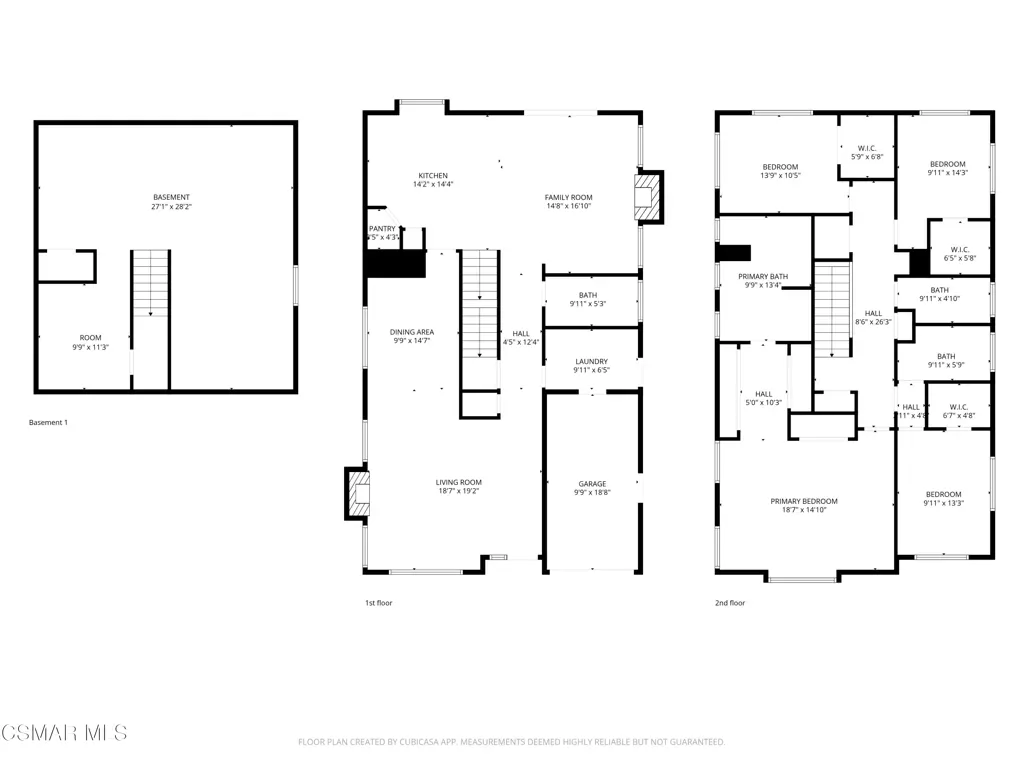
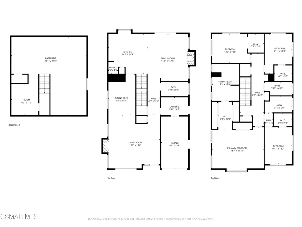
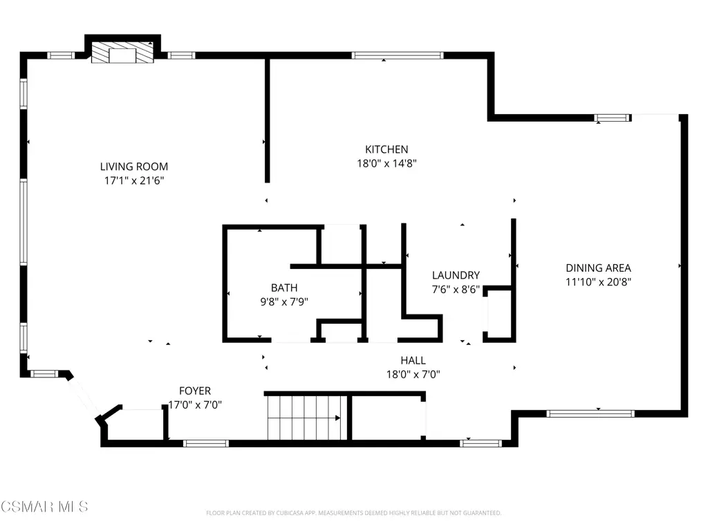
Rare and unique opportunity to own two separate homes on one lot in San Gabriel–ideal for a multi-generational estate or investment potential. This exceptional property offers a combined 8 bedrooms, 7 bathrooms, and approximately 5,200 total square feet, plus an unfinished basement in the rear unit and extensive parking. The front residence (419), built in 2006, features approximately 2,476 sq ft with 4 bedrooms, 3 bathrooms, and a 4-car attached garage. The rear residence (417) offers approximately 2,729 sq ft with 4 bedrooms, 4 bathrooms, a 1-car attached garage, and an unfinished 900 sq ft basement providing additional storage or future potential. Together, the property includes 5 total garage spaces plus 2 additional uncovered parking spaces. Both homes have been tastefully updated and are truly turnkey, featuring all new interior and exterior paint, new flooring, stainless steel appliances, and select new bathroom vanities and select new Quartz kitchen countertops. The back unit also includes all new windows. Leased solar panels help reduce energy costs for both houses and will be transferred to the buyer. Both homes have fire suppression systems installed. The outdoor space includes additional yard areas with 15 varieties of mature fruit trees. Located within the Alhambra School District, this property combines flexibility, space, and location in one exceptional offering. Marshall Park is located less than a block east of the property featuring a playground, walking/jogging path, lighted basketball courts, multi-purpose field, picnic shelters and more! Whether you’re looking for a multi-generational compound, live-in investment, or a rare dual-home setup, this property delivers space, privacy, and modern updates–all in a highly desirable San Gabriel location. A truly one-of-a-kind opportunity–don’t miss it.
Property Details
Price:
$2,488,800
MLS #:
226000498
Status:
Active
Beds:
8
Baths:
7
Type:
Single Family
Subtype:
Single Family Residence
Neighborhood:
654sangabriel
Listed Date:
Feb 3, 2026
Finished Sq Ft:
5,205
Lot Size:
10,029 sqft / 0.23 acres (approx)
Year Built:
2006
Schools
School District:
Alhambra
Interior
Appliances
DW, GD, RF, GAS, GWH, TW
Bathrooms
6 Full Bathrooms, 1 Three Quarter Bathroom
Cooling
CA
Heating
FA, GAS
Interior Features
PTRY
Laundry Features
IN
Levels
U, C
Exterior
Attached Garage YN
1
Common Walls
NCW
Direction Faces
S
Fencing
WI
Garage Spaces
5
Other Structures
TL
Parking Spots
7
Parking Total
7
Patio And Porch Features
CON, POF
Roof
CMP
Window Features
DPW
Financial
Get Out There, A Simply Outgoing Approach to Life. James Outland Jr. is one of those rare people who simply has an outgoing approach to life. No matter the activity… from dune buggy riding to skydiving to motorcycling to riding the local Pismo Beach waves… James Outland Jr. approaches life with a “just get out there and do it” kind of attitude. A zest for Life. James’ zest for life is obviously apparent in his many exciting hobbies. In his spare time, he loves riding dune buggies or hi…
More About JamesMortgage Calculator
Map
Current real estate data for Single Family in San Gabriel as of Apr 09, 2026
108
Single Family Listed
69
Avg DOM
485
Avg $ / SqFt
$1,205,375
Avg List Price
Community
- Address417 W Norwood PL San Gabriel CA
- CitySan Gabriel
- CountyLos Angeles
- Zip Code91776
Similar Listings Nearby
Property Summary
- 417 W Norwood PL San Gabriel CA is a Single Family for sale in San Gabriel, CA, 91776. It is listed for $2,488,800 and features 8 beds, 7 baths, and has approximately 5,205 square feet of living space, and was originally constructed in 2006. The current price per square foot is $478. The average price per square foot for Single Family listings in San Gabriel is $485. The average listing price for Single Family in San Gabriel is $1,205,375. To schedule a showing of MLS#226000498 at 417 W Norwood PL in San Gabriel, CA, contact your James Outland agent at 8057482262.
Courtesy of Berkshire Hathaway Homeservices California Properties. Disclaimer: All data relating to real estate for sale on this page comes from the Broker Reciprocity (BR) of the California Regional Multiple Listing Service. Detailed information about real estate listings held by brokerage firms other than James Outland include the name of the listing broker. Neither the listing company nor James Outland shall be responsible for any typographical errors, misinformation, misprints and shall be held totally harmless. The Broker providing this data believes it to be correct, but advises interested parties to confirm any item before relying on it in a purchase decision. Copyright 2026. California Regional Multiple Listing Service. All rights reserved. 417 W Norwood PL
San Gabriel, CA



























































