$1,245,000
9877 Paseo Montril
San Diego, CA, 92129
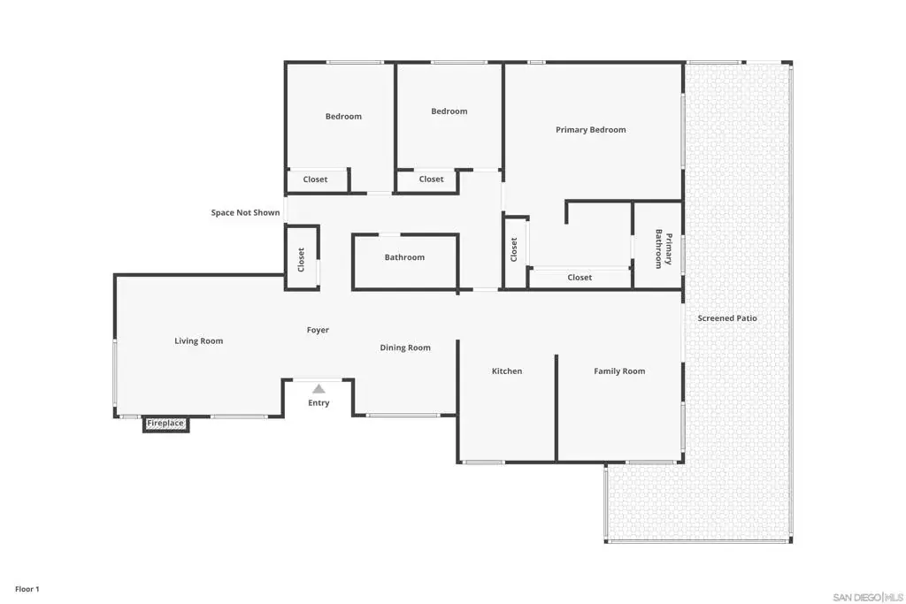
Welcome to this beautifully maintained single-story home in highly desirable Rancho Peñasquitos, lovingly owned by the same family for 39 years. Situated with easy access to I-15, the home is just minutes from top-rated schools, including Mt. Carmel High School, with area schools consistently rated 8–10. Set on an expansive 14,238 Sq Ft lot, the property features turf in the front and side yards with sprinklers underneath, two outdoor decks, fruit trees, and ample space to enjoy outdoor living. Thoughtful upgrades over the past 10 years include dual-pane windows, new flooring, interior and exterior paint, new fencing, retaining walls, gutters, garage door and wi-fi opener, and a camera/security system, along with paid-off solar. Home may be sold furnished or unfurnished; furnishings negotiable. Conveniently located near major employment hubs including Intuit, Qualcomm, Apple, and Illumina, and approximately a 20-minute drive to the beach, this home offers long-term value, comfort, and an ideal setting for families or buyers relocating to San Diego.
Property Details
Price:
$1,245,000
MLS #:
260002389SD
Status:
Active
Beds:
3
Baths:
2
Type:
Single Family
Subtype:
Single Family Residence
Subdivision:
Rancho Penasquitos
Neighborhood:
92129ranchopenasquitos
Listed Date:
Jan 31, 2026
Finished Sq Ft:
1,802
Lot Size:
14,238 sqft / 0.33 acres (approx)
Year Built:
1978
Schools
Interior
Bathrooms
2 Full Bathrooms
Cooling
CA
Heating
ELC, FA
Laundry Features
ELC, IG
Exterior
Construction Materials
STN
Parking Spots
4
Financial
Get Out There, A Simply Outgoing Approach to Life. James Outland Jr. is one of those rare people who simply has an outgoing approach to life. No matter the activity… from dune buggy riding to skydiving to motorcycling to riding the local Pismo Beach waves… James Outland Jr. approaches life with a “just get out there and do it” kind of attitude. A zest for Life. James’ zest for life is obviously apparent in his many exciting hobbies. In his spare time, he loves riding dune buggies or hi…
More About JamesMortgage Calculator
Map
Current real estate data for Single Family in San Diego as of Feb 13, 2026
1,544
Single Family Listed
71
Avg DOM
538
Avg $ / SqFt
$1,171,535
Avg List Price
Community
- Address9877 Paseo Montril San Diego CA
- SubdivisionRancho Penasquitos
- CitySan Diego
- CountySan Diego
- Zip Code92129
Similar Listings Nearby
Property Summary
- Located in the Rancho Penasquitos subdivision, 9877 Paseo Montril San Diego CA is a Single Family for sale in San Diego, CA, 92129. It is listed for $1,245,000 and features 3 beds, 2 baths, and has approximately 1,802 square feet of living space, and was originally constructed in 1978. The current price per square foot is $691. The average price per square foot for Single Family listings in San Diego is $538. The average listing price for Single Family in San Diego is $1,171,535. To schedule a showing of MLS#260002389sd at 9877 Paseo Montril in San Diego, CA, contact your James Outland agent at 8057482262.
Courtesy of eXp Realty of California, Inc.. Disclaimer: All data relating to real estate for sale on this page comes from the Broker Reciprocity (BR) of the California Regional Multiple Listing Service. Detailed information about real estate listings held by brokerage firms other than James Outland include the name of the listing broker. Neither the listing company nor James Outland shall be responsible for any typographical errors, misinformation, misprints and shall be held totally harmless. The Broker providing this data believes it to be correct, but advises interested parties to confirm any item before relying on it in a purchase decision. Copyright 2026. California Regional Multiple Listing Service. All rights reserved. 9877 Paseo Montril
San Diego, CA










































