$1,275,000
924 Hornblend St #311
San Diego, CA, 92109
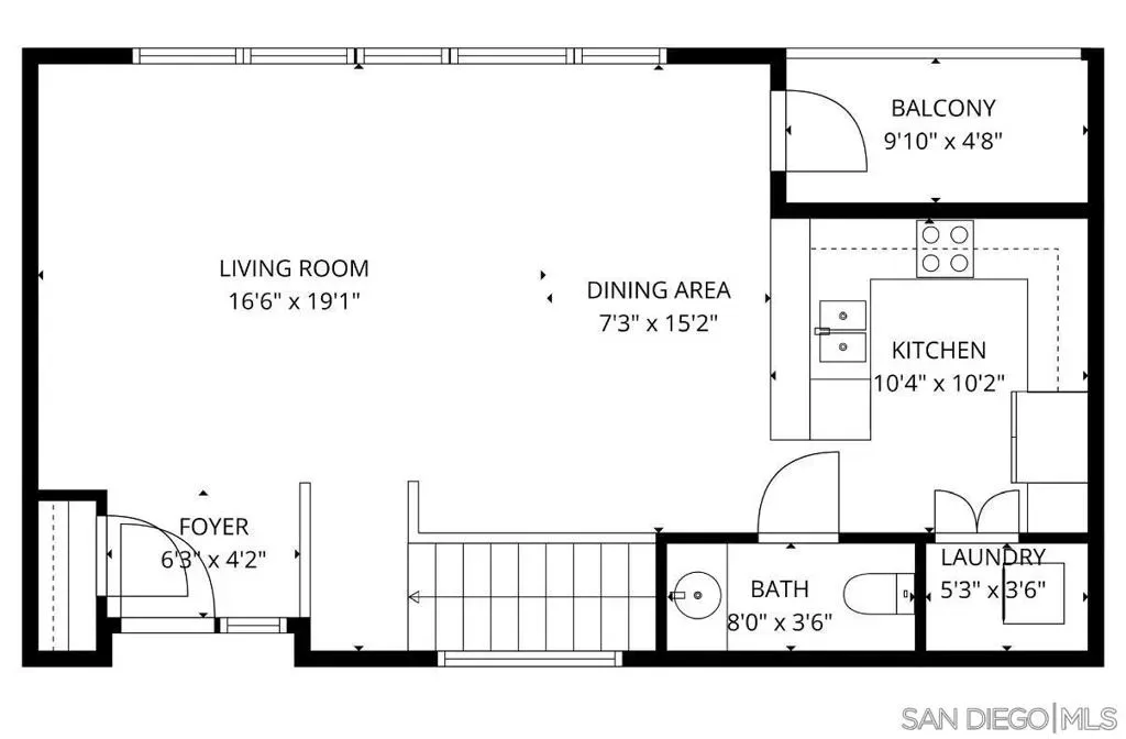
Experience the best of Pacific Beach living in this incredibly walkable, and rare Pacific Sands condo; located just steps from the beach, and bay. This quiet top-floor corner unit offers the perfect balance of privacy and walkability, with coffee shops, restaurants, gyms, and local shopping nearby, along with the Tuesday Farmers Market, right outside the fully gated complex. Inside, the home features two spacious primary suites, 2.5 bathrooms, and large windows that fill the space with natural light. Additional highlights include in-unit laundry, air conditioning, two garaged parking spaces, a substantial storage area, and your own private balcony to take in the fresh coastal air. The HOA is very well funded, and the complex is incredibly well maintained, offering a prestigious, modern feel. These units are rarely available for sale, so don’t miss your opportunity to purchase in one of the nicest complexes in Pacific Beach!
Property Details
Price:
$1,275,000
MLS #:
260006356SD
Status:
Active
Beds:
2
Baths:
3
Type:
Condo
Subtype:
Condominium
Subdivision:
Pacific Beach
Neighborhood:
92109pacificbeach
Listed Date:
Mar 18, 2026
Finished Sq Ft:
1,303
Lot Size:
24,883 sqft / 0.57 acres (approx)
Year Built:
2008
Schools
Interior
Appliances
DW, GD, MW, RF, ER
Bathrooms
2 Full Bathrooms, 1 Half Bathroom
Cooling
CA, ELC
Heating
ELC, FA
Laundry Features
ELC, WH
Levels
U
Exterior
Construction Materials
STC
Garage Spaces
2
Parking Spots
2
Parking Total
2
Patio And Porch Features
PO
Roof
COM
View
MT
Financial
HOA Fee
$724
HOA Fee Frequency
MO
Get Out There, A Simply Outgoing Approach to Life. James Outland Jr. is one of those rare people who simply has an outgoing approach to life. No matter the activity… from dune buggy riding to skydiving to motorcycling to riding the local Pismo Beach waves… James Outland Jr. approaches life with a “just get out there and do it” kind of attitude. A zest for Life. James’ zest for life is obviously apparent in his many exciting hobbies. In his spare time, he loves riding dune buggies or hi…
More About JamesMortgage Calculator
Map
Community
- Address924 Hornblend St #311 San Diego CA
- SubdivisionPacific Beach
- CitySan Diego
- CountySan Diego
- Zip Code92109
Similar Listings Nearby
Property Summary
- Located in the Pacific Beach subdivision, 924 Hornblend St #311 San Diego CA is a Condo for sale in San Diego, CA, 92109. It is listed for $1,275,000 and features 2 beds, 3 baths, and has approximately 1,303 square feet of living space, and was originally constructed in 2008. The current price per square foot is $979. The average price per square foot for Condo listings in San Diego is $687. The average listing price for Condo in San Diego is $751,950. To schedule a showing of MLS#260006356sd at 924 Hornblend St #311 in San Diego, CA, contact your James Outland agent at 8057482262.
Courtesy of eXp Realty of California Inc. Disclaimer: All data relating to real estate for sale on this page comes from the Broker Reciprocity (BR) of the California Regional Multiple Listing Service. Detailed information about real estate listings held by brokerage firms other than James Outland include the name of the listing broker. Neither the listing company nor James Outland shall be responsible for any typographical errors, misinformation, misprints and shall be held totally harmless. The Broker providing this data believes it to be correct, but advises interested parties to confirm any item before relying on it in a purchase decision. Copyright 2026. California Regional Multiple Listing Service. All rights reserved. 924 Hornblend St #311
San Diego, CA








































