$1,199,900
Bush St
San Diego, CA, 92103
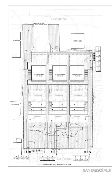
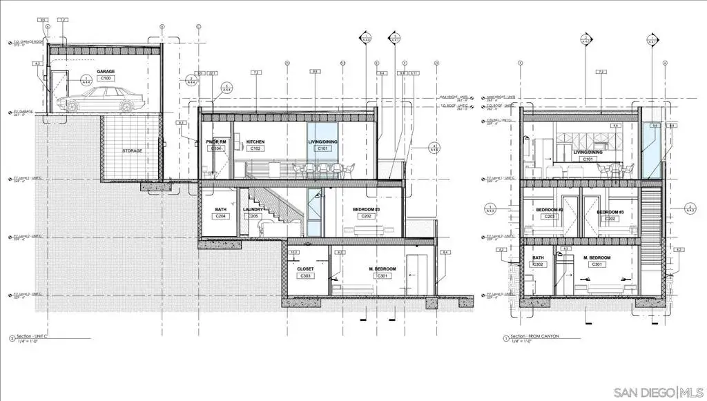
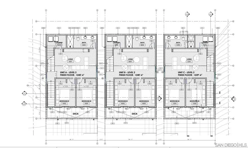
Mission Hills, San Diego, a fantastic development opportunity, especially given its location and potential for stunning views. Here are some key points and considerations for potential buyers or developers: Location and Neighborhood: Mission Hills is known for its historic charm, scenic views, and vibrant community. Its proximity to Downtown San Diego and other urban areas makes it a desirable location. Development Potential: The property offers the opportunity to build 3-6 three-story townhomes, and potentially more, depending on the revised plans. The fact that the lot can accommodate multiple units is a significant advantage for developers looking to maximize their investment. Architectural Plans: While the original architectural plans by Safdie Rabines Architects have expired, the fact that the architects are open to revisiting them provides flexibility for potential buyers. Developing new plans that take advantage of the views and the unique characteristics of the neighborhood could be an exciting prospect. Zoning and Regulations: The zoning designation of MCCPD-MR3000 suggests that the property is zoned for multi-residential development, which aligns with the proposed townhome project. Market and Demand: Understanding the demand for housing in Mission Hills and the broader San Diego area is crucial for assessing the feasibility and potential profitability of project. Overall, this Mission Hills property presents an exciting opportunity for developers to create a unique desirable residential development that capitalizes on the neighborhoods charm! Mission Hills, San Diego, a fantastic development opportunity, especially given its location and potential for stunning views. Here are some key points and considerations for potential buyers or developers: Location and Neighborhood: Mission Hills is known for its historic charm, scenic views, and vibrant community. Its proximity to Downtown San Diego and other urban areas makes it a desirable location for residents. Development Potential: The property offers the opportunity to build 3-6 three-story townhomes, and potentially more, depending on the revised plans. The fact that the lot can accommodate multiple units is a significant advantage for developers looking to maximize their investment. Architectural Plans: While the original architectural plans by Safdie Rabines Architects have expired, the architects are open to revisiting them providing flexibility for potential buyers. Developing new plans that take advantage of the views and the unique characteristics of the neighborhood could be an exciting prospect. Zoning and Regulations: It’s important for developers to understand the zoning regulations and any restrictions that may apply to the property. The zoning designation of MCCPD-MR3000 suggests that the property is zoned for multi-residential development, which aligns with the proposed townhome project. Market and Demand: Understanding the demand for housing in Mission Hills and the broader San Diego area is crucial for assessing the feasibility and potential profitability of the project. Researching market trends, demographics, and buyer preferences can help inform the development strategy. Infrastructure and Utilities: Developers should consider the availability and accessibility of infrastructure and utilities such as water, sewer, electricity, and road access. Ensuring that these essential services are in place or can be easily connected to the property is essential for successful development. Environmental and Geotechnical Factors: Given the sloping nature of the double-sized lot, developers should conduct thorough assessments of environmental and geotechnical factors to identify any potential challenges or risks associated with the site. Community Engagement: Engaging with the local community and addressing their concerns and priorities can help facilitate the development process and foster positive relationships with neighbors and stakeholders. Overall…
Property Details
Price:
$1,199,900
MLS #:
260001606SD
Status:
Active
Beds:
0
Baths:
0
Type:
Land
Subdivision:
Mission Hills
Neighborhood:
92103missionhills
Listed Date:
Jan 29, 2026
Lot Size:
14,505 sqft / 0.33 acres (approx)
Schools
Interior
Exterior
Financial
Get Out There, A Simply Outgoing Approach to Life. James Outland Jr. is one of those rare people who simply has an outgoing approach to life. No matter the activity… from dune buggy riding to skydiving to motorcycling to riding the local Pismo Beach waves… James Outland Jr. approaches life with a “just get out there and do it” kind of attitude. A zest for Life. James’ zest for life is obviously apparent in his many exciting hobbies. In his spare time, he loves riding dune buggies or hi…
More About JamesMortgage Calculator
Map
Community
- AddressBush St San Diego CA
- SubdivisionMission Hills
- CitySan Diego
- CountySan Diego
- Zip Code92103
Similar Listings Nearby
Property Summary
- Located in the Mission Hills subdivision, Bush St San Diego CA is a Land for sale in San Diego, CA, 92103. It is listed for $1,199,900 and features 0 acres. To schedule a showing of MLS#260001606sd at Bush St in San Diego, CA, contact your James Outland agent at 8057482262.
Courtesy of The Agency. Disclaimer: All data relating to real estate for sale on this page comes from the Broker Reciprocity (BR) of the California Regional Multiple Listing Service. Detailed information about real estate listings held by brokerage firms other than James Outland include the name of the listing broker. Neither the listing company nor James Outland shall be responsible for any typographical errors, misinformation, misprints and shall be held totally harmless. The Broker providing this data believes it to be correct, but advises interested parties to confirm any item before relying on it in a purchase decision. Copyright 2026. California Regional Multiple Listing Service. All rights reserved. Bush St
San Diego, CA
















