$2,695,000
11 Krista LN
San Carlos, CA, 94070
Offered for the first time on the market, this home is tucked within a private and exclusive enclave of just four residences, offering a rare sense of peace and seclusion in the heart of the Peninsula. Here, mornings unfold at an easy pace, evenings feel grounded and serene, and privacy is part of everyday life. The home is a gracious two-story country-style residence, thoughtfully designed to emphasize space, natural light, and connection. Generously proportioned rooms create an effortless flow, equally suited for relaxed daily living or welcoming family and friends for memorable gatherings. Situated on a lush 9,900-square-foot corner lot, the property invites creativity and possibility. Envision garden pathways, alfresco dining beneath the stars, or a custom backyard retreat. What truly sets this home apart is its exceptional balance of tranquility and convenience. Located at the border of San Carlos and Redwood City, moments from 280 and 101, with shopping, medical centers, and miles of hiking trails. It’s a lifestyle that seamlessly blends accessibility with the charm of urban country living. This isn’t just a home it’s a place to settle, entertain generously, and enjoy the quiet luxury of space, privacy, and connection to nature, all while remaining close to what matters
Property Details
Price:
$2,695,000
MLS #:
ML82031307
Status:
Active
Beds:
3
Baths:
3
Type:
Single Family
Subtype:
Single Family Residence
Neighborhood:
699notdefined
Listed Date:
Jan 16, 2026
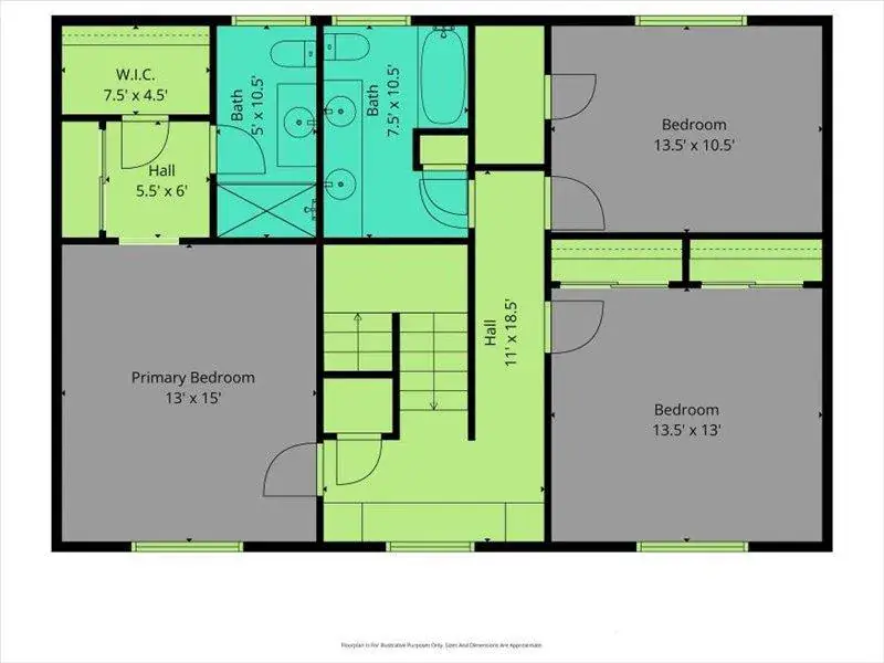
Finished Sq Ft:
2,230
Lot Size:
9,900 sqft / 0.23 acres (approx)
Year Built:
1972
Schools
School District:
Other
Elementary School:
Other
High School:
Sequoia
Interior
Appliances
DW, GD, IM, RF, ES, DO
Bathrooms
2 Full Bathrooms, 1 Half Bathroom
Cooling
CA
Flooring
TILE, CARP
Heating
CF
Exterior
Architectural Style
TRD
Parking Spots
4
Roof
CMP
Financial
Get Out There, A Simply Outgoing Approach to Life. James Outland Jr. is one of those rare people who simply has an outgoing approach to life. No matter the activity… from dune buggy riding to skydiving to motorcycling to riding the local Pismo Beach waves… James Outland Jr. approaches life with a “just get out there and do it” kind of attitude. A zest for Life. James’ zest for life is obviously apparent in his many exciting hobbies. In his spare time, he loves riding dune buggies or hi…
More About JamesMortgage Calculator
Map
Current real estate data for Single Family in San Carlos as of Feb 13, 2026
29
Single Family Listed
58
Avg DOM
971
Avg $ / SqFt
$2,299,095
Avg List Price
Community
- Address11 Krista LN San Carlos CA
- CitySan Carlos
- CountySan Mateo
- Zip Code94070
Similar Listings Nearby
Property Summary
- 11 Krista LN San Carlos CA is a Single Family for sale in San Carlos, CA, 94070. It is listed for $2,695,000 and features 3 beds, 3 baths, and has approximately 2,230 square feet of living space, and was originally constructed in 1972. The current price per square foot is $1,209. The average price per square foot for Single Family listings in San Carlos is $971. The average listing price for Single Family in San Carlos is $2,299,095. To schedule a showing of MLS#ml82031307 at 11 Krista LN in San Carlos, CA, contact your James Outland agent at 8057482262.
Courtesy of Compass. Disclaimer: All data relating to real estate for sale on this page comes from the Broker Reciprocity (BR) of the California Regional Multiple Listing Service. Detailed information about real estate listings held by brokerage firms other than James Outland include the name of the listing broker. Neither the listing company nor James Outland shall be responsible for any typographical errors, misinformation, misprints and shall be held totally harmless. The Broker providing this data believes it to be correct, but advises interested parties to confirm any item before relying on it in a purchase decision. Copyright 2026. California Regional Multiple Listing Service. All rights reserved. 11 Krista LN
San Carlos, CA
































