6740 Tampa AV Reseda CA 91335 MLS #25589875

6740 Tampa AV
Reseda, CA, 91335
$1,500,000
Beds
0 Baths
0 SqFt
0.12 Acres
$1,500,000
6740 Tampa AV
Reseda, CA, 91335
MLS #25589875 image #0
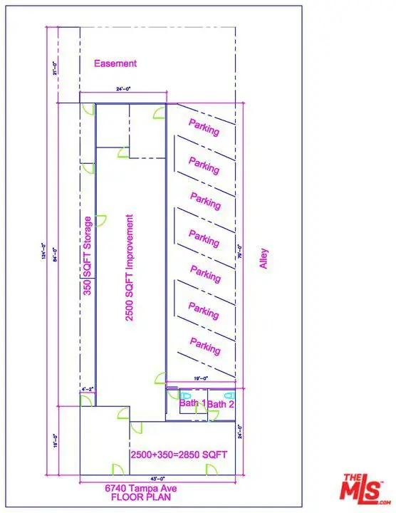
Prime opportunity to own a highly visible office/retail building on a main street in Reseda. The property features five separate entrances and is currently configured as one large office but can be divided into multiple office spaces at the Buyer’s expense. The site includes eight designated parking spaces along with ample street parking. This versatile building offers excellent visibility and exposure, ideal for retail shops or professional office use. The Seller will consider all offers. Please note, the Listing Agent is also the Seller. Recent building laws may allow development of up to 75% of the lot as a mixed-use commercial and residential project of up to two stories (Buyer to verify). Buyer is advised to conduct their own due diligence with the City of Los Angeles regarding permits and approvals, as Seller makes no guarantees.

Property Details

Price:
$1,500,000
MLS #:
25589875
Status:
Active
Beds:
0
Baths:
0
Type:
Commercial
Neighborhood:
resreseda
Listed Date:
Sep 9, 2025
Total Sq Ft:
2,388
Lot Size:
5,334 sqft / 0.12 acres (approx)
Year Built:
1955
Res – ResedaResreseda

Schools

Interior

Exterior

Parking Spots
8

Financial

Need more info?
Ask a Question
Ready to go see it?
Schedule a Showing

Get Out There, A Simply Outgoing Approach to Life. James Outland Jr. is one of those rare people who simply has an outgoing approach to life. No matter the activity… from dune buggy riding to skydiving to motorcycling to riding the local Pismo Beach waves… James Outland Jr. approaches life with a “just get out there and do it” kind of attitude. A zest for Life. James’ zest for life is obviously apparent in his many exciting hobbies. In his spare time, he loves riding dune buggies or hi…

More About James

Mortgage Calculator

 

Map

Current real estate data for Commercial in Reseda as of Feb 13, 2026
4
Commercial Listed
271
Avg DOM
$3,400,000
Avg List Price

Community

Similar Listings Nearby

broker reciprocity
MLS# GD25172703broker reciprocity
19740 Sherman WY
Winnetka, CA

$2,100,000

0.8 miles away

broker reciprocity
MLS# SR24061977broker reciprocity
18515 Sherman WY
Reseda, CA

$1,600,000

1.1 miles away

Property Summary

    6740 Tampa AV Reseda CA is a Commercial for sale in Reseda, CA, 91335. It is listed for $1,500,000 To schedule a showing of MLS#25589875 at 6740 Tampa AV in Reseda, CA, contact your James Outland agent at 8057482262.
6740 Tampa AV
Reseda, CA
Scroll to Top