$1,137,500
24 Calle Estero
Rancho Santa Margarita, CA, 92688
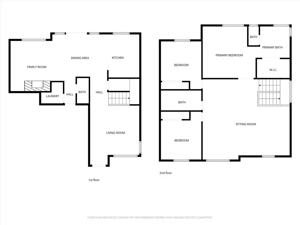
Beautifully maintained Tesoro Home with Bonus Room and Outdoor Living… Welcome to this spacious and versatile three-bedroom, bonus room, two-and-half bath, two-story home offering 1,989 square feet of well-designed living space in the well sought area of California Tesoro neighborhood of Rancho Santa Margarita. The first level features manufactured wood flooring throughout, including the staircase, and welcomes you into a generous living room that can easily function as a formal dining area, home office or entertainment space. The downstairs also includes a cozy family room with fireplace that flows seamlessly into the dining area and kitchen, creating an ideal layout for both everyday living and gatherings. The kitchen is appointed with granite countertops and ample cabinetry. The dining area opens to a covered patio deck, extending your living area to a spacious and entertaining outdoor area. The backyard and front yard feature low-maintenance artificial turf, perfect for relaxing or entertaining year-round. Additional downstairs conveniences include a half bathroom and a dedicated indoor laundry room. Upstairs, you’ll find wall-to-wall carpeting and a fully permitted bonus room that offers excellent flexibility and may be converted into a fourth bedroom with a smaller loft area. The spacious primary suite features a walk-in closet and a private full bathroom. Secondary bedrooms are well-sized and share a full hall bath. Additional highlights include wooden shutters and ceiling fans throughout the home and a clean, organized 2-car garage complete with built-in workbenches. Ideally located near parks, schools, shopping, and community amenities. Nearby Arroyo Vista Park which offers community pool, sports courts and amenities. Close to shopping, dining and toll roads. This home offers comfort, flexibility and style in one of Rancho Santa Margarita’s most sought-after neighborhoods.
Property Details
Price:
$1,137,500
MLS #:
OC26013904
Status:
Active
Beds:
3
Baths:
3
Type:
Single Family
Subtype:
Single Family Residence
Subdivision:
California Tesoro CATS
Neighborhood:
r2ranchosantamargaritacentral
Listed Date:
Mar 2, 2026
Finished Sq Ft:
1,989
Lot Size:
3,200 sqft / 0.07 acres (approx)
Year Built:
1995
Schools
School District:
Capistrano Unified
Elementary School:
Arroyo Vista
High School:
Tesoro
Interior
Appliances
DW, GD, GO, GS, WHU
Bathrooms
2 Full Bathrooms, 1 Half Bathroom
Cooling
CA
Flooring
SEE, WOOD
Heating
CF
Interior Features
CF, GRNC
Laundry Features
GAS, IN
Levels
U
Main Level Bathrooms
1
Exterior
Architectural Style
CNT, TRD
Attached Garage YN
1
Common Walls
_1CW
Community Features
SDW, STM, SL, CRB, CW
Construction Materials
STC
Fencing
BW
Garage Spaces
2
Parking Spots
4
Parking Total
4
Patio And Porch Features
CO, PTO, POF
Roof
TLE
Spa Features
COM
View
NO
Window Features
PLS
Financial
HOA Fee
$91
HOA Fee Frequency
MO
Get Out There, A Simply Outgoing Approach to Life. James Outland Jr. is one of those rare people who simply has an outgoing approach to life. No matter the activity… from dune buggy riding to skydiving to motorcycling to riding the local Pismo Beach waves… James Outland Jr. approaches life with a “just get out there and do it” kind of attitude. A zest for Life. James’ zest for life is obviously apparent in his many exciting hobbies. In his spare time, he loves riding dune buggies or hi…
More About JamesMortgage Calculator
Map
Current real estate data for Single Family in Rancho Santa Margarita as of Apr 12, 2026
96
Single Family Listed
41
Avg DOM
422
Avg $ / SqFt
$958,816
Avg List Price
Community
- Address24 Calle Estero Rancho Santa Margarita CA
- SubdivisionCalifornia Tesoro (CATS)
- CityRancho Santa Margarita
- CountyOrange
- Zip Code92688
Similar Listings Nearby
Property Summary
- Located in the California Tesoro (CATS) subdivision, 24 Calle Estero Rancho Santa Margarita CA is a Single Family for sale in Rancho Santa Margarita, CA, 92688. It is listed for $1,137,500 and features 3 beds, 3 baths, and has approximately 1,989 square feet of living space, and was originally constructed in 1995. The current price per square foot is $572. The average price per square foot for Single Family listings in Rancho Santa Margarita is $422. The average listing price for Single Family in Rancho Santa Margarita is $958,816. To schedule a showing of MLS#oc26013904 at 24 Calle Estero in Rancho Santa Margarita, CA, contact your James Outland agent at 8057482262.
Courtesy of Regency Real Estate Brokers. Disclaimer: All data relating to real estate for sale on this page comes from the Broker Reciprocity (BR) of the California Regional Multiple Listing Service. Detailed information about real estate listings held by brokerage firms other than James Outland include the name of the listing broker. Neither the listing company nor James Outland shall be responsible for any typographical errors, misinformation, misprints and shall be held totally harmless. The Broker providing this data believes it to be correct, but advises interested parties to confirm any item before relying on it in a purchase decision. Copyright 2026. California Regional Multiple Listing Service. All rights reserved. 24 Calle Estero
Rancho Santa Margarita, CA






































