$1,449,999
1286 Roots WY
Rancho Mission Viejo, CA, 92694
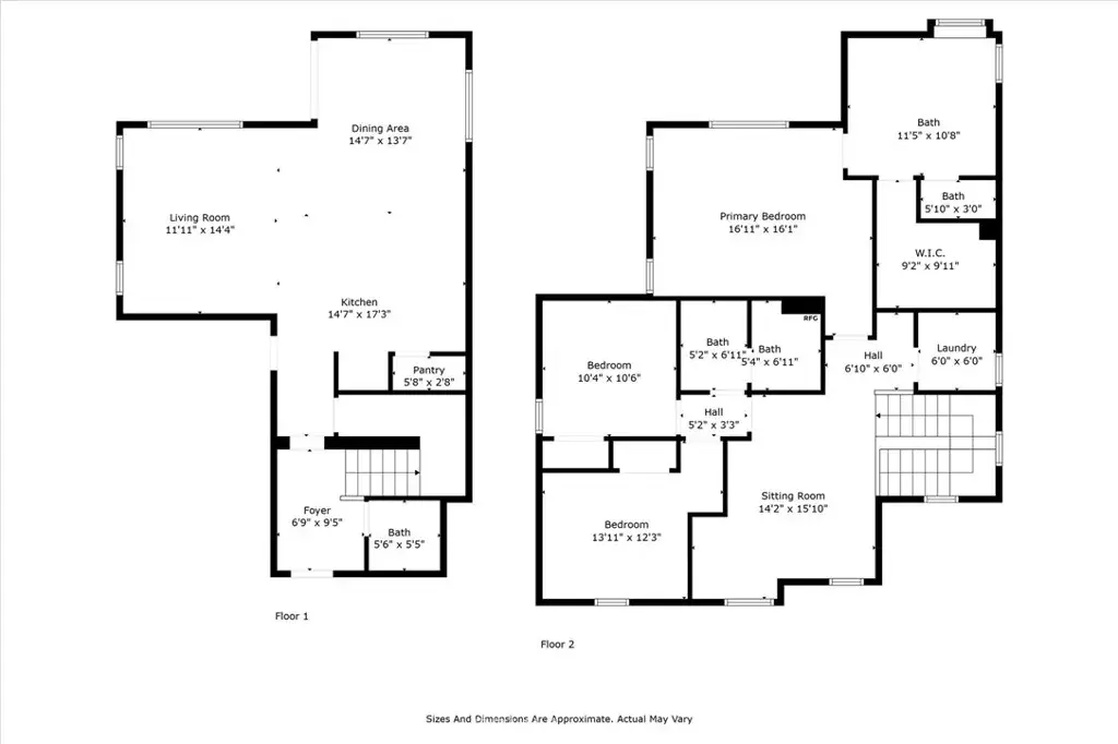
Experience elevated California living in this impeccably upgraded Modern Farmhouse style residence, nestled on a premium oversized corner lot in the vibrant community of Botanica in Rienda at Rancho Mission Viejo. Designed with sophistication and comfort in mind, this nearly new home offers a refined floorplan with three spacious bedrooms, two-and-a-half luxurious baths, and a versatile upstairs loft that can easily serve as a fourth bedroom or private office.
Step inside to discover high-end finishes and thoughtful upgrades throughout, including custom window coverings, luxury vinyl hardwood flooring, plantation shutters, designer lighting, and custom paint. The gourmet kitchen is a showstopper—complete with stainless steel GE appliances, a gas range with griddle, quartz countertops, custom backsplash, an oversized center island, walk-in pantry, and shaker-style cabinetry that extends to the ceiling. The kitchen flows seamlessly into the expansive dining area and inviting living space, ideal for both entertaining and everyday comfort.
Upstairs, you’ll find two generously sized secondary bedrooms, a stylish full bath, and a beautifully appointed primary suite with a spa-inspired bathroom featuring dual vanities, a large walk-in shower, and a spacious walk-in closet. There is also an upgraded vanity area in the primary bath. The loft has been enhanced with custom built-in cabinetry, perfect for added storage or workspace.
Step outside into your private backyard retreat—professionally landscaped with pavers and turf, a covered California Room, and a built-in gas BBQ, ideal for year-round outdoor entertaining.
Additional upgrades include upper cabinets in the laundry room, SMART home features throughout (including a Ring doorbell, security system, smart thermostat, and light switches), owned solar panels, a whole house fan, tankless water heater, energy-efficient appliances, LED lighting, PEX piping, fire sprinklers, and more.
Located in one of South Orange County’s most desirable, award-winning, master-planned communities, enjoy exclusive access to resort-style amenities—clubhouses, fitness centers, pools, parks, nature trails, a neighborhood farm, tennis and pickleball courts, and top-rated schools.
This is not just a home—it’s a lifestyle. Welcome to 1286 Roots Way.
Step inside to discover high-end finishes and thoughtful upgrades throughout, including custom window coverings, luxury vinyl hardwood flooring, plantation shutters, designer lighting, and custom paint. The gourmet kitchen is a showstopper—complete with stainless steel GE appliances, a gas range with griddle, quartz countertops, custom backsplash, an oversized center island, walk-in pantry, and shaker-style cabinetry that extends to the ceiling. The kitchen flows seamlessly into the expansive dining area and inviting living space, ideal for both entertaining and everyday comfort.
Upstairs, you’ll find two generously sized secondary bedrooms, a stylish full bath, and a beautifully appointed primary suite with a spa-inspired bathroom featuring dual vanities, a large walk-in shower, and a spacious walk-in closet. There is also an upgraded vanity area in the primary bath. The loft has been enhanced with custom built-in cabinetry, perfect for added storage or workspace.
Step outside into your private backyard retreat—professionally landscaped with pavers and turf, a covered California Room, and a built-in gas BBQ, ideal for year-round outdoor entertaining.
Additional upgrades include upper cabinets in the laundry room, SMART home features throughout (including a Ring doorbell, security system, smart thermostat, and light switches), owned solar panels, a whole house fan, tankless water heater, energy-efficient appliances, LED lighting, PEX piping, fire sprinklers, and more.
Located in one of South Orange County’s most desirable, award-winning, master-planned communities, enjoy exclusive access to resort-style amenities—clubhouses, fitness centers, pools, parks, nature trails, a neighborhood farm, tennis and pickleball courts, and top-rated schools.
This is not just a home—it’s a lifestyle. Welcome to 1286 Roots Way.
Property Details
Price:
$1,449,999
MLS #:
OC25177995
Status:
Active
Beds:
3
Baths:
3
Type:
Single Family
Subtype:
Single Family Residence
Subdivision:
Botanica BTNC
Neighborhood:
rienrienda
Listed Date:
Aug 7, 2025
Finished Sq Ft:
2,000
Lot Size:
4,500 sqft / 0.10 acres (approx)
Year Built:
2023
Schools
School District:
Capistrano Unified
High School:
Tesoro
Interior
Appliances
MW, RF, GO, TW
Bathrooms
2 Full Bathrooms, 1 Half Bathroom
Cooling
CA
Heating
CF
Laundry Features
IR
Exterior
Community Features
SDW, STM, SL, SUB, CRB, CW, PARK, BIKI, DGP
Parking Spots
2
Financial
HOA Fee
$246
HOA Frequency
MO
Get Out There, A Simply Outgoing Approach to Life. James Outland Jr. is one of those rare people who simply has an outgoing approach to life. No matter the activity… from dune buggy riding to skydiving to motorcycling to riding the local Pismo Beach waves… James Outland Jr. approaches life with a “just get out there and do it” kind of attitude. A zest for Life. James’ zest for life is obviously apparent in his many exciting hobbies. In his spare time, he loves riding dune buggies or hi…
More About JamesMortgage Calculator
Map
Current real estate data for Single Family in Rancho Mission Viejo as of Feb 13, 2026
81
Single Family Listed
41
Avg DOM
510
Avg $ / SqFt
$1,074,212
Avg List Price
Community
- Address1286 Roots WY Rancho Mission Viejo CA
- SubdivisionBotanica (BTNC)
- CityRancho Mission Viejo
- CountyOrange
- Zip Code92694
Similar Listings Nearby
Property Summary
- Located in the Botanica (BTNC) subdivision, 1286 Roots WY Rancho Mission Viejo CA is a Single Family for sale in Rancho Mission Viejo, CA, 92694. It is listed for $1,449,999 and features 3 beds, 3 baths, and has approximately 2,000 square feet of living space, and was originally constructed in 2023. The current price per square foot is $725. The average price per square foot for Single Family listings in Rancho Mission Viejo is $510. The average listing price for Single Family in Rancho Mission Viejo is $1,074,212. To schedule a showing of MLS#oc25177995 at 1286 Roots WY in Rancho Mission Viejo, CA, contact your James Outland agent at 8057482262.
Courtesy of Douglas Elliman of California. Disclaimer: All data relating to real estate for sale on this page comes from the Broker Reciprocity (BR) of the California Regional Multiple Listing Service. Detailed information about real estate listings held by brokerage firms other than James Outland include the name of the listing broker. Neither the listing company nor James Outland shall be responsible for any typographical errors, misinformation, misprints and shall be held totally harmless. The Broker providing this data believes it to be correct, but advises interested parties to confirm any item before relying on it in a purchase decision. Copyright 2026. California Regional Multiple Listing Service. All rights reserved. 1286 Roots WY
Rancho Mission Viejo, CA























































