$195,000
10210 Base Line #253
Rancho Cucamonga, CA, 91701
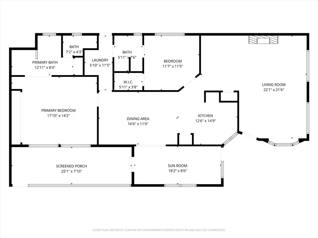
Welcome to this spacious and thoughtfully designed 2-bedroom, 2-bath home located in the desirable Alta Laguna 55+ community in Rancho Cucamonga. Offering a comfortable and functional layout, this home features generous living areas and abundant natural light throughout.
The large living room provides an inviting space for relaxing or entertaining guests. Just beyond, the kitchen offers ample cabinetry and counter space and flows easily into the dedicated dining area, creating a practical and comfortable space for everyday meals and gatherings.
The primary bedroom is generously sized and includes an oversized en-suite bathroom, creating a private and comfortable retreat. A second bedroom and additional full bathroom are conveniently located nearby, along with a dedicated laundry room that adds everyday convenience.
One of the standout features of this home is the additional flexible living space, including a bright sunroom and an expansive screened porch. These versatile areas are perfect for relaxing, hobbies, entertaining, or creating a home office, and may even offer the potential for an optional third bedroom.
Alta Laguna is a beautifully maintained 55+ manufactured home community set against the scenic foothills of Rancho Cucamonga. Residents enjoy a peaceful setting with mature landscaping and a natural lagoon featuring koi and goldfish.
Community amenities include a heated swimming pool, spa, fitness center, miniature golf course, clubhouse, game room, billiards, craft clubs, exercise classes, and planned social activities. Additional features include scenic walking areas, BBQ spaces, RV storage, and pet-friendly outdoor areas.
Conveniently located near shopping, dining, parks, and everyday amenities, this home offers a wonderful opportunity to enjoy comfortable living in an active and welcoming community.
The large living room provides an inviting space for relaxing or entertaining guests. Just beyond, the kitchen offers ample cabinetry and counter space and flows easily into the dedicated dining area, creating a practical and comfortable space for everyday meals and gatherings.
The primary bedroom is generously sized and includes an oversized en-suite bathroom, creating a private and comfortable retreat. A second bedroom and additional full bathroom are conveniently located nearby, along with a dedicated laundry room that adds everyday convenience.
One of the standout features of this home is the additional flexible living space, including a bright sunroom and an expansive screened porch. These versatile areas are perfect for relaxing, hobbies, entertaining, or creating a home office, and may even offer the potential for an optional third bedroom.
Alta Laguna is a beautifully maintained 55+ manufactured home community set against the scenic foothills of Rancho Cucamonga. Residents enjoy a peaceful setting with mature landscaping and a natural lagoon featuring koi and goldfish.
Community amenities include a heated swimming pool, spa, fitness center, miniature golf course, clubhouse, game room, billiards, craft clubs, exercise classes, and planned social activities. Additional features include scenic walking areas, BBQ spaces, RV storage, and pet-friendly outdoor areas.
Conveniently located near shopping, dining, parks, and everyday amenities, this home offers a wonderful opportunity to enjoy comfortable living in an active and welcoming community.
Property Details
Price:
$195,000
MLS #:
CV26051471
Status:
Active
Beds:
2
Baths:
2
Type:
Single Family
Neighborhood:
688ranchocucamonga
Listed Date:
Mar 16, 2026
Finished Sq Ft:
1,776
Year Built:
1976
Schools
School District:
Alta Loma
High School:
Alta Loma
Interior
Appliances
DW, RF, HOD
Bathrooms
2 Full Bathrooms
Cooling
CA
Flooring
VINY
Heating
CF
Interior Features
BI, CF, ST, GRNC, OFP, PTRY
Laundry Features
GAS, IR, WH
Levels
A
Exterior
Community
55+
Community Features
SDW, SL, CRB, GOLF
Direction Faces
E
Fencing
NO
Parking Spots
3
Parking Total
3
Patio And Porch Features
PO, ARZ, POF, SCPO
Roof
SHN
Security Features
SD, COD, GC
Senior Community YN
1
Spa Features
HT, IG, COM
View
MT
Financial
Lease Land Amount
$1,517
Lease Land Frequency
MO
Get Out There, A Simply Outgoing Approach to Life. James Outland Jr. is one of those rare people who simply has an outgoing approach to life. No matter the activity… from dune buggy riding to skydiving to motorcycling to riding the local Pismo Beach waves… James Outland Jr. approaches life with a “just get out there and do it” kind of attitude. A zest for Life. James’ zest for life is obviously apparent in his many exciting hobbies. In his spare time, he loves riding dune buggies or hi…
More About JamesMortgage Calculator
Map
Current real estate data for Single Family in Rancho Cucamonga as of Apr 09, 2026
324
Single Family Listed
66
Avg DOM
336
Avg $ / SqFt
$739,490
Avg List Price
Community
- Address10210 Base Line #253 Rancho Cucamonga CA
- CityRancho Cucamonga
- CountySan Bernardino
- Zip Code91701
Similar Listings Nearby
Property Summary
- 10210 Base Line #253 Rancho Cucamonga CA is a Single Family for sale in Rancho Cucamonga, CA, 91701. It is listed for $195,000 and features 2 beds, 2 baths, and has approximately 1,776 square feet of living space, and was originally constructed in 1976. The current price per square foot is $110. The average price per square foot for Single Family listings in Rancho Cucamonga is $336. The average listing price for Single Family in Rancho Cucamonga is $739,490. To schedule a showing of MLS#cv26051471 at 10210 Base Line #253 in Rancho Cucamonga, CA, contact your James Outland agent at 8057482262.
Courtesy of AGENCY 8 REAL ESTATE GROUP. Disclaimer: All data relating to real estate for sale on this page comes from the Broker Reciprocity (BR) of the California Regional Multiple Listing Service. Detailed information about real estate listings held by brokerage firms other than James Outland include the name of the listing broker. Neither the listing company nor James Outland shall be responsible for any typographical errors, misinformation, misprints and shall be held totally harmless. The Broker providing this data believes it to be correct, but advises interested parties to confirm any item before relying on it in a purchase decision. Copyright 2026. California Regional Multiple Listing Service. All rights reserved. 10210 Base Line #253
Rancho Cucamonga, CA























































