$9,995,000
1651 Crespi LN
Pebble Beach, CA, 93953
Atop the summit of Crespi Lane where some of the greatest estates were built in the early days of Pebble Beach, this delightful Mid-Century Coastal home enjoys Stillwater Cove and 17th Green views from within and without. Single level in design, the residence has the coziness of a cottage and the serenity of an estate where it lives large inside boasting walls of windows facing South and West; soaring vaulted ceilings with skylights throughout and a galley like grand hall where art and collectables can reside in full display. Bordered by Del Ciervo road this long and large corner parcel is a prize unto itself with 1.74 flat acres of open, spacious grassy meadows all around. Delightful as it currently is, there are plans in process under the keen eye of Jun Sillano, AIA of International Design Group, to transform into a grand estate akin to its neighbors on all sides, with an abundance living spaces and terraces overlooking the views. A thoroughly enjoyable residence now and an incredible opportunity to create a great Estate of your own.
Property Details
Price:
$9,995,000
MLS #:
ML82040623
Status:
Active
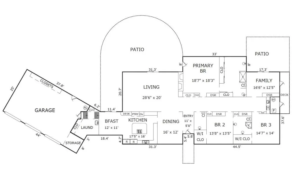
Beds:
4
Baths:
3
Type:
Single Family
Subtype:
Single Family Residence
Neighborhood:
699notdefined
Listed Date:
Mar 27, 2026
Finished Sq Ft:
3,570
Lot Size:
75,882 sqft / 1.74 acres (approx)
Year Built:
1957
Schools
School District:
Carmel Unified
Elementary School:
Carmel River
Middle School:
Carmel
High School:
Carmel
Interior
Appliances
DW, MW
Bathrooms
2 Full Bathrooms, 1 Half Bathroom
Cooling
NO
Flooring
TILE, WOOD
Laundry Features
DINC, WINC
Exterior
Architectural Style
CNT, RAN
Attached Garage YN
1
Common Walls
NCW
Garage Spaces
3
Parking Spots
3
Parking Total
3
Patio And Porch Features
DK
Roof
CMP
View
GC, OC
Financial
Get Out There, A Simply Outgoing Approach to Life. James Outland Jr. is one of those rare people who simply has an outgoing approach to life. No matter the activity… from dune buggy riding to skydiving to motorcycling to riding the local Pismo Beach waves… James Outland Jr. approaches life with a “just get out there and do it” kind of attitude. A zest for Life. James’ zest for life is obviously apparent in his many exciting hobbies. In his spare time, he loves riding dune buggies or hi…
More About JamesMortgage Calculator
Map
Current real estate data for Single Family in Pebble Beach as of Apr 10, 2026
36
Single Family Listed
113
Avg DOM
1,596
Avg $ / SqFt
$8,775,353
Avg List Price
Community
- Address1651 Crespi LN Pebble Beach CA
- CityPebble Beach
- CountyMonterey
- Zip Code93953
Similar Listings Nearby
Property Summary
- 1651 Crespi LN Pebble Beach CA is a Single Family for sale in Pebble Beach, CA, 93953. It is listed for $9,995,000 and features 4 beds, 3 baths, and has approximately 3,570 square feet of living space, and was originally constructed in 1957. The current price per square foot is $2,800. The average price per square foot for Single Family listings in Pebble Beach is $1,596. The average listing price for Single Family in Pebble Beach is $8,775,353. To schedule a showing of MLS#ml82040623 at 1651 Crespi LN in Pebble Beach, CA, contact your James Outland agent at 8057482262.
Courtesy of Carmel Realty Company. Disclaimer: All data relating to real estate for sale on this page comes from the Broker Reciprocity (BR) of the California Regional Multiple Listing Service. Detailed information about real estate listings held by brokerage firms other than James Outland include the name of the listing broker. Neither the listing company nor James Outland shall be responsible for any typographical errors, misinformation, misprints and shall be held totally harmless. The Broker providing this data believes it to be correct, but advises interested parties to confirm any item before relying on it in a purchase decision. Copyright 2026. California Regional Multiple Listing Service. All rights reserved. 1651 Crespi LN
Pebble Beach, CA


































