$4,520
301 N Lake AV #760
Pasadena, CA, 91101
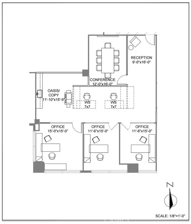
For Sublease – 1,808 sf of premium office space (Unit 760) in the renovated Class A office building. Current lease expires 12/15/2026. A longer term lease is possible with Landlord’s approval. Unit 760 is situated at one corner location of the building, one of the most coveted spots, with expansive window line and spectacular view of downtown. It features three private office with window line, one glass panel partitioned conference room, a reception area, and three work stations. High end tenant improvements include contemporary color scheme, lighting, flooring, and ceiling-to-floor glass panel partitions and doors.
Located in beautiful downtown Pasadena, one of California’s highest-profile business communities, 301 N. Lake Avenue is surrounded by endless amenities. This modern tower has an 92 Walk Score and offers proximity to major retail, hospitality, financial, and business services, making it an ideal neighborhood in Pasadena. The unobstructed mountain views to the north and surrounding Pasadena skyline provide a gorgeous scenery that can’t be replicated. The building’s location also allows unparalleled access to the Metro Gold Line Lake Station and the I-210 freeway. The building offers private subterranean parking with direct access, onsite conference center, WiFi-enabled courtyard and upgraded common areas. Building also provides onsite management, EV charging stations and 24-hour security.
Located in beautiful downtown Pasadena, one of California’s highest-profile business communities, 301 N. Lake Avenue is surrounded by endless amenities. This modern tower has an 92 Walk Score and offers proximity to major retail, hospitality, financial, and business services, making it an ideal neighborhood in Pasadena. The unobstructed mountain views to the north and surrounding Pasadena skyline provide a gorgeous scenery that can’t be replicated. The building’s location also allows unparalleled access to the Metro Gold Line Lake Station and the I-210 freeway. The building offers private subterranean parking with direct access, onsite conference center, WiFi-enabled courtyard and upgraded common areas. Building also provides onsite management, EV charging stations and 24-hour security.
Property Details
Price:
$4,520
MLS #:
WS26028172
Status:
Active
Beds:
0
Baths:
0
Type:
Single Family
Subtype:
Office
Neighborhood:
645pasadenanw
Listed Date:
Feb 6, 2026
Total Sq Ft:
227,019
Lot Size:
58,370 sqft / 1.34 acres (approx)
Year Built:
1988
Schools
Interior
Exterior
Financial
Get Out There, A Simply Outgoing Approach to Life. James Outland Jr. is one of those rare people who simply has an outgoing approach to life. No matter the activity… from dune buggy riding to skydiving to motorcycling to riding the local Pismo Beach waves… James Outland Jr. approaches life with a “just get out there and do it” kind of attitude. A zest for Life. James’ zest for life is obviously apparent in his many exciting hobbies. In his spare time, he loves riding dune buggies or hi…
More About JamesMortgage Calculator
Map
Current real estate data for Single Family in Pasadena as of Apr 07, 2026
343
Single Family Listed
60
Avg DOM
467
Avg $ / SqFt
$1,511,143
Avg List Price
Community
- Address301 N Lake AV #760 Pasadena CA
- CityPasadena
- CountyLos Angeles
- Zip Code91101
Similar Listings Nearby
Property Summary
- 301 N Lake AV #760 Pasadena CA is a Single Family for sale in Pasadena, CA, 91101. It is listed for $4,520 and features 0 beds, 0 baths, and has approximately 0 square feet of living space, and was originally constructed in 1988. The average price per square foot for Single Family listings in Pasadena is $467. The average listing price for Single Family in Pasadena is $1,511,143. To schedule a showing of MLS#ws26028172 at 301 N Lake AV #760 in Pasadena, CA, contact your James Outland agent at 8057482262.
Courtesy of REALTY ADVISORS INTL, INC.. Disclaimer: All data relating to real estate for sale on this page comes from the Broker Reciprocity (BR) of the California Regional Multiple Listing Service. Detailed information about real estate listings held by brokerage firms other than James Outland include the name of the listing broker. Neither the listing company nor James Outland shall be responsible for any typographical errors, misinformation, misprints and shall be held totally harmless. The Broker providing this data believes it to be correct, but advises interested parties to confirm any item before relying on it in a purchase decision. Copyright 2026. California Regional Multiple Listing Service. All rights reserved. 301 N Lake AV #760
Pasadena, CA









