$1,495,000
101 Alma ST #407
Palo Alto, CA, 94301
Experience refined, loft-inspired living in this exceptional 4th-floor corner residence in the heart of downtown. Surrounded by serene tree-top views, this desirable home is filled with natural light, highlighted by expansive floor-to-ceiling windows and an airy, open-concept layout. Designed for both everyday comfort and effortless entertaining, the living, dining, and kitchen spaces flow seamlessly together. Elegant hardwood floors and a well-appointed kitchen add style and functionality, creating a space that feels both sophisticated and inviting. As a corner unit, it enjoys windows on two sides, reducing shared walls with neighbors and maximizing natural light throughout the day. Whether enjoying a quiet morning at home or stepping out to explore, the location offers unmatched convenience just moments from Stanford, Caltrain, fine dining, boutique shopping, and vibrant city life. Residents enjoy a full suite of amenities, including 24-hour front desk, designated parking, fitness center, beautifully maintained pool and outdoor entertaining area, offering an exceptional blend of comfort, convenience, and elevated urban living. HOA dues cover most utilities for added ease. Great opportunity for both homeowners and investors to own in one of the top communities in Palo Alto.
Property Details
Price:
$1,495,000
MLS #:
ML82041155
Status:
Active
Beds:
2
Baths:
2
Type:
Condo
Subtype:
Condominium
Neighborhood:
699notdefined
Listed Date:
Apr 1, 2026
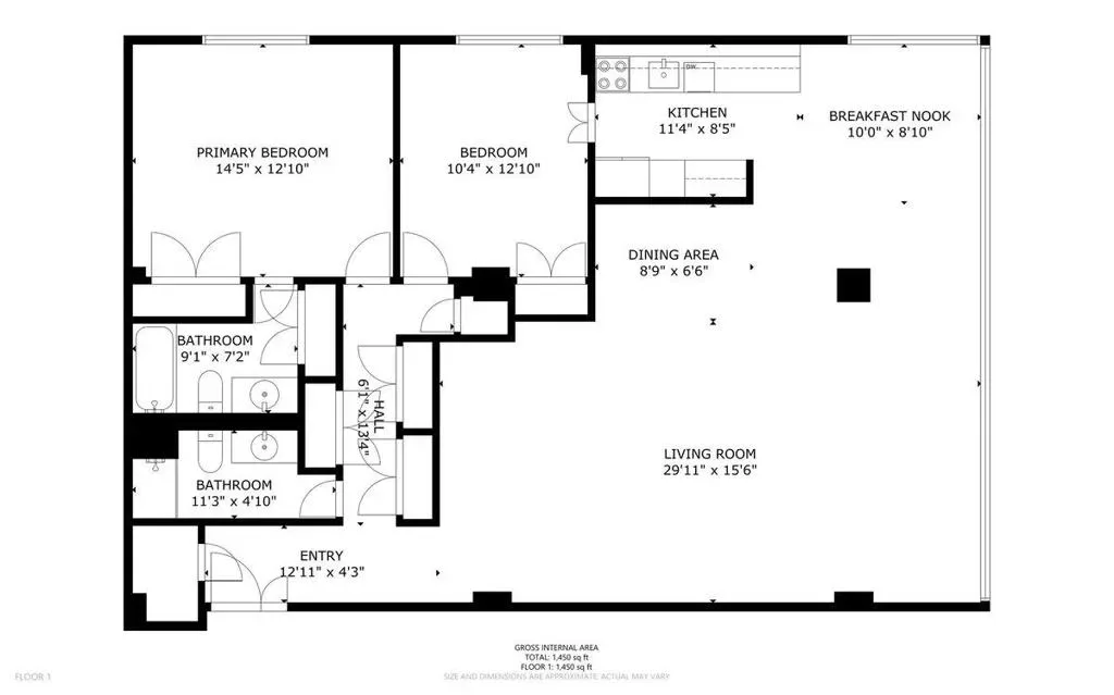
Finished Sq Ft:
1,444
Year Built:
1960
Schools
School District:
Palo Alto Unified
Interior
Appliances
DW, MW, RF, ES, VEF
Bathrooms
2 Full Bathrooms
Cooling
CA
Flooring
LAM, WOOD
Heating
CF
Exterior
Garage Spaces
1
Parking Spots
1
Parking Total
1
Roof
OTH
Spa Features
COM
View
CI, MT, PK
Financial
HOA Fee
$1,515
HOA Fee Frequency
MO
Get Out There, A Simply Outgoing Approach to Life. James Outland Jr. is one of those rare people who simply has an outgoing approach to life. No matter the activity… from dune buggy riding to skydiving to motorcycling to riding the local Pismo Beach waves… James Outland Jr. approaches life with a “just get out there and do it” kind of attitude. A zest for Life. James’ zest for life is obviously apparent in his many exciting hobbies. In his spare time, he loves riding dune buggies or hi…
More About JamesMortgage Calculator
Map
Community
- Address101 Alma ST #407 Palo Alto CA
- CityPalo Alto
- CountySanta Clara
- Zip Code94301
Similar Listings Nearby
Property Summary
- 101 Alma ST #407 Palo Alto CA is a Condo for sale in Palo Alto, CA, 94301. It is listed for $1,495,000 and features 2 beds, 2 baths, and has approximately 1,444 square feet of living space, and was originally constructed in 1960. The current price per square foot is $1,035. The average price per square foot for Condo listings in Palo Alto is $1,147. The average listing price for Condo in Palo Alto is $2,160,921. To schedule a showing of MLS#ml82041155 at 101 Alma ST #407 in Palo Alto, CA, contact your James Outland agent at 8057482262.
Courtesy of Christie’s International Real Estate Sereno. Disclaimer: All data relating to real estate for sale on this page comes from the Broker Reciprocity (BR) of the California Regional Multiple Listing Service. Detailed information about real estate listings held by brokerage firms other than James Outland include the name of the listing broker. Neither the listing company nor James Outland shall be responsible for any typographical errors, misinformation, misprints and shall be held totally harmless. The Broker providing this data believes it to be correct, but advises interested parties to confirm any item before relying on it in a purchase decision. Copyright 2026. California Regional Multiple Listing Service. All rights reserved. 101 Alma ST #407
Palo Alto, CA



































