$1,275,000
2964 E Orella CR
Palm Springs, CA, 92264
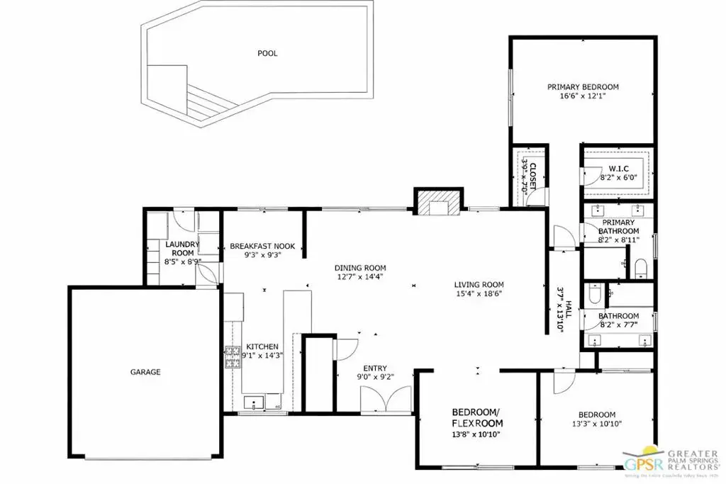
Beautifully remodeled 1970s Mid-Century three-bedroom home in the highly desirable Los Compadres neighborhood of South Palm Springs, situated on fee land. This move-in-ready residence features a thoughtfully designed floor plan, with one bedroom offering flexibility as a den, home office, or guest space, and a spacious primary suite with panoramic mountain views. Fully renovated in 2024, the home showcases new porcelain tile flooring throughout, a custom kitchen with quartz countertops and premium Bespoke appliances, and tastefully updated bathrooms with new vanities, mirrors, lighting, and fixtures. Additional upgrades include custom pantry cabinetry, recessed lighting, new window treatments, refreshed landscaping, and a new garage door with epoxy-finished flooring.The private backyard is a true desert oasis, featuring a boomerang-shaped Pebble Tec pool and spa, ideal for entertaining or relaxation. The home is part of an intimate 50-home HOA that maintains a private 2-acre park with a dog park, tennis courts, and pickleball courts, conveniently located near Beverly and Alta Loma Drive. The HOA covers and maintains the park only and does not regulate architectural changes, modifications, or use of the individual homes.Los Compadres Estates does not impose HOA restrictions on rentals or short-term rentals. The property is currently within the City of Palm Springs’ neighborhood vacation rental cap. Buyers are advised to independently verify all short-term rental eligibility, permitting, and licensing requirements through the City of Palm Springs. Agent has an ownership interest in the property. A prior owner passed away in the home approximately two years ago. Buyer and Buyer’s agent to verify all information and conduct their own due diligence. Conveniently located near shopping and grocery options along Highway 111, including Jensen’s Finest Foods, Ralphs, and Ace Hardware, offering everyday essentials just minutes away.
Property Details
Price:
$1,275,000
MLS #:
26632267PS
Status:
Active
Beds:
3
Baths:
2
Type:
Single Family
Subtype:
Single Family Residence
Subdivision:
Los Compadres
Neighborhood:
334southendpalmsprings
Listed Date:
Jan 10, 2026
Finished Sq Ft:
1,772
Total Sq Ft:
1,772
Lot Size:
8,712 sqft / 0.20 acres (approx)
Year Built:
1977
Schools
Interior
Appliances
DW, GD, MW, RF, GR
Bathrooms
2 Full Bathrooms
Cooling
CA
Heating
FA
Laundry Features
IR, DINC, WINC
Exterior
Architectural Style
MCM
Construction Materials
STC
Parking Spots
2
Roof
CON
Security Features
FSDS
Financial
HOA Fee
$792
HOA Frequency
ANU
Get Out There, A Simply Outgoing Approach to Life. James Outland Jr. is one of those rare people who simply has an outgoing approach to life. No matter the activity… from dune buggy riding to skydiving to motorcycling to riding the local Pismo Beach waves… James Outland Jr. approaches life with a “just get out there and do it” kind of attitude. A zest for Life. James’ zest for life is obviously apparent in his many exciting hobbies. In his spare time, he loves riding dune buggies or hi…
More About JamesMortgage Calculator
Map
Current real estate data for Single Family in Palm Springs as of Feb 13, 2026
673
Single Family Listed
65
Avg DOM
414
Avg $ / SqFt
$994,211
Avg List Price
Community
- Address2964 E Orella CR Palm Springs CA
- SubdivisionLos Compadres
- CityPalm Springs
- CountyRiverside
- Zip Code92264
Similar Listings Nearby
Property Summary
- Located in the Los Compadres subdivision, 2964 E Orella CR Palm Springs CA is a Single Family for sale in Palm Springs, CA, 92264. It is listed for $1,275,000 and features 3 beds, 2 baths, and has approximately 1,772 square feet of living space, and was originally constructed in 1977. The current price per square foot is $720. The average price per square foot for Single Family listings in Palm Springs is $414. The average listing price for Single Family in Palm Springs is $994,211. To schedule a showing of MLS#26632267ps at 2964 E Orella CR in Palm Springs, CA, contact your James Outland agent at 8057482262.
Courtesy of Berkshire Hathaway HomeServices California Properties. Disclaimer: All data relating to real estate for sale on this page comes from the Broker Reciprocity (BR) of the California Regional Multiple Listing Service. Detailed information about real estate listings held by brokerage firms other than James Outland include the name of the listing broker. Neither the listing company nor James Outland shall be responsible for any typographical errors, misinformation, misprints and shall be held totally harmless. The Broker providing this data believes it to be correct, but advises interested parties to confirm any item before relying on it in a purchase decision. Copyright 2026. California Regional Multiple Listing Service. All rights reserved. 2964 E Orella CR
Palm Springs, CA

































































